|
| |||||||||||
| Revogado por : | |||
| Diplomas relacionados : | |||
| Categorias relacionadas : | |||
| Notas em LegisMac | |||
Este diploma foi revogado por: Decreto-Lei n.º 5/98/M
Decreto-Lei n.º 5/86/M
de 25 de Janeiro
As actividades de normalização são hoje não só uma necessidade social como igualmente um esforço de racionalização do trabalho em ordem a uma melhor conjugação entre o sector produtivo e os respectivos utilizadores.
Há, pois, toda a conveniência em introduzir desde já algumas medidas de normalização de papéis e impressos de uso geral na Administração Pública de Macau, acompanhando as normas definidas pela International Standards Organization (I.S.O.).
Na sequência de recomendações da Comissão para a Implementação da Língua Chinesa, consagra-se ainda a obrigatoriedade de inscrição dos caracteres pré-impressos tanto em língua portuguesa como em língua chinesa, dando-se assim mais um passo para a concretização de um objectivo de capital importância a que o Governo tem dedicado a melhor atenção;
Considerando ainda que, para a área da documentação, o Serviço de Administração e Função Pública é membro do Centro de Normalização junto da Direcção-Geral da Qualidade, organismo que representa Portugal na I.S.O.;
Nestes termos;
Ouvido o Conselho Consultivo;
O Encarregado do Governo de Macau decreta, nos termos do n.º 1 do artigo 13.º do Estatuto Orgânico de Macau, para valer como lei no território de Macau, o seguinte:
Artigo 1.º
(Âmbito da aplicação)
O presente diploma aplica-se a todos os serviços públicos do Território, incluindo os fundos e serviços autónomos, designadamente as câmaras municipais.
Artigo 2.º
(Formato dos papéis)
1. Os formatos dos papéis para uso na Administração do Território devem obedecer às dimensões constantes do anexo I, exceptuando-se os destinados a dispositivos de impressão por computador em que seja necessário papel contínuo com banda perfurada de arrasto.
2. A utilização de dimensões diferentes das indicadas no número anterior, apenas poderá ser feita mediante proposta fundamentada a enviar ao Serviço de Administração e Função Pública e aprovada por despacho do Governador, a publicar no Boletim Oficial.
Artigo 3.º
(Carácter bilíngue dos impressos)
1. Os papéis em uso pelas entidades referidas no artigo 1.º, que contenham caracteres pré-impressos, nomeadamente os citados nos artigos 5.º e 6.º, deverão ser bilíngues.
2. O carácter bilíngue dos impressos traduz-se na inscrição, sempre que possível com igual estatuto, de qualquer expressão pré-impressa quer em língua portuguesa quer em língua chinesa.
3. A utilização das duas línguas é, contudo, obrigatória nos impressos destinados a ser utilizados na relação entre a Administração e o Público.
Artigo 4.º
(Numeração de modelos e indicação de dimensões)
1. Todos os papéis com caracteres pré-impressos deverão ter inscrito no canto inferior esquerdo a sigla do serviço, seguida do número interno do modelo.
2. No canto inferior direito deverá ser inscrita a respectiva codificação, de acordo com o anexo I, bem como a indicação numérica do mês e do ano em que foi imprimido.
Artigo 5.º
(Formato e conteúdo do papel de ofício ou carta)
O papel de ofício ou carta terá o formato A4, devendo o seu conteúdo impresso obedecer ao constante do anexo II.
Artigo 6.º
(Formato e conteúdo do papel de informação)
O papel de informação, parecer ou proposta terá o formato A4 com a configuração constante no anexo III.
Artigo 7.º
(Cores do papel e da tinta de impressão)
1. Os papéis de ofício ou carta e informação, proposta ou parecer serão impressos a preto sobre papel branco.
2. Quando os serviços possuam logotipo autorizado em que seja utilizada cor própria, poderão os papéis citados no número anterior ser impressos na referida cor.
3. O Gabinete do Governo de Macau poderá continuar a usar a cor actual nos papéis a que se refere o n.º 1.
Artigo 8.º
(Tipo de papel)
Os papéis de ofício ou carta e informação, proposta ou parecer, terão uma gramagem de 60 a 70 gr/m2.
Artigo 9.º
(Utilização dos serviços da Imprensa Oficial de Macau)
A Imprensa Oficial de Macau, apenas poderá imprimir, para as entidades referidas no artigo 1.º, impressos que obedeçam às dimensões constantes do anexo I e às que venham a ser acrescentadas por despacho do Governador.
Artigo 10.º
(Normas transitórias)
1. As entidades referidas no artigo 1.º poderão continuar a utilizar, até 31 de Agosto de 1986, os impressos já adquiridos à data da publicação do presente diploma.
2. A impressão dos papéis antes da data fixada no n.º 1 obedecerá já ao disposto neste diploma.
Artigo 11.º
(Dúvidas)
As dúvidas surgidas na aplicação do presente diploma serão resolvidas por despacho do Governador.
Aprovado em 24 de Janeiro de 1986.
Publique-se.
O Encarregado do Governo, Manuel Maria Amaral de Freitas.
Anexo I
Série A Série B Série C
Código de Dimensões Código de Dimensões Código de Dimensões
designação em milímetros designação em milímetros designação em milímetros
4 AO 1682 x 2378
2 AO 1189 x 1682
AO 841 x 1189 BO 1000 x 1414 CO 917 x 1297
A1 594 x 841 B1 707 x 1000 C1 648 x 917
A2 420 x 594 B2 500 x 707 C2 458 x 648
A3 297 x 420 B3 353 x 500 C3 324 x 458
A4 210 x 297 B4 250 x 353 C4 229 x 324
A5 148 x 210 B5 176 x 250 C5 162 x 229
A6 105 x 148 B6 125 x 176 C6 114 x 162
A7 74 x 105 B7 88 x 125 C7 81 x 114
A8 52 x 74 B8 62 x 88 C8 57 x 81
A9 37 x 52 B9 44 x 62
A10 26 x 37 B10 31 x 44
Formato especial para ficha bibliográfica internacional:
75 mm x 125 mm
Anexo II
Forma de imprimir o papel de ofício ou carta
1. Zonas em que se divide a primeira página do papel de ofício ou carta
1.1. Cabeçalho
A zona de cabeçalho (zona A da fig. 1) é toda a área da folha compreendida entre o topo e uma linha paralela a este à distância de 45 mm.
1.2. Endereço
A zona de endereço (zona B da fig. 1) é formada por um rectângulo com 40 mm de altura e 90 mm de largura, adjacente à zona de cabeçalho e separado do lado direito da folha pela zona K, que tem a largura de 18 mm.
1.3. Espaço livre para notas e despachos
O espaço livre para notas e despachos (zona C da fig. 1) é a zona compreendida entre a do endereço e a margem esquerda G e com a altura daquela.
1.4. Referências
As referências ocupam uma faixa de 19,5 mm de altura a contar desde a linha inferior da zona do endereço e com a largura compreendida entre a margem esquerda G e a margem direita H (zona D da fig. 1).
1.5. Assunto
A zona reservada ao assunto (zona E da fig. 1) ocupando uma faixa de largura igual à das "referências" e com uma altura máxima de 15 mm, está situada imediatamente a seguir a essa zona D.
1.6. Texto
O espaço reservado ao texto, situado abaixo da zona E, é limitado pelas margens laterais esquerda, direita e pela margem inferior.
1.7. Margens laterais
A margem lateral esquerda (zona G da fig. 1) ocupa toda a altura da folha abaixo da zona de cabeçalho e tem a largura de 30,6 mm.
A margem lateral direita, (zona H da fig. 1) ocupa toda a altura da folha abaixo da zona K e tem a largura de 8 mm.
1.8. Margem inferior
A margem inferior ocupa o espaço compreendido entre o bordo inferior da folha e uma linha paralela àquele com a altura de 30 mm. Aí, e à altura máxima de 10 mm do bordo inferior define-se uma faixa, não necessariamente sinalizada, onde serão impressas as indicações constantes do artigo 4.º
2. Conteúdo pré-impressos da primeira página do ofício ou carta
2.1. Cabeçalho
No cabeçalho imprimir-se-á o símbolo da Administração Pública do Território ou logotipo devidamente autorizado nos termos do artigo 3.º da Portaria n.º 59/85/M, de 16 de Março, a designação "Governo de Macau" e a designação do Serviço.
Qualquer carácter impresso na zona de cabeçalho estará, no mínimo, a 25 mm de distância do bordo lateral esquerdo.
2.2. Referências
O conteúdo da área destinada às referências conterá, da esquerda pua a direita, os seguintes dizeres:
a) "Sua referência", distante 30,6 mm do bordo lateral esquerdo;
b) "Sua comunicação de", distante 40,8 mm do início da referência anterior;
c) "Nossa referência", distante 40,8 mm do início da referência anterior;
d) Endereço postal, telefone e telex do remetente, distantes 40,8 mm do início da referência anterior;
e) Por baixo do endereço postal do remetente, e por consequência ao lado das indicações relacionadas com as "referências", deve escrever-se a data em que o ofício ou carta foi assinado.
2.3. Assunto
A área indicada como "E" na fig. 1, terá a palavra "Assunto" impressa a 30,6 mm de bordo lateral esquerdo.
2.4. Marcas
2.4.1. M1 - Destina-se a auxiliar a 3.ª dobra quando se utiliza o sobrescrito de formato C6. Insere-se à distância de 62 mm do bordo lateral esquerdo da folha;
M2 - Indica o meio da folha. Dado o seu interesse na perfuração deve ser impressa afastada 15 mm do bordo lateral esquerdo da folha;
M3 - Destina-se a auxiliar a 2.ª dobra. Inscreve-se à distância de 210 mm do topo superior da folha;
M4 - Indica a proximidade do fim do texto e imprime-se à distância de 40 mm do bordo inferior da folha, na margem lateral esquerda;
M5 - Na margem lateral direita: indica o limite lateral direito do texto e inscreve-se à distância de 105 mm do topo superior e a 8 mm do bordo lateral da folha.
Na margem lateral esquerda: destina-se a auxiliar a 1.ª dobra e inscreve-se a 105 mm do topo superior da folha.
3. Página de continuação do ofício ou carta
3.1. A página de continuação conterá cabeçalho, margens laterais esquerda e direita e margem inferior, idênticas às da 1.ª página, ficando o restante espaço reservado ao texto.
3.2. No canto superior direito da zona de cabeçalho, serão pré-impressos os seguintes dizeres: "Pág N.º-", "OF.-" e "DATA"-/-/-".
3.3. O espaço destinado ao disposto no n.º 3.2., terá a altura máxima de 30 mm, contados do topo da folha e a largura de 40 mm contada para a esquerda a partir da linha que delimita a margem direita.
Fig. 1
Anexo III
Forma de imprimir o papel da Informação, Proposta ou Parecer
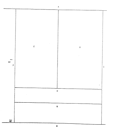
1. Zonas em que se divide a primeira página da Informação, Proposta ou Parecer
1.1. Cabeçalho
A zona de cabeçalho (zona A da fig. 2) é toda a área da folha compreendida entre o topo e uma linha paralela à distância de 45 mm.
1.2. A zona de despacho final (zona B da fig. 2) é formada por um rectângulo com 90 mm de largura e 160 mm de altura e separado do bordo direito da folha pela margem lateral direita.
1.3. Pareceres
A zona de pareceres e despachos preparatórios (zona C da fig. 2) é formada por um rectângulo com 87 mm de largura e 160 mm de altura, e separado do bordo esquerdo da folha pela margem lateral esquerda.
1.4. Assunto e Referências
A zona de assuntos e referências (zona D da fig. 2) é formada por um rectângulo com 177 mm de largura e 30 mm de altura, separado dos bordos da folha pelas margens laterais direita e esquerda.
1.5. Texto ou início de texto
A zona de texto ou início de texto (zona E da fig. 2) é formada por um rectângulo com 177 mm de largura e 42 mm de altura limitado pelas margens laterais direita, esquerda e pela margem inferior.
1.6. Margem lateral esquerda
A zona da margem lateral esquerda (zona F da fig. 2) ocupa toda a altura da folha entre a zona de cabeçalho e a margem inferior, tendo a largura de 25 mm, sendo definida por um filete impresso entre a zona do cabeçalho e a margem inferior.
1.7. Margem lateral direita
A zona da margem lateral direita (zona G da fig. 2) ocupa toda a altura da folha entre a zona do cabeçalho e a margem inferior, tendo a largura de 8 mm, sendo definida por um filete impresso entre a zona de cabeçalho e a margem inferior.
1.8. Margem inferior
A zona da margem inferior (zona H da fig. 2) ocupa uma faixa a toda a largura da folha, com altura de 20 mm contados a partir do bordo inferior. Nesta zona e a uma altura máxima de 10 mm do mesmo bordo, serão impressas as indicações constantes do artigo 4.º
1.9. Marca M1
Indica o meio da folha.
1.10. Marca M2
Marca o "fim de texto".
2. Conteúdo pré-impresso da primeira página da Informação, Proposta ou Parecer
2. 1. Os conteúdos a imprimir na primeira página do modelo de informação, proposta ou parecer são:
a) Elementos de cabeçalho, idênticos aos referidos no ponto 2.1. do Anexo II;
b) Traços separadores para delimitação das zonas, B, C e D e das margens esquerda e direita;
c) "Assunto", na zona D junto à margem lateral esquerda, e marcas com espaço para o número de referência e data do documento junto à margem lateral direita;
d) Marca M1 (da fig. 2);
Dado o seu interesse na perfuração deve ser impressa afastada 15 mm do bordo lateral esquerdo da folha;
e) Marca M2 (da fig. 2);
A inscrever no bordo lateral esquerdo à distância de 25 mm do bordo inferior da folha.
3. Página de continuação da Informação, Proposta ou Parecer
3.1. A página de continuação conterá cabeçalho, margens laterais esquerda, direita e margem inferior idênticas à da primeira página, ficando o restante espaço reservado ao texto.
3.2. No canto superior direito da zona de cabeçalho serão pré-impressos os seguintes dizeres: "Pág. N.º-", "Inf.-" e Data:-/-/-".
3.3. O espaço destinado ao disposto no n.º 3.2. terá a altura máxima de 30 mm contados do topo da folha, e a largura de 40 mm contada para a esquerda a partir do prolongamento da linha que delimita a margem direita.
Fig. 2





