|
| |||||||||||
| 經適應化處理 : | |||
| 已更改 : | |||
| 廢止 : | |||
| 相關法規 : | |||
| 相關類別 : | |||
| 《LegisMac》的法例註釋 | |||
第5/98/M號法令
二月二日
本法規的詞句已被第27/2024號法律適應化處理。
本法規已修改表述 – 請查閱︰第27/2024號法律
第一章
一般規定
第一條
(適用範圍)
本法規適用於澳門特別行政區公共部門及公共機構,包括其他公法人。
第二章
公務通訊及行政當局徽號
第二條
(公務通訊方式)
一、公務信函一般採用公函形式。
二、亦可使用明信片、傳真、電子郵件或確保證實通訊接收人與發送人並保障通訊真確性之其他通訊方式。
三、如信函涉及秘密事宜,應將信函裝入兩個信封,並在文件及內信封上註明“密件”字樣,且僅可由受文實體開啟;如該實體認為信函不涉及秘密事宜,得取消信函之秘密性,並劃去“密件”字樣及隨即作簡簽。
四、如信函僅可由收文人知悉,須遵守上款之規定,並須註明“機密”字樣。
第三條
(有關公務通訊之規則)
一、有權限機關之據位人及有資格之工作人員經授權或授權簽署後,方得以有關公共部門或公共機構之名義與其他實體進行公務通訊。
二、信函內應載有簽名、簽名者姓名、簽名者官職及有關卷宗之識別資料,並應指明答覆中須註明該識別資料。
三、部門或機構間、同一部門或機構之附屬單位間之通訊或非秘密信息之交流,如因通訊接收人、發送人或有關內容而不具公務通訊方式,則視為非正式接觸。
四、在選用上條所指一項或多項通訊方式時,應考慮下列一般原則:
a)採用針對個別情況行之有效且最經濟之通訊方式;
b)採用相對有關內容最適當之通訊方式。
五、每一部門或機構應對傳真機或電子郵件之使用以及資料之電腦傳輸作出規定,並應定出發送及接收資料之監督規則,且指定有關負責人員。
第四條
(語言)
信函、表格及其他文件之行文應使用簡練、清晰及明確之語言。
第五條
(識別)
一*
二、信函所用印件內,除澳門特別行政區區徽及公共部門或公共機構之官方名稱外,尚應在左上角或下白邊處指明方便通訊之資料,尤其是地址、電子郵件位址、傳真號碼及電話號碼。
三、部門、機構以及從事對個人造成影響之特別活動之從屬機構及附屬單位,得獲准使用專有標誌,以便快捷及明確對其作出識別。
四、標誌應透過代表性成分及形象,以美觀之圖示方式表現部門、機構或附屬單位之性質、職責或主要活動。
五、標誌須透過附說明理由之提議,並經聽取行政公職局意見後以行政命令核准。
六、具官方格式之印件內或官方之定期或不定期出版物內,除部門或機構之官方名稱外,僅得使用澳門特別行政區區徽或上款所指之標誌,並應使用部門或機構之官方名稱;內部文件及出版物內得不使用官方名稱。
七、第三款及第四款之規定適用於用作識別或指示部門、機構及附屬單位之牌匾、標牌、標籤及海報。
* 不生效 - 請查閱:第27/2024號法律
第三章
紙張之標準化
第六條
(印件之雙語性)
一、第一條所指實體使用之具預印字樣之紙張應為雙語。
二、印件之雙語性係指印件內預印之字樣須以葡文及中文按同等地位編印。
第七條
(官方印件之印刷)
一、印務局僅得為第一條所指實體印刷符合本法規附件所載尺寸及其他特徵之印件,以及符合行政長官以批示核准之特徵之印件。
二、經聽取行政公職局意見後,行政長官得以批示核准使用尺寸不同於本法規所定者之紙張、信封、文件袋及明信片。
三、本條所指批示須公布於《澳門特別行政區公報》;行政長官作出該等批示之權限不得轉授。
第八條
(紙張顏色及印刷油墨顏色)
一、公函、信件、報告書、建議書、意見書、信封、文件袋及明信片使用白色紙張,其上以黑色油墨印刷。
二、行政長官辦公室及主要官員辦公室得使用其他顏色之紙張。
三、如部門、機構或附屬單位所用經核准之標誌具專用顏色,在第一款所指紙張上得以該專用顏色之油墨印刷。
第九條
(格式編號及尺寸說明)
一、凡有預印字樣之紙張、信封及文件袋,應依次在其左下角印有部門或機構名稱及格式之內部編號。
二、紙張右下角應按附件一印有紙張代號,並以數目字印有印刷年份及月份。
三、信封或文件袋上部門或機構名稱之下方,應按附件四印有信封或文件袋之代號,並以數目字印有印刷年份及月份。
第十條
(紙張種類)
一、公函、信件、報告書、建議書或意見書所用紙張之重量介乎60至70gr/m2。
二、信封及文件袋所用白色紙張之重量約為100gr/m2;如使用灰色紙張,其重量介乎50至180gr/m2。
三、明信片所用紙張之重量介乎150至200gr/m2。
第十一條
(紙張之規格及格式)
一、行政當局所用紙張之規格,應符合附件一所載之尺寸;但電腦打印須使用之沿邊打孔之拉式連續紙,不在此限。
二、公函或信件所用紙張以及報告書、意見書或建議書所用紙張均為A4規格,兩者之格式分別載於附件二及附件三。
第十二條
(信封及文件袋之規格及印刷)
一、行政當局所用信封及文件袋之規格,應符合附件四所載之尺寸。
二、信封及文件袋應按附件五所載之指示印刷。
三、就本法規之規定而言,開口在較長一側者為信封,開口在較短一側者為文件袋。
第十三條
(開窗信封及開窗文件袋)
一、名稱代號為C6及DL之信封及文件袋之正面,均得開有透明紙窗,透過該紙窗可看到受文人之名稱及地址。
二、C6及DL信封或文件袋所開之透明紙窗,應與較長一側平行,紙窗長100mm,寬45mm。
三、如圖五所指,透明紙窗應設於距下頁邊18mm及距右頁邊13mm處。
第十四條
(明信片之使用)
明信片係用於傳遞簡短信息之工具。
第十五條
(明信片之規格及印刷)
一、明信片應為A6規格,較短一側為105mm,較長一側為148mm。
二、明信片應按附件七所載指示印刷。
第四章
內部處理
第十六條
(收發文件之登記)
一、對收到之公函、申請書、請求書、陳述書、聲明異議或上訴須作登記;負責接收文件之工作人員須對該等文件編號、註明日期並作簡簽,且對編號及日期之正確性負責。
二、登記應在簿冊或其他載體內作出,但該載體須確保登記之真確性,並允許以紙張複製登記,以及嗣後在年底作彙編。
三、發送信函時應對其作順序之編號並註明日期。
四、在受文人或發文人行使職能之範圍內使其負有形式上之責任之文件,方應視作須登記及編號之文件,對其他文件則無須登記及編號。
第十七條
(卷宗之檔案)
一、各部門或公共機構之最高領導人有權就編排本部門有關檔案之事宜作出規定。
二、一般卷宗須按事宜編排,且應在卷宗之封面及脊部註明識別資料。
三、個人卷宗須編號,而在內部應按事宜分類,並應按字母順序記入資料卡。
四、處理密件及機密信函時須編排特別卷宗;該等卷宗須由發文及受文實體保存,且卷宗內須註明編號、日期以及文件之去向或來源。
五、卷宗內應剔除文件之任何重複本。
第五章
行政當局與個人間之合作
第十八條
(較有利之程序)
如行政當局得透過不同活動達至同一結果,有關公共部門或公共機構應採用最有利於個人之程序,尤其為獲取文件、通知決定或傳遞資訊時應採用較有利於個人之程序。
第十九條
(接待)
一、負責接待人員應諳兩種正式語文,並能以禮向個人提供諮詢與服務。
二、如接待地點經常多人輪候,應設置適當之編號系統。
三、個別接待時應給予老人、殘疾人、病人及孕婦特別關注。
四、在多人輪候之公共部門或公共機構內,應儘可能設有飲用水供應設備及衛生設施供公眾使用,並應加上相應明顯標示。
第二十條
(個人之參與)
一、公共部門及公共機構均應設立公眾參與之機制及程序,以便提高服務質量。
二、上款所指機制,尤其指建議箱或投訴簿,而在接待地點須指明設有建議箱或投訴簿及其位置。
第二十一條
(建議及投訴)
一、公共部門或公共機構應通過獲指定之工作人員,按月處理收到之意見、建議、投訴或異議,但不影響第24/2011號行政法規《行政公職局的組織及運作》第三十條第一款(四)項規定之適用。
二、建議、投訴及異議如為匿名者,得銷毀之,而部門或機構之最高領導人有權指定有關工作人員,亦有權對源自上款所指處理之報告或資訊作出批示。
三、對載有身分資料及地址之個人之投訴及異議,應迅速答覆;在任何情況下,該答覆不應超過自接收有關投訴及異議之日起算四十五日之期限。
四、上數款之規定不影響使用法律為保障個人權利或利益所規定之有關方式。
第二十二條
(通知及傳召書)
一、通知及傳召書僅於既不延誤時間亦不引致利害關係人或其代表作出交通開支之情況下無其他方式解決問題時,方得使用。
二、通知及傳召書內應載明通告與傳召擬處理之事宜及事由。
三、傳召書內所定利害關係人到場之日期,應與向本人作出通知之日或加蓋郵戳之日至少相距七日;傳召書應指明接待利害關係人之準確日期、時刻、地點、與其接觸之附屬單位;如有需要,亦應指明與其接觸之工作人員之姓名。
第二十三條
(表格及申請書)
一、行政程序表格、擬本及申請書格式僅應包含該程序所需之適當資料,且不得要求提供不能增加公共部門或公共機構現有之有用資訊之資料,亦不得要求提供已載於申請書附同文件內之資料。
二、要求填寫之任何表格及文件,應包括簡單指引以及關於其內容之充分說明。
三、應個人要求,公共部門及公共機構應為其提供填寫表格所需之資訊及適當協助。
第二十四條
(與公共部門及公共機構間之通訊)
一、如某一自然人或法人以書面方式聯繫公共部門或公共機關,尤其涉及表格不包括之申請書或請求書以及涉及聲明異議或上訴時,應使用A4規格白色或淺色標準紙張,但不影響第三款規定之適用。
二、上款所指載體得載入識別利害關係人之資料,尤其是名稱、標誌、地址或供電訊聯絡之資料。
三、不得以載入任何性質之文件之載體不適當為依據拒絕接納或拒絕處理該等文件,但僅以文件字跡之辨認未受影響者為限。
四、透過郵寄或電訊方式獲得之下列通訊不獲接納或不受處理:
a)未含有簽署者之身分資料;
b)字跡完全或部分不可辨認;
c)內容不可理解,且不能確認有關事宜或要求。
五、如獲悉利害關係人之身分資料,應將上款所指情況通知利害關係人。
第二十五條
(居住證明)
一、依法要求遞交之組成行政卷宗之居住證明,得以出示居民身分證或選民證代替。
二、如所出示者為選民證,接待申請人之工作人員應按其他身分文件內之簽名核對選民證上之簽名,並在卷宗內註明其在澳門特別行政區選民登記中之登記編號。
第二十六條
(多用途之證明)
一、證明、聲明書、證書,或用作聲明或證明人之情況、質素或狀況之其他類型之文件,又或用作證明任何事實之其他類型之文件,在其有效期內,得於不同公共部門或公共機構內使用或具有不同之用途。
二、申領上款所指文件時無須指出其用途。
第二十七條
(書證)
一、對聲明或事實之證明須儘量以僅出示文件為之,而該等文件須歸還利害關係人或其代表,且宜於在出示文件後歸還。
二、獲出示文件之工作人員須在卷宗內註明及核對文件所載之資料。
三、如為分析卷宗而有必要留存證明文件,須以影印本代替該等文件。
四、獲呈交文件之工作人員須認證文件影印本,並在影印本內註明其與原件相符。
第二十八條
(在澳門特別行政區外發出之文件)
在澳門特別行政區外發出但應在澳門特別行政區產生效力之證明書、證書及證明之有效期為六個月,但不影響法律所定其他更長之有效期。
第二十九條
(文件之發送)
一、編製文件予個人之公共部門及公共機構,如不能在申請日交付文件,應允許個人要求以郵寄方式發送,但有關費用須由利害關係人承擔。
二、應利害關係人之請求,上款所指之郵寄得以掛號或給予回執之掛號方式為之。
第三十條
(拾得物)
一、個人在公共部門或公共機構內遺失之文件、物品或其他物料,須以最簡便及快捷之方式歸還其所有人或正當持有人。
二、如不能按拾得物之內容或所指出之實體知悉其所有人或正當持有人之地址,應將其送交治安警察局。
第六章
最後及過渡規定
第三十一條及第三十二條*
* 不生效 - 請查閱:第27/2024號法律
第三十三條
(開始生效)
本法規於公布三十日後開始生效。
附件一
| A組 | B組 | C組 | |||
| 名稱代號 | 以毫米計之尺寸 | 名稱代號 | 以毫米計之尺寸 | 名稱代號 | 以毫米計之尺寸 |
| 4A0 | 1682x2378 | ||||
| 2A0 | 1189x1682 | ||||
| A0 | 841x1189 | B0 | 1000x1414 | C0 | 917x1297 |
| A1 | 594x841 | B1 | 707x1000 | C1 | 648x917 |
| A2 | 420x594 | B2 | 500x707 | C2 | 458x648 |
| A3 | 297x420 | B3 | 353x500 | C3 | 324x458 |
| A4 | 210x297 | B4 | 250x353 | C4 | 229x324 |
| A5 | 148x210 | B5 | 176x250 | C5 | 162x229 |
| A6 | 105x148 | B6 | 125x176 | C6 | 114x162 |
| A7 | 74x105 | B7 | 88x125 | C7 | 81x114 |
| A8 | 52x74 | B8 | 62x88 | C8 | 57x81 |
| A9 | 37x52 | B9 | 44x62 | ||
| A10 | 26x37 | B10 | 31x44 | ||
國際書目卡之特別規格:75 mm x 125 mm
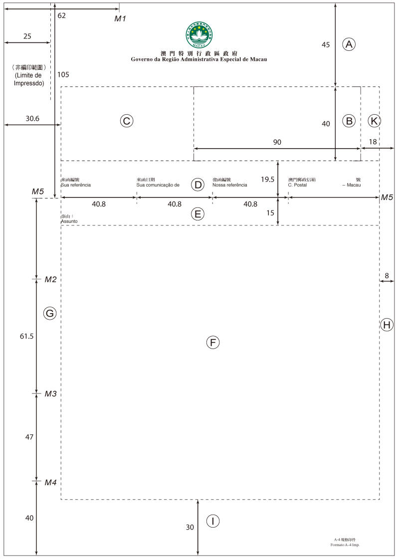
附件二
公函或信件之印刷格式
- 1. 公函或信件首頁劃分之區域
- 1.1. 天頭
- 天頭區域(圖一A區域)指紙頁頂端與平行且相距頂端45mm之直線間之區域。
- 1.2. 地址
- 地址區域(圖一B區域)為長方形,寬40mm,長90mm,上方與天頭區域相鄰,右側與右側頁邊間留有寬18mm之K區域。
- 1.3. 批註及批示留白
- 批註及批示留白(圖一C區域)指地址區域與左白邊G之間之區域,寬度與地址區域相同。
- 1.4. 編號
- 編號區域(圖一D區域)為長條狀,由地址區域之底邊計寬為19.5mm,長為左白邊G至右白邊H之間之距離。
- 1.5. 事由
- 事由專用區域(圖一E區域)為長條狀,長度與編號區域相同,寬不超過15mm,緊鄰編號區域。
- 1.6. 正文
- 正文專用區域(圖一F區域)在E區域下方,其左、右兩側及下方均留有白邊。
- 1.7. 兩側白邊
- 左白邊(圖一G區域),長為天頭區域底邊至紙頁末端之距離,寬30.6mm。
- 右白邊(圖一H區域),長為K部分底邊至紙頁末端之距離,寬8mm。
- 1.8. 下白邊
- 下白邊指紙頁末端與平行且相距末端30mm之直線間之區域。其內應劃出一長條區域,用作印刷第九條所指說明,寬度自紙頁末端計不超過10mm,對該區域無須作劃線標記。
- 2. 公函或信件首頁預印之格式
- 2.1. 天頭
- 天頭區域印有澳門特別行政區區徽或根據第五條規定獲核准之標誌,以及“澳門特別行政區政府”字樣及部門名稱。
- 任何印於天頭區域之字樣,須距左頁邊至少25mm。
- 2.2. 編號
- 編號專用區域印有下列字樣,由左至右分別為:
- a)“來函編號”,距左頁邊30.6mm;
- b)“來函日期”,距“來函編號”第一個字頭40.8mm;
- c)“發函編號”,距“來函日期”第一個字頭40.8mm;
- d)發文人之地址、電話號碼及用戶直通電報,距“發函編號”第一個字頭40.8mm;
- e)在發文人地址下及編號說明區域旁側,應註明簽發公函或信件之日期。
- 2.3. 事由
- 圖一所示“E”字區域內應印有“事由”字樣,該字樣距左頁邊30.6mm。
- 2.4. 記號
- 2.4.1. M1-使用C6規格信封時指示信箋之第三折位,印於距左頁邊62mm處。
- M2-指示紙頁垂直向中點,以方便打孔時定位,為此,應將該記號印於距左頁邊15mm處。
- M3-信箋第二折位,印於距紙頁頂端210mm處。
- M4-指示正文即將結束,印於紙頁左白邊內距下頁邊40mm處。
- M5-位於右白邊內之M5指示正文右側所至範圍,印於距紙頁頂端105mm、右白邊8mm處。
- 位於左白邊內之M5指示信箋第一折位,印於距紙頁頂端105mm處。
- 3. 公函或信件之續頁(圖三)
- 3.1. 續頁內應具與首頁相同之天頭、左白邊、右白邊及下白邊,其餘部分為正文專用區域。
- 3.2. 天頭區域右上角應預印下列字樣:“第ˍˍ頁”、“公函編號ˍˍ”及“日期ˍˍ/ˍˍ/ˍˍ”。
- 3.3. 用作預印3.2所定字樣之部分,寬度自紙頁頂端計不超過30mm,長度自右白邊之界線計為40mm。
圖一
公函標準格式
(尺寸)

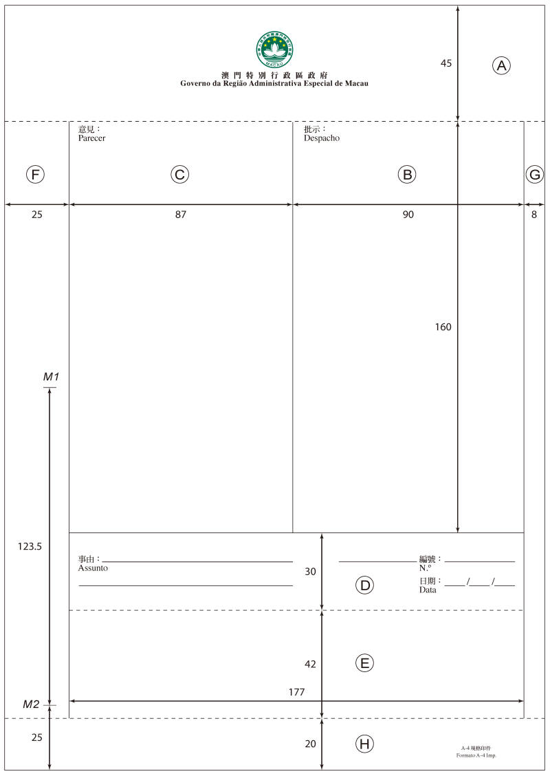
附件三
報告書、建議書或意見書之印刷格式
- 1. 報告書、建議書或意見書首頁劃分之區域
- 1.1 天頭
- 天頭區域(圖二A區域)指紙頁頂端與平行且相距頂端45mm之直線間之區域。
- 1.2. 最後批示區域(圖二B區域)為長方形,寬90mm,長160mm,右側與右頁邊間留有白邊。
- 1.3. 意見書
- 意見書及初步批示區域(圖二C區域)為長方形,寬87mm,長160mm,左側與左頁邊間留有白邊。
- 1.4. 事由及編號
- 事由及編號區域(圖二D區域)為長方形,長177mm,寬30mm,左、右兩側分別與左、右頁邊間留有白邊。
- 1.5. 正文或正文開端
- 正文或正文開端區域(圖二E區域)為長方形,長177mm,寬42mm,左、右兩側及下方留有白邊。
- 1.6. 左白邊
- 左白邊區域(圖二F區域),長為天頭區域至下白邊間之距離,寬25mm,並以連接天頭區域和下白邊之細線作為該白邊之界線。
- 1.7. 右白邊
- 右白邊區域(圖二G區域),長為天頭區域至下白邊間之距離,寬8mm,並以連接天頭區域和下白邊之細線作為該白線之界線。
- 1.8. 下白邊
- 下白邊區域(圖二H區域)之長度與紙寬相同,由下頁邊計寬20mm。在該白邊內距下頁邊不超過10mm處,應印有第九條所指說明。
- 1.9. M1記號
- 指示紙頁垂直向中點。
- 1.10. M2記號
- “正文結束”記號。
- 2. 報告書、建議書和意見書首頁預印之格式
- 2.1. 報告書、建議書或意見書格式首頁內應印有之格式為:
- a)與附件二內2.1所指者相同之天頭圖文;
- b)用以界定B、C及D區域以及左白邊與右白邊之直線;
- c)位於D區域靠近左白邊之“事由”字樣,以及靠近右白邊處留出空位以便填寫編號及日期之記號;
- d)M1記號(圖二),為便於打孔,應印於距左白邊15mm處;
- e)M2記號(圖二),印於左白邊內距下頁邊25mm處。
- 3. 報告書、建議書或意見書之續頁(圖三)
- 3.1. 續頁內應具與首頁相同之天頭、左白邊、右白邊及下白邊,其餘部分為正文專用區域。
- 3.2. 天頭區域右上角應預印下列字樣:“第ˍˍˍ頁”、“報告編號ˍˍ”及“日期ˍˍ/ˍˍ/ˍˍ”。
- 3.3. 用作預印3.2所定字樣之部分,寬度自紙頁頂端計不超過30mm,長度為40mm,自右白邊之延長界線計。
圖二
報告書、建議書及意見書之格式
(尺寸)

圖三
續頁之格式
(尺寸)

附件四
| 名稱代號 | 毫米 |
| B3/C3(*) | 353x458 |
| C3 | 324x458 |
| B4 | 250x353 |
| C4 | 229x324 |
| B5 | 176x250 |
| C5 | 162x229 |
| B6/C4 | 125x324 |
| DP(**) | 120x176 |
| C6 | 114x162 |
| DL(***) | 110x220 |
(*)衛生局專用
(**)郵件規格
(***)特長規格
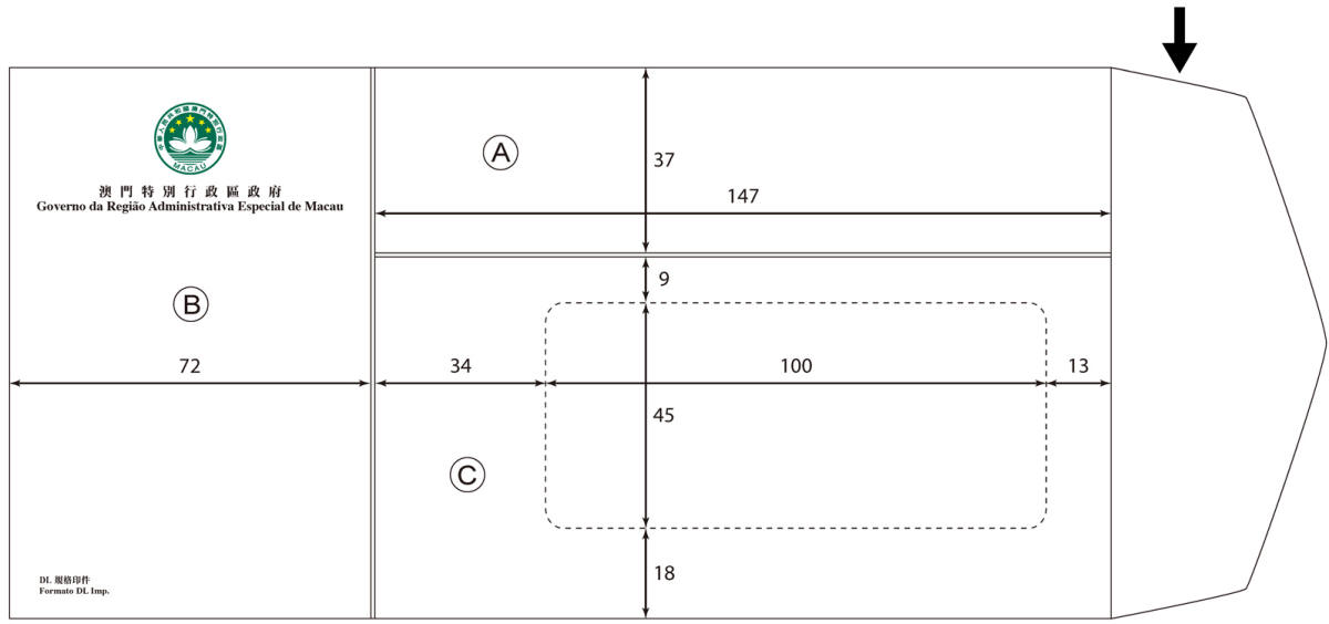
附件五
信封或文件袋之印刷位置及格式
- 1. 信封或文件袋正面劃分之區域
- 1.1. 用作蓋銷及郵政公事之區域
- 用作蓋銷及郵政公事之區域(圖四A區域)為長方形,位於信封或文件袋右上方,長為總長度三分之二,寬為總寬度三分之一。
- 1.2. 發文人使用之區域
- 1.2.1. 發文人使用之區域(圖四B區域)為長方形,位於信封或文件袋左方,寬為總長度三分之一,長與總寬度相等。
- 1.2.2. 如屬C6規格之開窗信封或開窗文件袋,該區域之寬度為45mm,無須符合上項有關寬度之規定。
- 1.2.3. 發文人使用之區域內,上半部分應為發文人之名稱及地址,下半部分為服務之特別說明,以備發文人可能之需。
- 1.2.4. 在左下角,距左白邊不超過25mm及距右白邊不超過15mm處,應印有第九條所指說明。
- 1.3. 受文人名稱及地址區域(圖四C區域)為長方形,位於信封或文件袋右下方,寬為總寬度三分之二,長為總長度三分之二。
- 2. 信封或文件袋封面預印之格式
- 2.1. 信封或文件袋上得以細線明確劃分區域(圖四)。
- 2.2. 根據1.1、1.2及1.3之規定,在劃分區域時應使用附件六所載之尺寸。
- 2.3. 用作蓋銷及郵政公事區域須作郵政服務專用,因此在該區域內無任何預印之格式。
- 2.4. 發文人使用之區域內應印有澳門特別行政區區徽或根據第五條規定獲核准之標誌,以及“澳門特別行政區政府”字樣及部門名稱。
- 2.5.受文人地址區域內無任何之預印格式。
附件六
| 名稱代號 | 占寬度三分之一 (毫米) |
占長度三分之二 (毫米) |
| B3/C3 | 118 | 306 |
| C3 | 108 | 306 |
| B4 | 83 | 235 |
| C4 | 76 | 216 |
| B5 | 59 | 167 |
| C5 | 54 | 153 |
| B6/C4 | 42 | 216 |
| DP | 40 | 117 |
| C6 | 38 | — |
| DL | 37 | 147 |
附件七
明信片編印之位置及格式
- 1. 正面
- 1.1. 空白
- 名信片僅應有一下白邊,以備郵電局可能之需;此白邊(圖六D區域)為長方形,與名信片等長,由下頁邊起計寬15mm。
- 1.2. 用作蓋銷及郵政公事之區域
- 用作蓋銷及郵政公事之區域(圖六A區域)為長方形,位於名信片正面右上方,寬40mm,長為總長度三分之二。
- 1.3. 發文人使用之區域
- 1.3.1. 發文人使用之區域(圖六B區域)為長方形,位於名信片正面左方,寬48mm,長度為頂端至下白邊間之距離。
- 1.3.2. 發文人使用之區域內,上半部分應為其名稱及地址,下半部分專用於對發文實體作特別說明(來函編號、日期、負責之附屬單位等)。
- 1.4. 受文人名稱及地址區域
- 受文人名稱及地址區域(圖六C區域)為長方形,該區域上鄰用作蓋銷及郵政公事之區域,下鄰白邊,左鄰發文人使用之區域。
- 1.5. 在名信片上須以細線明確劃分區域。
- 1.6. 用作蓋銷及郵政公事之區域無任何之預印格式,但可預印“郵資已付”(倘採用郵資已付方式)或“名信片”字樣。
- 1.7. 受文人名稱及地址區域內僅得預印直線,方便日後填入有關資料。
- 1.8. 發文人使用之區域內,須印有澳門特別行政區區徽或根據第五條規定獲核准之標誌,以及“澳門特別行政區政府”字樣、發文機關之名稱、地址及電話號碼。
- 2. 背面
- 2.1. 名信片背面用於書寫正文,正文得以打字機打印或手寫。
- 2.2. 如名信片用作固定性質之通訊,其上得預印固定字樣。
- 2.3. 如無法確定預印之內容,名信片上得印有直線,方便以打字機打印或手寫通訊資料。
圖四
信封格式–開口在較長一側

圖五
開窗文件袋–開口在較短一側
(尺寸:DL)

圖六
(尺寸)




