立法會
| 經適應化處理 : | |||
| 已更改 : | |||
| 相關法規 : | |||
| 相關類別 : | |||
| 《LegisMac》的法例註釋 | |||
第9/83/M號法律
十月三日
本法規的詞句已被第26/2024號法律適應化處理。
建築障碍的消除
第一條
(新的政府樓宇)
將來由政府興建的所有樓宇,受本法律組成之一部分的附件一及附件二以圖畫說明的規則管制。
第二條
(供大眾使用之設施)
在將來由公共企業或由公共服務專營公司所興建之樓宇內,供大眾接觸的設施遵守上條所指的規則。
第三條
(對大眾開放的設備及樓宇)
一、在本法律生效後遞交有關機關審查之對大眾開放的設備及樓宇的圖則,應遵守附件一的建築規則。
二、為一款效力起見,下列者被視為對大眾開放的設備及樓宇:
A、博物館、公共圖書館、劇院、電影院、國際會議室及會議室;
B、教堂及廟宇;
C、老人及傷殘人士之家;
D、醫院、留產所、衛生中心、診療中心及醫療站;
E、學校、訓練中心、宿舍及食堂;
F、法庭、公證署及登記局;
G、郵政及電訊局及與公眾有接觸的信用機構;
H、監獄及再教育場所;
I、公共運輸站;
J、公共娛樂場所及其他供體育及戶外活動的場所;
L、商業場所、供大眾使用的面積超過三百平方米的餐廳及咖啡室、豪華與一等的酒店單位;
M、停車場;
N、公共洗手間;
O、大眾能到達而由行政長官透過規範性文件認為應該如此確定之其他設施。
三、在現存樓宇內,對為供上款所指的任一用途的設施的圖則,附件一的規則為勸諭性。
第四條
(通道)
通往第三條所指樓宇之通道,將按照附件一所訂之規則予以設計及施工。
第五條
(集體居住的樓宇)
一、主要為住宅用途而由獨立單位組成,且得以分層方式購置的新樓宇的主要入口處,將經常是使用輪椅的人士所易於到達,且盡可能重視附件一的規則。
二、由於法例規定而應具有升降機的樓宇內,最低限度應有一部其尺寸在附件一內經有所規定,并為通往各伙的所有樓層服務的升降機。
三、不妨碍現行技術及管制條例的規則下,對獨立單位為方便傷殘人士居住而顯然有需要作出適應及/或改善的修改工程,將發給有關准照并豁免全部稅項。
第六條
(工廠及工場單位)
在本法律生效後遞交有關當局審核的工廠及工場圖則,將遵守附件一列明的建築規則。
第七條
(經評定的樓宇)
一、基於本法律的精神,而應在經評定的且對公眾開放的設施及樓宇內進行的適應,將由文化局予以推進。
二、上款規定只包括屬於澳門特別行政區、市政署、澳門天主教區、公共企業及公用事業機構的不動產。
第八條
(會堂)
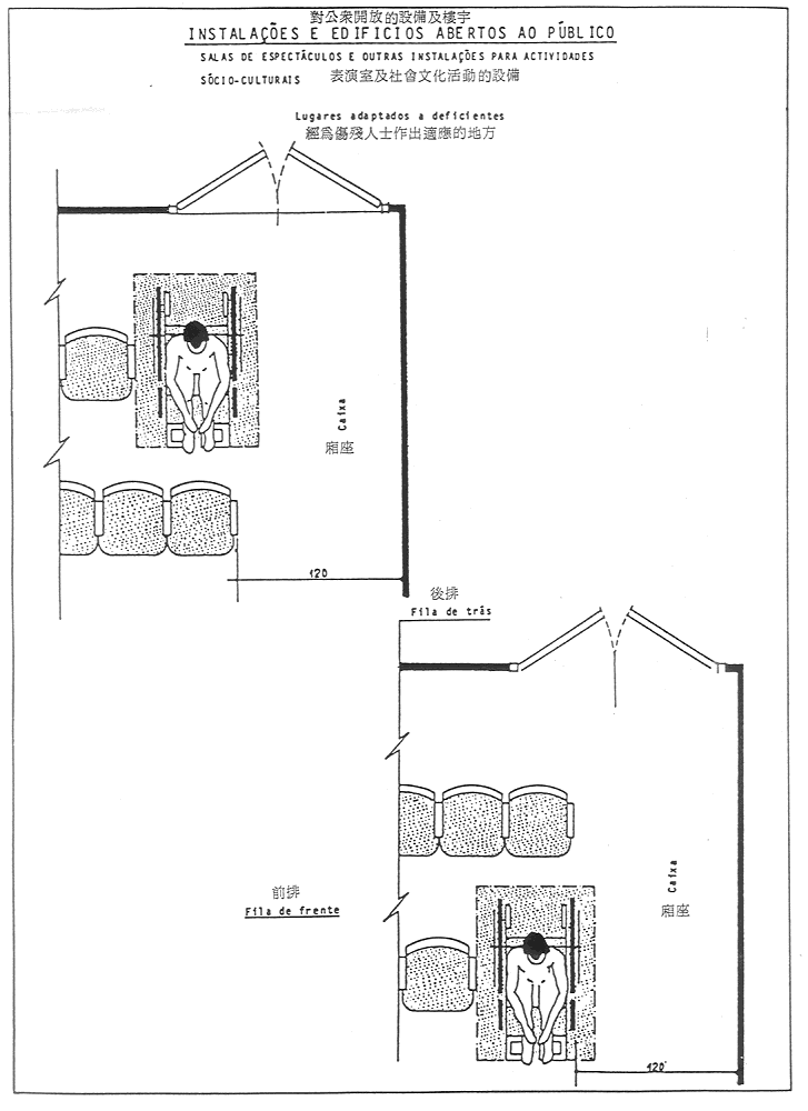
在劇院、電影院、會堂、會議室及國際會議室、體育場所與有固定坐位的其他設施內,將按照附件一的表為傷殘人士保留若干坐位。
第九條
(公共游泳池及體育場所)
公共游泳池及體育場所,將受附件一所規定之建築規則管制。
第十條
(停車場)
一、將按附件一所載表內規定的百分比,在公共停車場內保留若干地方,以供傷殘人士所使用的機動車輛停泊。
二、該等車位最好為位于停車場角落及容易到達的地點,且應以黃色劃出,并用可到達標誌的一個指示牌予以標明。
三、應有關人士請求而每當可能時,在其工作地點及住宅附近,將免費保留車位供傷殘人士的機動車輛停泊。
第十一條
(公共廁所)
在具有五個以上間隔的公共衛生設施內,應設有適合傷殘人士的一個間隔而其坐廁得由其左邊及右邊到達,又每十個間隔應有一補充間隔。
第十二條
(公共浴室)
在公共浴室內,每十五間房間將設有適合傷殘人士用的一個間隔,最低限度亦有一個間隔。
第十三條*
* 已廢止 - 請查閱:第8/2021號法律
第十四條
(公眾接待)
具備公眾接待服務而傷殘人士可通達的樓宇及設施,將設有一為該等人士作出適應的櫃枱或窗口。
第十五條
(電話)
在郵政及電訊局內,將有一按照附件一所定規則而作出適應的電話室(開啟的或關閉的)供使用輪椅的人士使用。
第十六條
(行人路)
與步行線接觸之濶度超過一米的該段行人路,將按附件一的規則降低,并以適當顏色予以標明。
第十七條
(市政署)
一、市政署將在馬路及公共行人路,以及在由其負責的設施,進行為遵守本法律所載規則的可能適應。
二*
* 不生效 - 請查閱:第26/2024號法律
第十八條
(公共樓宇的適應)
行政長官透過土地工務局將規定,按照本法律所載規定,對屬於政府樓宇可能的適應工程給予優先。
第十九條
(可到達的標誌)
一、可到達的標誌係由以藍色為底,及有一坐輪椅人士的白面圖像的一個牌所構成。
二、上款所指的標誌得以本法律組成的一部分的附件三所載圖像為依據,而用於指示牌內。
第二十條
(裝置標誌的責任)
一、可到達之標誌將裝置於樓宇設施及其附屬物,以及符合本法律所訂條件的設備之顯眼處。
二、將對不遵守上款之規定之違例者處以一百元至一千元之罰鍰。
第二十一條*
* 不生效 - 請查閱:第26/2024號法律
第二十二條
(生效)
本法律由一九八四年二月一日起生效。
附 件 一
| 工 程 | F | E | 最 小 | 應 避 免 | F | E | |||||||||||||||||||||||||||||||||||
|
|
I──市 區 |
||||||||||||||||||||||||||||||||||||||||
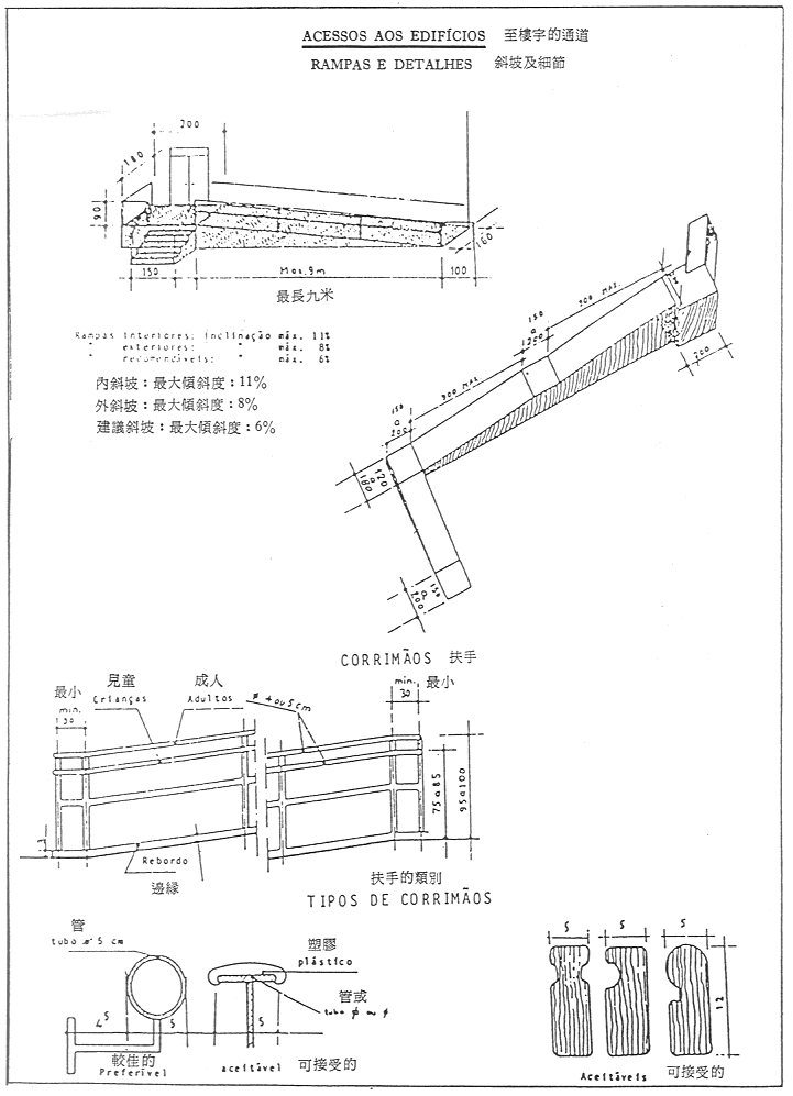
| 行人路及通道 | V | R | 橫向的最大傾斜度為百分之一。 | 訊號柱 離地面低於二米之簷蓬 |
V | R | |||||||||||||||||||||||||||||||||||
| V | R | 最小濶度為一二○公分而在交叉地區之濶度最小為一八○公分以便供兩張輪椅通過。 | 標誌或其他障碍之間少於一百公分 | V | V | ||||||||||||||||||||||||||||||||||||
| V | R | 至地面水平線或終止于最好為圓形最高為二公分的邊緣的斜度為百分之五(最高為一:一二),位於對公眾開放樓宇、集體居住樓宇等等附近停車場入口處的小斜坡按照附件二圖解作適當保護者。 | 沙及碎石 | V | V | ||||||||||||||||||||||||||||||||||||
| V | V | 高度為九○至一五○公分在危險地方的防護欄。 | |||||||||||||||||||||||||||||||||||||||
| V | V | 在經壓實之泥路,尤以停車場混凝土或瀝青的「地台」最小面積為一八○公分乘一二○公分,供輪椅轉動之用。 | |||||||||||||||||||||||||||||||||||||||
| V | R | 雨水溝渠鐵疏子內之四方形間格邊長最長為兩公分,還顧及到用托前臂手杖、三叉拐杖或手杖的人士。 | |||||||||||||||||||||||||||||||||||||||
| 行人步行線 | V | V | 交通燈號的轉換將有足夠時間給行人安全通過行人步行線(速度──一米/五秒)。 | ||||||||||||||||||||||||||||||||||||||
| V | R | 附在交通燈為指導盲人的補充有聲訊號。 | |||||||||||||||||||||||||||||||||||||||
| V | V | 行人道降低至道路水平線最多突出兩公分,傾斜度百分之五及最大濶度為九○公分。 | 光滑地面 | V | V | ||||||||||||||||||||||||||||||||||||
| V | V | 靠近斜坡為指導盲人之不同質料路面。 | |||||||||||||||||||||||||||||||||||||||
| 突出物 | V | V | 最高高度為兩公分及有圓形或斜角的邊。 | ||||||||||||||||||||||||||||||||||||||
|
II──至樓宇的通道 |
|||||||||||||||||||||||||||||||||||||||||
| 斜坡通道 | V | R | 供一部輪椅經過的最小濶度為一二○公分,供兩部輪椅交叉通過的適當濶度為一八○公分。 | ||||||||||||||||||||||||||||||||||||||
| V | V | 樓梯兩邊扶手之高度,供成年人為九○公分,供兒童為七五公分,在斜度的延長之開始高度為一○○公分。 | |||||||||||||||||||||||||||||||||||||||
| V | V | 有防滑的地面。 | |||||||||||||||||||||||||||||||||||||||
| V | R | 入口的梯台為一五○公分乘二○○公分或一八○公分乘二○○公分,此係按照斜坡而分別有一二○公分或一八○公分的濶度。 | |||||||||||||||||||||||||||||||||||||||
| V | R | 離地面八○至九○公分門鈴按鈕。 | |||||||||||||||||||||||||||||||||||||||
| 外梯 | V | R | 濶度為一二○公分。 | ||||||||||||||||||||||||||||||||||||||
| V | R | 兩面的扶手有外面的防護裝置,其高度為八○五至九○公分及容許用手緊握(厚度或直徑為四至五公分)。 | |||||||||||||||||||||||||||||||||||||||
| V | R | 梯的扶手由頂伸展至底介乎三○至四五公分。 | |||||||||||||||||||||||||||||||||||||||
| V | R | 一層樓不應只有一乘梯,而應用中間小梯台將之分段。 | |||||||||||||||||||||||||||||||||||||||
| V | R | 梯的起端為不同質料,以便為盲人觸摸辨別。 | |||||||||||||||||||||||||||||||||||||||
| R | R | 有圓形級咀或最好無級咀的梯級。 | 無竪板的梯級 | R | R | ||||||||||||||||||||||||||||||||||||
| V | R | 梯級高度為一六公分(最小為八公分)及梯級面的長度為三○公分。 | 有突出級咀的梯級 | R | R | ||||||||||||||||||||||||||||||||||||
| R | R | 防滑面。 | 滑面 | R | R | ||||||||||||||||||||||||||||||||||||
| 註明:除梯外應預見供坐輪椅傷殘人士而設的斜坡。 | |||||||||||||||||||||||||||||||||||||||||
|
III──樓宇入口處 |
|||||||||||||||||||||||||||||||||||||||||
| 入口的門 | V | R | 門口濶度:九○與一○○公分之間。 | 旋轉門,倘無其他入口 | V | R | |||||||||||||||||||||||||||||||||||
| R | R | 建議用最好由電子或透過接觸的地氈而操作的 |
厚地氈 | R | R | ||||||||||||||||||||||||||||||||||||
| R | R | 開力係介乎二.三及三.五的十牛頓力。 | 兩扇門,倘其中一扇並無九○公分的濶度 | V | R | ||||||||||||||||||||||||||||||||||||
| V | R | 門鈴或門閂的按鈕離地面八○至九○公分。 | |||||||||||||||||||||||||||||||||||||||
| V | R | 門把的高度為七五至九○公分。 | 球形門把 | R | R | ||||||||||||||||||||||||||||||||||||
| R | R | 金屬或其他能抗撞擊物質而裝置在門板內部整個部份及高度為四五公分的保護板。 | |||||||||||||||||||||||||||||||||||||||
| 入口門檻 | V | R | 無門檻或有最高為二公分但為圓形的門檻。 | 梯級 | V | R | |||||||||||||||||||||||||||||||||||
| 對公眾開放或集體居住樓宇的大堂 | V | R | 至電梯或斜坡通道無不平坦的地方。 | 梯 | R | R | |||||||||||||||||||||||||||||||||||
| V | R | 最小面積:壹五○公分乘二四○公分。 | 可移動或厚的地氈 | R | R | ||||||||||||||||||||||||||||||||||||
| V | R | 郵箱:離地面之高度為七○與一三○公分之間。 | |||||||||||||||||||||||||||||||||||||||
| 來往 | V | R | 最小濶度為: 110公分──走廊長度不多於90公分。 120公分──走廊長度不多於20米。 150公分──走廊長度多於20米。 |
地氈 | R | R | |||||||||||||||||||||||||||||||||||
| 升降機 | V | R | 機廂 (供輪椅一部及二人) |
||||||||||||||||||||||||||||||||||||||
| V | R | 內部濶度為一○○公分(適當為一二○公分) 深度為一三○公分(適當為一五○公分) |
|||||||||||||||||||||||||||||||||||||||
| V | R | 有自動開啟的 |
|||||||||||||||||||||||||||||||||||||||
| 門口: | |||||||||||||||||||||||||||||||||||||||||
| V | R | 最低──八○公分。 | |||||||||||||||||||||||||||||||||||||||
| V | R | 適當──九○公分。 | |||||||||||||||||||||||||||||||||||||||
| V | R | 倘可能時設于水平的控制系統之高度介乎一二○及一五○公分,距入口的門有五○公分。 | |||||||||||||||||||||||||||||||||||||||
| V | R | 在三面內牆之濶度為五公分之扶持橫桿之彼此分隔為五公分,高度為九○公分。 | |||||||||||||||||||||||||||||||||||||||
| V | R | 停留的準確度為正負兩公分。 | 間斷的水平停留 | V | R | ||||||||||||||||||||||||||||||||||||
| V | R | 在每一樓層停留時,至少由一部或兩部或以上的升降機聯同確保服務。 | 接近升降機的出口的梯 | R | R | ||||||||||||||||||||||||||||||||||||
| V | R | 梯台與升降機廂之間的最大分隔為──兩公分。 | |||||||||||||||||||||||||||||||||||||||
| V | R | 在升降機門前之梯口最小為一五○公分乘一五○公分。 | |||||||||||||||||||||||||||||||||||||||
| V | R | 離地面一二○公分供召喚的樓層按鈕。 | |||||||||||||||||||||||||||||||||||||||
| V | R | 自動 |
|||||||||||||||||||||||||||||||||||||||
| 註明:用手操作倘在通常的建築物升降機門的開啟力係五個十牛頓力對若干傷殘人士是頗為困難的,倘不能使用自動門時,希望將上述數目減為四.五或更少。 | |||||||||||||||||||||||||||||||||||||||||
|
IV──內部的往來 |
|||||||||||||||||||||||||||||||||||||||||
| 住宅的入口門 | V | R | 門口實際濶度──最小為九○公分。 | ||||||||||||||||||||||||||||||||||||||
| R | R | 門板下面部份濶度為四○公分的保護板。 | |||||||||||||||||||||||||||||||||||||||
| V | R | 離地面八○至九○公分的門鈴按鈕。 | |||||||||||||||||||||||||||||||||||||||
| V | R | 門把及鎖高度介乎八○公分至一○○公分。 | 球形門把 | R | R | ||||||||||||||||||||||||||||||||||||
| 門檻 | V | R | 無門檻或有最大高度為兩公分但為圓形的門檻。 | 厚及可移動的地氈梯級 | R | R | |||||||||||||||||||||||||||||||||||
| 內門 | V | R | 門口實際濶度最小為八○公分(適當為九○公分)。 | 位於走廊末端的門的位置 | R | R | |||||||||||||||||||||||||||||||||||
| V | R | 廁所門為七○公分(適當為八○公分)。 | |||||||||||||||||||||||||||||||||||||||
| R | R | 前面通道。 | |||||||||||||||||||||||||||||||||||||||
| R | R | 向外面開啟的浴室及廁所門。 | |||||||||||||||||||||||||||||||||||||||
| V | R | 離地面八○至一○○公分的門把。 | 球形門把 | R | R | ||||||||||||||||||||||||||||||||||||
| 走廊 | V | R | 濶度: 一○○至一二○公分供一部輪椅隨意來往。 |
厚或可移動的地氈 | R | R | |||||||||||||||||||||||||||||||||||
| 門廊 | R | R | 適宜的通常面積── 一五○公分乘一五○公分。 | 可移動的行人步行線 | R | R | |||||||||||||||||||||||||||||||||||
| 內梯 | R | R | 亦適用於上述所指同樣規則的內梯。 | 螺旋形梯 | R | R | |||||||||||||||||||||||||||||||||||
|
V──適應傷殘人士的住宅、場所及不同設施的附屬室。 |
|||||||||||||||||||||||||||||||||||||||||
| 設有浴缸、洗面盆、洗手間之浴室 | 最小面積──二.二○米乘一.九○米。 | 光滑地面 | R | R | |||||||||||||||||||||||||||||||||||||
| 地氈 | R | R | |||||||||||||||||||||||||||||||||||||||
| R | R | 向外開啟的門或 |
妨碍一部輪椅操作地區的傢私或普通設備 | R | R | ||||||||||||||||||||||||||||||||||||
| V | R | 預見有轉動一八○度的區域。 | |||||||||||||||||||||||||||||||||||||||
| V | R | 浴缸──一六○公分乘七○公分。 | |||||||||||||||||||||||||||||||||||||||
| V | R | 高度──五○至五五公分; | |||||||||||||||||||||||||||||||||||||||
| V | R | 沿牆壁離地面七○至八五公分及按每一傷殘人士需要的固定扶持橫杆; | |||||||||||||||||||||||||||||||||||||||
| V | R | 浴缸缸底的濶度為四○至六○公分; | |||||||||||||||||||||||||||||||||||||||
| V | R | 水龍頭:裝置在最大幅牆的中間連同混合器及電話型花灑; | |||||||||||||||||||||||||||||||||||||||
| V | R | 浴缸的頂部應有供傷殘人士能坐下的足夠濶度的面積: | |||||||||||||||||||||||||||||||||||||||
| V | R | 最低限度兩行磁磚。 | |||||||||||||||||||||||||||||||||||||||
| V | R | 坐廁: 高度──五○乘五五公分; 在坐廁前面供足部休息可移動的座; 扶持橫杆:兩面的可移動的及為四至五公分的,離地面七五公分及長度為六○公分; 懸於天花板而離地面一二○公分的倘有的三角形扶持物; 廁紙座:固定在扶持橫杆之任一端; 水箱──盡可能與坐廁分開; |
|||||||||||||||||||||||||||||||||||||||
| V | R | 洗面盆: 高度:其上面離地──八○公分; 吸管與前面邊伸延的距離:二五至三五公分: 嵌在牆壁內或有隔熱的吸管; 支承架的高度為九○至一○○公分; 裝置在一○○至一八○公分之間並有百分之十的傾斜的鏡; 掛毛巾的架:在可接觸的範圍內。 |
有柱的洗面盆 |
R |
R |
||||||||||||||||||||||||||||||||||||
| 無坐廁的浴室 | 最小面積── 一九○公分乘一七○公分。 | ||||||||||||||||||||||||||||||||||||||||
| 有坐廁及洗面盆之花灑浴室 | V | R | 最小面積──二二○公分乘一六○公分。 建議面積為二五○乘二一○公分。 預見轉動一八○度的一個範圍。 向外開啟的門或 |
光滑地面 |
R |
R |
|||||||||||||||||||||||||||||||||||
| V | R | 花灑浴室: 地面──裝置在溝渠上而用木砌成棋盆形的木地板; 離地面一○○至一二○公分的電話型花灑; 一○○公分高的水總制; 在側面及後面牆壁的扶持橫杆有四──五公分以至七五──八五公分的高度; 可摺叠的櫈的深度為五○公分。 |
|||||||||||||||||||||||||||||||||||||||
| 有洗面盆而無坐廁的沐浴花灑浴室 | V | R | 最小面積── 一六○公分乘一六○公分。 | 光滑地面 | R | R | |||||||||||||||||||||||||||||||||||
| 向外開啟及 |
|||||||||||||||||||||||||||||||||||||||||
| 有洗面盆的廁所 | V | R | 最小面積── 一四○公分乘一四○公分。 通常面積── 一六○公分乘二二○公分。 預料轉動一八○度角的留空面積。 |
||||||||||||||||||||||||||||||||||||||
| 尿兜(供非固定的傷殘人士用) | V | R | 離地面一二○公分之兩面扶持橫杆。 | 梯級 | R | R | |||||||||||||||||||||||||||||||||||
| 光滑地面 | R | R | |||||||||||||||||||||||||||||||||||||||
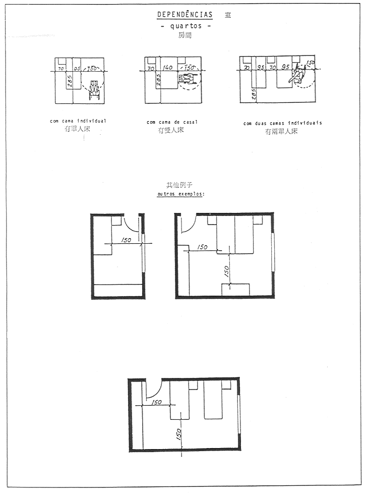
| 有獨睡牀及房間 | V | R | 最小面積── 三一五公分乘二八五公分。 建議面積── 三八五公分乘三三五公分。 傢私脚的收藏: 深度── 一五至二○公分 高度── 二五至三○公分 倘為 牀的高度──五○至五五公分 |
妨碍輪椅往來的補充設備 | R | R | |||||||||||||||||||||||||||||||||||
| V | R | 衣櫃: 置於地面,無脚及使輪椅之座進入內面者: 高度── 一七○公分; 深度── 六○公; 在一四○公分處為掛衣架粗棍; 衣架固定在一二○公分處; 裝置在離地面四○與一三○公分之間、深度為三○至四○公分之可能有的櫃隔 裝置在離地面四○乘一一○公分,深度為三○至四○公分及抽屜; |
|||||||||||||||||||||||||||||||||||||||
| V | R | 傢私之間的留空的空間; 最小──九○公分; 適宜── 一五○公分。 |
|||||||||||||||||||||||||||||||||||||||
| 有雙人牀的房間 | R | R | 最小面積──三六○公分乘二八五公分 建議面積──四八○公分乘三三五公分; 與有單人牀睡房所指相同規則 |
||||||||||||||||||||||||||||||||||||||
| 有兩張獨睡牀的房間 | R | R | 最小面積──四八○公分乘二八五公分與有單人牀房間所指之相同規則 | ||||||||||||||||||||||||||||||||||||||
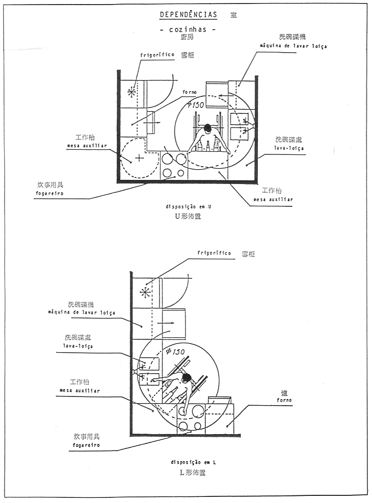
| 廚房 | |||||||||||||||||||||||||||||||||||||||||
| R | R | 最適合傷殘人士的L或U型設計 預見為一五○公分乘一五○公分之最小留空面積與燃燒設備 分隔的火爐 |
地氈 |
R |
R |
||||||||||||||||||||||||||||||||||||
| 工作枱: 高度──八○至八五公分之間; 深度──六○公分 介乎七○至七五公分之間的下面留空的空間。 |
光滑地面 | R | R | ||||||||||||||||||||||||||||||||||||||
| 洗碗盆: 高度──八○至九○公分之間; 介乎七○至七五公分之間的下面留空的空間; 裝嵌或有隔熱的虹吸管; 連接在虹吸管倘有的搗碎餘饌器,裝嵌的或受防護的; 盆的深度── 一五公分; 有鵠頸的水龍頭及混合器。 |
|||||||||||||||||||||||||||||||||||||||||
| 廚房 | V | R | 火爐: 裝設在深為二○公分、高三○公分的一個灶枱上,以致第一塊板與工作枱之水平相符合,或中間部份與眼的高度看齊。(正負為一一○公分)。 深度──三○至四○公分; 濶度──六○公分; 由側面向更有利方面開啟的門 預見一個側面的 |
妨碍輪椅來往的補充設備 | R | R | |||||||||||||||||||||||||||||||||||
| 雪櫃: 與火爐所指之相同規則。 |
|||||||||||||||||||||||||||||||||||||||||
| 洗碗機: 與火爐所指之相同規則。 |
|||||||||||||||||||||||||||||||||||||||||
| 櫃及其間隔: 裝置在離地面三○及一四○公分之間; 在工作枱的最大深度為三○公分; 最好為 倘為落地櫃,其脚之深度為二○公分及高度為三○公分。 |
|||||||||||||||||||||||||||||||||||||||||
| 抽屜: 裝置在高度為四○與一一○公分之間。 |
|||||||||||||||||||||||||||||||||||||||||
| 窗 | 高度──正負一五○公分。 窗檻的高度──六○公分。 門閂及門把高度──九○至一二○公分。 最好為 |
外門 | R | R | |||||||||||||||||||||||||||||||||||||
| 電器裝置 | 開關、門鈴的按鈕、及門閂應裝置在九○至一二○公分的高度。 入牆的電插頭應裝置在離地面三○至六○公分處。 應在浴室裝置離地面六○公分的一個警報系統(牽引的或按鈕的)。 在無偵察及警報火警的自動系統內,應裝置用手操作的其他系統,而其控制器應設在高度為九○至一二○公分處。 |
旋轉開關 | R | R | |||||||||||||||||||||||||||||||||||||
| 飯廳的枱 | 高度──七五至八○公分。 下面留空空間──七○至七五公分。 為一名輪椅使用者所使用之必需面積──八○公分乘一一○公分。 |
||||||||||||||||||||||||||||||||||||||||
| 在餐廳內: 枱與枱之間的空間──按照規定為九○或一八○公分。 |
|||||||||||||||||||||||||||||||||||||||||
|
VI──對公眾開放的設施及樓宇 |
|||||||||||||||||||||||||||||||||||||||||
| 櫃枱及窗口 | V | R | 高度──八○至九○公分。 | ||||||||||||||||||||||||||||||||||||||
| V | R | 前面的留空空間──九○公分乘一○○公分。 | |||||||||||||||||||||||||||||||||||||||
| 自動服務的櫃枱 | R | R | 高度──八○──九○公分。 | ||||||||||||||||||||||||||||||||||||||
| R | R | 前面的留空空間──九○至一○○公分。 | |||||||||||||||||||||||||||||||||||||||
| R | R | 成年人或兒童的扶持橫杆應分別裝置在高度為九○及七五公分處。 | |||||||||||||||||||||||||||||||||||||||
| 收銀機之間的通道 | V | R | 留空的空間──九○至一○○公分。 | ||||||||||||||||||||||||||||||||||||||
| 電話 | V | R | 掛牆電話(有或無箱藏) | ||||||||||||||||||||||||||||||||||||||
| V | R | 撥字盤應介乎在一○○至一三○公分的高度。 | |||||||||||||||||||||||||||||||||||||||
| 電話亭: | |||||||||||||||||||||||||||||||||||||||||
| V | V | 最小面積──九○公分乘一四○公分。 | |||||||||||||||||||||||||||||||||||||||
| V | V | 適當面積──一二○公分乘二○○公分。 | |||||||||||||||||||||||||||||||||||||||
| 門: | |||||||||||||||||||||||||||||||||||||||||
| V | V | 濶度:八○公分。 | |||||||||||||||||||||||||||||||||||||||
| V | V | 應自動關閉。 | |||||||||||||||||||||||||||||||||||||||
| 電話 | 枱: | ||||||||||||||||||||||||||||||||||||||||
| V | V | 高度──八○至八五公分。 | |||||||||||||||||||||||||||||||||||||||
| V | V | 下面留空的空間──七○至七五公分。 | |||||||||||||||||||||||||||||||||||||||
| 往海灘的通通 | V | R | 以類推方法執行載於本附件的一般規則 | ||||||||||||||||||||||||||||||||||||||
| 場所及體育設施 | V | R | 預見為通經行人隧道的斜坡。 | ||||||||||||||||||||||||||||||||||||||
| 執行載於本附件的一般規則。 | |||||||||||||||||||||||||||||||||||||||||
| V | R | 行人路及走廊的扶手。 | |||||||||||||||||||||||||||||||||||||||
| V | R | 售票及貯存個人物品而高度為九十公分之櫃枱。 | |||||||||||||||||||||||||||||||||||||||
| V | R | 預見已作適應的洗手間。 | |||||||||||||||||||||||||||||||||||||||
| V | R | 浴室: 執行為花灑浴室所指之規則。 |
|||||||||||||||||||||||||||||||||||||||
| V | R | 更衣室: 執行對一部輪椅往來及操縱的一般規則; |
|||||||||||||||||||||||||||||||||||||||
| V | R | 室: 面積──一八五公分乘一七○公分; 離地五○公分而固定在牆壁的櫈; 固定在一一○公分高度的衣架; 鑲在牆壁而離地為九○公分之扶持橫杆。 |
|||||||||||||||||||||||||||||||||||||||
| R | R | 游泳池: 在本附件定出梯之長度及梯級; 緊接的梯有供輪椅用的斜坡; 梯兩邊雙重的扶手及斜坡,其高度分別為四六及八五公分,而向末端的伸展最小為四○公分; |
|||||||||||||||||||||||||||||||||||||||
| 有防滑的地板。 | 光滑地板 | R | R | ||||||||||||||||||||||||||||||||||||||
| 在觀眾之間而為傷殘人士保留的坐位特徵平面面積:一○○公分乘一五○公分通道(走廊)最小濶度為九○公分; 較遊戲場所的水平線為高; 位於更容易到達的地方。 |
|||||||||||||||||||||||||||||||||||||||||
|
|||||||||||||||||||||||||||||||||||||||||
| 學校及供訓練之樓宇及設施 | 在上數章所定一般規則將以類推方法予以實施 若干樓宇至其他樓宇之通道將為平滑的並盡可能有物覆蓋 濶度最小為一五○公分更佳為一八○公分的走廊無門檻的向外開啟的門,門口為九○至一○○公分 在多層樓宇內已作出適應的升降機 每十有一已作適應的洗手間 已作適應的花灑浴室一間 為教學用的所有地方(課室、實驗室等)按照現在所制訂的一般規則係供坐輪椅傷殘人士來往的範圍 |
||||||||||||||||||||||||||||||||||||||||
| V | R | 適應傷殘人士的設備得用輪椅替代可移動的椅; | |||||||||||||||||||||||||||||||||||||||
| 得降低至九○公分的黑板等 | |||||||||||||||||||||||||||||||||||||||||
| 表演室及社會文化活動的其他設施 | 以類推方法將上數章的一般規定予以實施 | ||||||||||||||||||||||||||||||||||||||||
| 最小濶度為九○公分之通道及走廊; 適宜──一二○至五○公分 |
|||||||||||||||||||||||||||||||||||||||||
| 為傷殘人士保留的空間: 最小(水平)面積──九○至一○○公分乘一二○公分; 建議面積──九○至一○○公分乘一五○公分; 後面通道 |
|||||||||||||||||||||||||||||||||||||||||
|
|||||||||||||||||||||||||||||||||||||||||
| 停車場 | 將為傷殘人士保留空間的最小面積──三三○公分乘五○○公分 建議面積以便預見一個側面的留空空間為一一四公分至三六○公分乘五○○公分用黃線劃出 有可到達標誌的指示牌 無傾斜的通道或用有一個更大傾斜度為一比一式的小斜坡 往地下停車場的通道: 用有一個最大傾斜度為百分之五的斜坡: 用升降機 |
||||||||||||||||||||||||||||||||||||||||
| V | R | 為傷殘人士車輛保留車位的表: A 超過五十個車位的一般公眾停車場,每百或不足之數預留一車位 B 在醫院、健康中心、醫務所等的停車場:每三十個預留一個最少預留一個 C 體育場所的停車場:每五十個或不足之數預留一個車位 |
|||||||||||||||||||||||||||||||||||||||
| 車房 | 最小面積三三○公分乘五○○公分 適宜面積三六○公分至三八五公分乘五○○公分至六○○公分,以便預見一一四公分至一六○公分的一個側面留空的空間: 通道的深道(行李箱、馬達)──最小為一○○公分; |
||||||||||||||||||||||||||||||||||||||||
| R | R | 通道的濶度(入口)── 一一四公分至一六○公分上落型趟門,倘可能為自動門(以接觸地氈)燈的開關應位於接近汽車入口/出口的地方設有車房的集體居住樓宇應預見為傷殘人士作出適應的百分之十的車位 | |||||||||||||||||||||||||||||||||||||||
|
VII 工廠、工場 |
|||||||||||||||||||||||||||||||||||||||||
| 建築、適應及設備工作場所 | R | R | 以類推方法執行本附件的一般規則 除可引用的一般規則外,必須在每一情況,一方面考慮工作的性質及在另一方面考慮傷殘的類別及其嚴重性 |
||||||||||||||||||||||||||||||||||||||
|
VIII 通道的標誌 |
|||||||||||||||||||||||||||||||||||||||||
| 通道的標誌 | V | R |
|
||||||||||||||||||||||||||||||||||||||
| 字及數目 | V | V |
|
||||||||||||||||||||||||||||||||||||||
說明:
F──對未來工程而言
E──對現有者而言
V──強制性
R──勸諭性
附件二
為無建築障碍而設計的規則
除附件一的規則以圖案顯示外。
表三
通達標誌

































