澳 門 特 別 行 政 區
運輸工務司司長辦公室
|
| |||||||||||
| 相關法規 : | |||
| 相關類別 : | |||
| 《LegisMac》的法例註釋 | |||
第5/2001號運輸工務司司長批示
運輸工務司司長行使《澳門特別行政區基本法》第六十四條賦予的職權,並根據七月五日第6/80/M號法律第二十九條、第一百零七條、第一百二十七條和第一百五十三條的規定,作出本批示。
一、按照附於本批示並作為其組成部分的合同第七條款的規定及條件,許可 Ho Hao Chio、Ho Hao Veng 及 Ho Hao Tong將一幅以長期租借制度批出,位於澳門雅廉訪大馬路,面積113平方米,其上建有3號樓宇,標示於物業登記局第10105號的土地批給所衍生的權利以有償方式轉讓給 Companhia de Construção e Investimento Predial Trust, Limitada。
二、為統一上款所指土地及一幅位於其後面,面積79平方米,標示於上指登記局第19378號,將合併作整體利用的該等土地的法律制度,Companhia de Construção e Investimento Predial Trust, Limitada 將該幅面積79平方米的土地贈與澳門特別行政區,隨後按照附件合同的規定及條件以長期租借制度將該幅土地批予該公司。
三、本批示立即生效。
二零零一年二月二十六日
運輸工務司司長 歐文龍
———
附 件
(土地工務運輸局第2163.2號案卷及土地委員會第8/2000號案卷)
合同協議人:
甲方 - 澳門特別行政區;及
乙方 - Ho Hao Chio、Ho Hao Veng 及Ho Hao Tong,由Companhia de Construção e Investimento Predial Trust, Limitada 代表;及
丙方 - Companhia de Construção e Investimento Predial Trust, Limitada。
鑑於:
一、透過一九九八年七月十五日第二十八期《澳門政府公報》第二組公布的第66/SATOP/98號批示,對以長期租借制度批給 Ho Hao Chio、Ho Hao Veng 及 Ho Hao Tong 的一幅位於澳門雅廉訪大馬路,其上建有三號樓宇,面積113平方米的土地的批給合同作出規範。
二、根據上指合同第二條款和第四條款的規定,土地用作興建一幢住宅及商業樓宇,總期限為二十四個月,即由《公報》公布之日起計至二零零零年七月十五日止。
三、根據財政跟進表,合同所訂定的溢價金及其他回報已準時繳納。
四、稍後,透過一九九九年一月二十五日的申請,公司住所位於澳門北京街173-177號,Marina Plaza 大廈地下 P-Q,註冊於澳門商業及汽車登記局C7冊第167頁背頁第2605號的 Companhia de Construção e Investimento Predial Trust, Limitada 以承批人的受權人身份,向土地工務運輸局遞交一份有關上述土地利用工程之更改及擴建計劃,因欲將該土地及位於其後面的一幅79平方米,屬完全所有權制度的土地作整體發展,故為著有關效力,申請統一該等土地的制度。
五、根據前土地工務運輸司司長於一九九九年四月六日作出的批示,上述計劃被視為可予核准,但須遵守個別的技術要求,為此,土地管理廳於一九九九年五月三日通知申請人辦理有關更改土地利用的申請手續。
六、在此情況下,透過二零零零年一月二十六日的申請,Companhia de Construção e Investimento Predial Trust, Limitada以上指身份,並根據合同第七條款的規定,申請批准將由上述第66/SATOP/98號批示作出規範的批給合同所衍生的權利轉讓給該公司,理由是已取得該幅79平方米土地的業權。同時將該幅土地贈予澳門特別行政區,以便隨後以長期租借制度將之批予該公司與所申請批給的土地作合併,為此,該公司要求修改有關合同。
七、在組成案卷後,土地工務運輸局土地管理廳分析了有關申請,並制定轉讓及修改合同擬本,申請人透過二零零零年四月十一日的聲明書,同意該擬本。
八、根據該合同擬本,為了整體利用而統一該等土地的法律制度,申請人贈予澳門特別行政區一幅面積79平方米,標示在物業登記局B40冊第60頁背頁第19378號,以其名義登錄於第5521G號,並在地圖繪製暨地籍局於二零零零年三月十七日發出的第4859/1994號地籍圖中以字母“A”標示的土地業權,澳門特別行政區隨即以長期租借制度將該幅土地批予申請人,以便與上述地籍圖中以字母“B”及“C”標示和登錄於物業登記局第10105號的土地作合併,從而組成一幅面積192平方米的單一地段。
九、案卷按一般程序送交土地委員會,該委員會於二零零零年五月十八日舉行會議,不反對批准有關申請。
十、土地委員會的意見書於二零零零年七月二十五日經行政長官的批示確認,該批示載於運輸工務司司長二零零零年七月二十四日的贊同意見書上。
十一、根據七月五日第6/80/M號法律第一百二十五條的規定,並為著有關效力,有關轉讓的條件已通知承批人的受權人Companhia de Construção e Investimento Predial Trust, Limitada,其透過二零零零年十二月十三日由 Pedro Chiang,已婚,柬埔寨出生,居於澳門沙嘉都喇賈罷麗街19號A地下,以總經理的身份簽署的聲明書明確表示接受有關條件,根據載於該聲明書的確認,其身份及權力已由 Leonel Alberto Alves 私人公證員事務所核實。
十二、根據存檔於土地委員會的第14094/60652號收據憑單,因利用權之取得而應繳付的物業轉移稅已於二零零零年十二月四日在澳門公鈔局收納處繳付。
十三、合同第三條款第三款所指的因調整使用權價金而衍生的差額及第六條款所指的溢價金已透過由土地委員會於二零零零年十一月十日發出的第109/2000號非經常性收入憑單,於二零零零年十一月十三日在澳門公鈔局收納處繳付(收據編號56810),副本存檔於有關案卷內。
第一條款——合同標的
1. 根據經一九九八年七月十五日第二十八期《澳門政府公報》第二組公布的第66/SATOP/98號批示作出規範的合同第七條款的規定,甲方許可乙方以有償方式轉讓一幅位於澳門雅廉訪大馬路,面積113(壹佰壹拾 叁)平方米,其上建有3號樓宇,標示於物業登記局第10105號,在地圖繪製暨地籍局於二零零零年三月十七日發出的第4859/1994號地籍圖中以字母“B”及“C”標示的土地的使用權予丙方。
2. 為統一標示於物業登記局第10105號及第19378號的土地的法律制度,甲丙雙方達成如下協議:
2.1)
丙方在甲方接受下,贈予甲方一幅無任何責任或負擔,面積79(柒拾玖)平方米,價值為澳門幣813,876.00(捌拾壹萬
仟捌佰柒拾陸)元,在上指地籍圖中以字母“A”標示,位於第10105號所載土地後面的地段。上述土地標示於物業登記局第19378號,並以完全所有權制度以丙方名義登記於第5521G號。
2.2)
以長期租借制度批給丙方上款所指,用作合併於毗鄰的,在上述地籍圖中以字母“B”及“C”標示,總面積113(壹佰壹拾
)平方米及標示於物業登記局第10105號的地段。
3. 第2款所述的,在上述地籍圖中分別以字母“A”、“B”及“C”標示的地段將按長期租借制度作共同利用,以構成一幅面積192(壹佰玖拾貳)平方米的單一地段,該地段以下簡稱土地,其批給轉由本合同的條款約束。
第二條款——土地的利用及用途
1. 土地用作興建一幢屬分層所有權制度的八層高樓宇。
2. 上款所述樓宇的用途如下:
商業:面積407平方米;
住宅:面積1,154平方米。
第三條款——利用權價金及地租
1. 土地利用權價金的總值為澳門幣176,450.00(拾柒萬陸仟肆佰伍拾)元,其分類如下:
1.1) 在地圖繪製暨地籍局於二零零零年三月十七日發出的第4859/1994號地籍圖中以字母“C”標示的土地的經調整後價值為澳門幣22,056.00(貳萬貳仟零伍拾陸)元;
1.2) 在上述地籍圖中以字母“A”標示的贈與及批給土地,以及透過第66/SATOP/98號批示,以字母“B”標示的贈與及批給土地經調整後的價值為澳門幣154,394.00(拾伍萬肆仟
佰玖拾肆)元。
2. 豁免丙方繳付上款1.2)項所指的“A”地段的利用權價金。
3. 當寄回接受按照經澳門特別行政區行政長官確認的擬本訂定的本合同條件的聲明書時,須一次過繳付第1款1.1)項訂定的經調整的利用權價金的全部差額。
4. 每年繳付的地租調整為澳門幣441.00(肆佰肆拾壹)元,其分類如下:
4.1) 在地圖繪製暨地籍局於二零零零年三月十七日發出的第4859/1994號地籍圖中以字母“C”標示的地段的地租為澳門幣 55.00(伍拾伍)元;
4.2) 在上述地籍圖中以字母“A”及“B”標示的地段的地租為澳門幣386.00(
佰捌拾陸)元。
5. 倘不準時繳付地租,將按稅務執行程序進行強制徵收。
第四條款——利用期限
土地的利用總期限為24(貳拾肆)個月,由規範本合同的批示在《澳門特別行政區公報》公布當日起計。
第五條款——罰款
1. 除有適當解釋且為甲方接受的原因外,倘丙方不遵守上條款所訂有關遞交圖則、開展及完成工程的期限,延遲不超過60日者,處以罰款每日可達澳門幣5,000.00(伍仟)元;延遲超過60日,但在120日以內者,則罰款將加至雙倍。
2. 倘遇不可抗力或其產生被證實為不受控制的其他重要情況,則免除丙方承擔上款所指責任。
3. 僅因不可預見及不可抵抗事件而引發的情況方視為不可抗力。
4. 為產生本條款第2款規定的效力,丙方必須盡快將發生的事實以書面通知甲方。
第六條款——合同溢價金
在不妨礙繳付第66/SATOP/98號批示第六條款訂定的溢價金澳門幣227,218.00(貳拾貳萬柒仟貳佰壹拾捌)元的情況下,丙方尚須因本修改而繳付金額澳門幣20,311.00(貳萬零
佰壹拾壹)元,甲方已收妥有關款項,並向丙方發出清訖證明。
第七條款——轉讓
當土地未被完全利用而將本批給所帶來之情況轉讓,須事先得到甲方許可,承讓人亦須受本合同修改後的條件約束,尤其是涉及溢價金方面。
第八條款——監督
在批出土地的利用期間,丙方必須准許行政當局有關部門執行監督工作的代表進入土地及施工範圍,並向代表提供協助和工具,使其有效執行任務。
第九條款——土地的退還
1. 倘未獲批准而更改土地的利用或批給用途,甲方可宣告收回全部或部分土地。
2. 如發生下列任一事實,雙方亦同意交還土地:
2.1) 第五條款規定的加重罰款期限屆滿;
2.2) 土地的利用及/或批給用途中斷;
2.3) 當土地利用未完成,未經甲方預先許可而將批給所帶來之情況轉讓;
2.4) 不遵守第六條款所訂的義務。
3. 土地的退還由澳門特別行政區行政長官以批示宣告,並在《澳門特別行政區公報》公布。
4. 土地退還的宣告將產生下列後果:
4.1) 土地的利用權全部或部分取消;
4.2) 土地連同有關的改善物全部或部分歸甲方所有,丙方有權收取由甲方所訂定的賠償。
第十條款——有權限法院
澳門特別行政區初級法院為有權限解決由本合同所產生的任何爭議的法院。
第十一條款——適用法例
如有遺漏,本合同以七月五日第6/80/M號法律和其他適用法例規範。
| 相關法規 : | |||
| 相關類別 : | |||
| 《LegisMac》的法例註釋 | |||
第6/2001號運輸工務司司長批示
運輸工務司司長行使《澳門特別行政區基本法》第六十四條賦予的職權,並根據七月五日第6/80/M號法律第二十九條第一款(c)項、第四十九條及第五十七條第一款(a)項的規定,作出本批示:
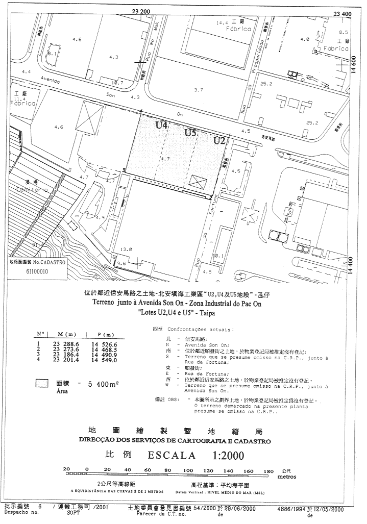
一、按照附於本批示並作為其組成部分的合同的規定及條件,以租賃及免除公開競投方式批出一幅面積5,400平方米,位於
仔北安工業區稱為U2、U4及U5地段的土地。
二、本批示即時生效。
二零零一年二月二十六日
運輸工務司司長 歐文龍
———
附件
(土地工務運輸局第6328.1號案卷及土地委員會第13/2000號案卷)
合同協議人:
甲方-澳門特別行政區;及
乙方-“MM Powerplus Barramentos, Limitada”。
鑑於:
一、“MM Powerplus Barramentos, Limitada”擬在本特區興建一幢工業大廈,用作生產供商業大廈、工廠、酒店及其他樓宇的電力設施用的金屬電匯排,於一九九五年十月二十三日由
Zhuo Rongliang 及 Tong Seak Kan
代表向前澳門總督遞交申請書,請求以租賃及免除公開競投方式批出一幅位於
仔北安填海區“A”地段,面積7,400平方米的土地。上述公司的總辦事處設於澳門燒灰爐街10及12號“
Yang Ming Seaview Garden”大廈1字樓“B”,登記於商業及汽車登記局C27冊第34頁背面第10587號。
二、申請已呈交澳門貿易投資促進局審議,該局鑑於該計劃的有利之處,對上述工廠的設置發出贊同意見,之後,前運輸暨工務政務司於一九九六年六月二十八日作出批示,命令展開批給程序,但已不是上述的土地,而是一幅同樣位於北安,面積3,600平方米,稱為U4/U5地段的土地。
三、為此,申請人根據已呈交審議的事先研究,於一九九六年七月十七日表示有意就所申請的用途繼續該土地的批給程序。
四、在因都市規劃條件的訂定而出現了某些改變之後,上述的事先研究被視為可予核准,為此,前土地工務運輸司的土地管理廳制定批給合同擬本,該擬本獲申請人一般性同意。
五、在集齊資料之後,案卷送交土地委員會,該委員會表示贊同,諮詢會於一九九九年四月二十八日的會議亦同樣發出贊同意見,該意見於一九九九年四月二十九日獲前澳門總督確認。
六、根據七月五日第6/80/M號法律第一百二十五條的規定及為著有關效力,已通知申請人。申請人已遞交接納合同條件的聲明書和有關已繳付第一期溢價金澳門幣800,000.00(捌拾萬)元(收據編號56678)的土地委員會第65/99號憑單的第三副本及一九九九年十二月十六日第12828/57244號繳納物業轉移稅的收據憑單。
七、然而賦予批給合同效力的批示未被公佈,為此,申請人於二零零零年三月十四日透過向運輸工務司司長遞交申請書,請求以相同制度批出毗鄰U4及U5地段的U2地段,以便根據已一併遞交的新的事先研究,整體利用該等土地興建上述工業大廈。
八、申請人提出的理由是因為從最近數年的紀錄得知市場對產品的需求不斷增加,此外亦創造了條件,使原材料和製成品的進出口更為方便,為此擬擴建原先設計的工廠。
九、土地工務運輸局有權限部門、經濟局和澳門貿易投資促進局已同意新的土地利用事先研究。
十、案卷按一般程序送交土地委員會,該委員會於二零零零年六月二十九日舉行會議,不反對批准該申請。
十一、土地委員會的意見在運輸工務司司長於二零零零年七月十一日發出贊同意見後,已於同一日獲行政長官的批示確認。
十二、土地由U2、U4和U5地段組成,面積5,400平方米,未在物業登記局登記,但已標示在地圖繪製暨地籍局於二零零零年五月十二日發出的第4886/1994號地籍圖上。
十三、已將批給的條件通知申請人,其透過於二零零零年十二月二十二日由 Tong Seak Kan,男性,已婚,澳門出生,辦事地點為澳門燒灰爐街10及12號,Edifício Yang Ming Seaview Garden,1字樓“B”,以總經理身分簽署的聲明書明確表示接受有關條件。根據載於聲明書上的確認,已由 Frederico Rato 私人公證署鑑定上述人士的身分和權力。
十四、首期溢價金的金額改為1,300,000.00(壹佰叁拾萬)元。而用作加入第六點所指的溢價金澳門幣500,000.00(伍拾萬)元已由申請人透過二零零零年八月二十五日由土地委員會發出的第73/2000號收入憑單,於二零零零年十二月二十四日在澳門公鈔局收納處繳付(收據編號58338)。
十五、關於U2地段的物業轉移稅已於二零零零年十二月二十七日在澳門公鈔局收納處繳付,而有關的收據憑單14711/63215已存檔於該委員會的案卷內。
十六、合同第十一條款第一款所述的保證金澳門幣61,200.00(陸萬壹仟貳佰)元已透過二零零零年十一月二十八日第021/ARR/2000號憑單,利用存款遞交。
第一條款——合同標的
甲方以租賃及免除公開競投方式將一幅位於氹仔信安馬路,北安工業區名為U2、U4和U5地段,面積5,400(伍仟肆佰)平方米,未在物業登記局登記,價值為澳門幣3,967,729.00( 叁佰玖拾陸萬柒仟柒佰貳拾玖)元,已標示在地圖繪製暨地籍局於二零零零年五月十二日發出的第4886/1994號地籍圖中的土地批給乙方。上述地籍圖附於本合同。該土地以下簡稱土地。
第二條款——租賃期限
1. 租賃的有效期為25(貳拾伍)年,由賦予本合同效力的批示在《澳門特別行政區公報》公布當日起計。
2. 上款訂定的租賃期限可按適用法例連續續期至二零四九年十二月十九日。
第三條款——土地的利用及用途
土地用作興建一幢三(
)層高,總建築面積13,711平方米的工業大廈,用作設置一間由乙方直接經營,生產銅和鋁電匯排的工廠。
第四條款——租金
1. 按照三月二十一日第50/81/M號訓令,乙方繳付年租如下:
1.1. 在土地利用工程施工期間,按批出面積計,每平方米繳付租金澳門幣17.00(拾柒)元,總金額為澳門幣91,800.00(玖萬壹仟捌佰)元;
1.2.
在土地利用工程竣工後,按總建築面積計,每平方米繳付租金澳門幣8.50元(捌元伍角),總金額為澳門幣116,543.50元(壹拾壹萬陸仟伍佰肆拾
元伍角)。
2. 租金由賦予本合同效力的批示在《澳門特別行政區公報》公布當日起計,每五年調整一次,但不妨礙在合同生效期內所公佈的法例之新訂租金的即時實施。
第五條款——利用期限
1. 土地利用的總期限為24(貳拾肆)個月,由賦予本合同效力的批示在《澳門特別行政區公報》公布當日起計。
2. 為不妨礙上款規定的期限,乙方應按照下列期限遞交圖則及開始施工:
2.1. 由上款所指批示刊登當日起計60(陸拾)日內,制定及遞交工程草圖 (建築圖則);
2.2. 由通知工程草圖獲核准當日起計90(玖拾)日內,制定及遞交工程圖則(地基、結構、供水、排污、供電和特別設施圖則);
2.3. 由通知工程圖則獲核准當日起計45(肆拾伍)日內開始施工。
3. 為遵守上款所指期限的效力,圖則須完整及適當地備齊所有資料後方視為確實完成遞交。
4. 為著本條款第1款所指期限的計算效力,有權限機關審議第2款所指圖則的期限為60(陸拾)日。
5. 如有權限機關未在上款規定期限內批覆,則乙方可在書面通知土地工務運輸局30(叁拾)日後,開始圖則中的有關工程,但圖則須受《都市建築總章程》或其他適用規定所約束,並須受該章程的所有罰則約束,但涉及無准照的規定則不在此限。然而,即使未有工程草案的有關決定,乙方亦應遞交有關的工程圖則。
6. 在不妨礙遵守本條款第1款所定的期限下,於發出使用准照後,再給予六(陸)個月的期限作為由有權限實體就設置和開展該活動發出准照之用。
第六條款——特別負擔
由乙方獨力承擔的特別負擔為將土地騰空,如其上有建築物及物料者,亦將其全部移走。
第七條款——來自土地的剩餘物料
1. 未得甲方事先書面批准,乙方不得從土地上移走任何來自挖掘地基及平整土地的物料,例如泥、石、碎石和砂。
2. 不能用於土地上的物料及無其他用途的物料,只有經甲方批准後才能移走。
3. 經甲方批准移走的物料,應存放於甲方指定的地點。
4. 乙方違反本條款的規定,須受下列罰則處分,但不妨礙其繳付土地工務運輸局的鑑定人按實際移走物料所訂定的賠償:
•首次違反: 20,000.00元至50,000.00元;
•再次違反: 51,000.00元至100,000.00元;
•第三次違反: 101,000.00元至200,000.00元;
•違反四次或以上,甲方有權解除合同。
第八條款——罰款
1. 除有適當解釋且為甲方接受的特別原因外,乙方不遵守第五條款所訂有關遞交圖則、開展及完成工程和開展活動的期限,延遲不超過60(陸拾)日者,處以罰款每日可達澳門幣5,000.00(伍仟)元;延遲超過60日,但在120(壹佰貳拾)日以內者,則罰款將加至雙倍。
2. 倘遇不可抗力或其產生被證實為不受控制的其他重要情況,則免除乙方承擔上款所指的責任。
3. 僅因不可預見及不可抵抗事件而引發的情況方視為不可抗力。
4. 為產生本條款第2款規定的效力,乙方必須儘快將發生的事實以書面通知甲方。
第九條款——環境保護
1. 有關由生產所造成的一切噪音和污染,乙方須遵守澳門特別行政區有關這方面的現行法例所訂的標準,以保護環境。
2. 乙方並須遵守由十月二十二日第57/82/M號法令核准的《工業場所的工作安全與衛生總章程》的安全及衛生規則。
3. 乙方不遵守第1款的規定,將受以下處罰:
首次違反: 10,000.00元至30,000.00元;
再次違反: 31,000.00元至80,000.00元;
第三次違反: 81,000.00元至150,000.00元;
違反四次或以上,甲方有權解除合同。
4. 乙方不遵守本條款第2款的規定,將受一九八三年二月十九日第2/83/M號法律規定的適用懲罰處分。
第十條款——合同溢價金
乙方須按以下方式向甲方繳付合同溢價金澳門幣3,967,729.00(叁佰玖拾陸萬柒仟柒佰貳拾玖)元:
1. 已繳付澳門幣1,300,000.00(壹佰叁拾萬)元及甲方已向乙方發出相應的清訖證明書。
2. 餘款澳門幣2,667,729.00(貳佰陸拾陸萬柒仟柒佰貳拾玖)元,連同年利率7%的利息以半年為一期,分五期繳付,每期金額相等,即本金加利息合計為澳門幣590,851.00(伍拾玖萬零捌佰伍拾壹)元。第一期在賦予本合同效力的批示在《澳門特別行政區公報》公布起計六個月到期。
第十一條款——保證金
1. 按照七月五日第6/80/M號法律第一百二十六條的規定,乙方透過被甲方接受的存款或銀行擔保方式繳交保證金澳門幣91,800.00(玖萬壹仟捌佰)元。
2. 上款所指的保證金金額應按每年有關租金的數值調整。
第十二條款——轉讓
1. 當土地未被完全利用及在利用工程完成後十年內,將本批給所帶來的情況轉讓,須事先得到甲方許可,承讓人亦須受本合同修訂後的條件約束。
2. 為保證工程所需的融資,乙方可按照十二月二十六日第51/83/M號法令第二條的規定,將現時批出土地的租賃權向設在澳門特別行政區的信貸機構總行或分行作自願性抵押。
第十三條款——監督
在批出土地的利用期間,乙方必須准許行政當局有關部門執行監督工作的代表進入土地及施工範圍,並向代表提供協助和工具,使其有效執行任務。
第十四條款——工程及使用准照
1. 地基工程及/或建築工程准照只在乙方遞交其已按本合同第十條款的規定繳付已到期的溢價金的證明後才發出。
2. 使用准照只在遞交其已繳付第十條款規定的全部溢價金的證明後才發出。
第十五條款——失效
1. 本合同在下列情況下失效:
1.1. 第八條款所指加重罰款的期限屆滿;
1.2. 土地利用未完成時,未經同意而更改批給用途;
1.3. 土地利用中止超過90(玖拾)日,但有適當解釋且為甲方接受的特別原因則除外。
2. 合同的失效由行政長官以批示宣告,並在《澳門特別行政區公報》公布。
3. 合同的失效將導致土地連同其上的所有改善物歸甲方所有,而乙方無權要求任何賠償。
第十六條款——解除
1. 倘發生下列任一事實時,本合同可被解除:
1.1. 不準時繳付租金;
1.2. 倘土地利用完成,未經同意而更改土地利用及/或批給用途;
1.3. 違反第十二條款訂定的規定,將批給的情況轉讓;
1.4. 不履行第六條款訂定的義務;
1.5. 自第四次違反起,重複不履行第七及第九條款所訂定的義務;
1.6. 不履行第十條款訂定的義務。
2. 合同的解除由行政長官以批示宣告,並在《澳門特別行政區公報》公布。
第十七條款——有權限法院
澳門特別行政區初級法院為有權限解決由本合同所產生的任何爭議的法院。
第十八條款——適用法例
本合同如有遺漏,由七月五日第6/80/M號法律和其他適用法例規範。
|
| |||||||||||
| 相關類別 : | |||
| 《LegisMac》的法例註釋 | |||
第7/2001號運輸工務司司長批示
運輸工務司司長行使《澳門特別行政區基本法》第六十四條賦予的職權,並根據第6/1999號行政法規第六條第二款及第七條的規定,及根據第15/2000號行政命令第一條、第二條及第五條的規定,作出本批示。
本人授予民航局局長博樂克上校或其法定代位人一切所需的權力,以便代表澳門特別行政區作為簽署人,與“銀勝發展有限公司”簽訂租用國際銀行大廈二十七樓一號、二號、三號、九號及十號室作為該局設施之租賃合同。
二零零一年二月二十六日
運輸工務司司長 歐文龍





