REGIÃO ADMINISTRATIVA ESPECIAL DE MACAU
GABINETE DO SECRETÁRIO PARA OS TRANSPORTES E OBRAS PÚBLICAS
|
| |||||||||||
| Categorias relacionadas : | |||
| Notas em LegisMac | |||
Despacho do Secretário para os Transportes e Obras Públicas n.º 59/2003
Usando da faculdade conferida pelo artigo 64.º da Lei Básica da Região Administrativa Especial de Macau, e nos termos do artigo 4.º da Lei n.º 2/94/M, de 4 de Julho, o Secretário para os Transportes e Obras Públicas manda:
1. São fixados no contrato em anexo, que faz parte integrante do presente despacho, os elementos necessários à perfeição da concessão, por aforamento, do terreno com a área de 72 m2, situado na ilha da Taipa, na Rua dos Clérigos, onde se encontra implantado o prédio urbano n.º 33, descrito na Conservatória do Registo Predial sob o n.º 22 739.
2. O presente despacho entra imediatamente em vigor.
14 de Julho de 2003.
O Secretário para os Transportes e Obras Públicas, Ao Man Long.
———
ANEXO
(Processo n.º 6 337.1 da Direcção dos Serviços de Solos, Obras Públicas e Transportes e Processo n.º 16/2002 da Comissão de Terras)
Contrato acordado entre:
A Região Administrativa Especial de Macau, como primeiro outorgante; e
Fong Sun Hang, como segundo outorgante.
Considerando que:
1. Por requerimento de 1 de Junho de 2001, Fong Sun Hang, casado com Leong I Wa, no regime da separação de bens, natural de Macau, onde reside, na ilha da Taipa, Rua dos Clérigos, n.º 33, por intermédio do seu procurador Wong Kan Fat, casado, natural de Macau, onde reside, na Rua dos Clérigos, n.º 7, rés-do-chão, solicitou, nos termos do disposto no artigo 4.º da Lei n.º 2/94/M, de 4 de Julho, que fossem fixados os elementos necessários à perfeição do contrato de aforamento do terreno com a área de 72 m2, no qual se encontra construído o prédio em que reside.
2. Fundamentou o pedido no facto de ter sido declarado proprietário do domínio útil do referido prédio, por acórdão proferido pelo então Tribunal Superior de Justiça, em recurso com o n.º 218, que transitou em julgado em 23 de Novembro de 1994, juntando, para o efeito, a respectiva certidão judicial.
3. O prédio urbano em apreço, descrito na Conservatória do Registo Predial (CRP) sob o n.º 22 739, cujo domínio útil se encontra inscrito a favor do requerente sob o n.º 17 736, acha-se demarcado na planta n.º 4 174/1992, emitida em 11 de Junho de 2002, pela Direcção dos Serviços de Cartografia e Cadastro (DSCC).
4. Após a apresentação dos documentos necessários à instrução do procedimento, a Direcção dos Serviços de Solos, Obras Públicas e Transportes elaborou a minuta de contrato, cujos termos e condições foram aceites pelo requerente, conforme declaração de 11 de Setembro de 2002, subscrita pelos seus procuradores, Wong Kan Fat, acima identificado, e Wong Shen Shing, solteiro, maior, natural de Macau, onde reside na Rua de S. Lourenço, n.º 4, 3.º andar.
5. O procedimento seguiu a sua tramitação normal, tendo sido enviado à Comissão de Terras, a qual, reunida em sessão de 10 de Outubro de 2002, emitiu parecer favorável ao deferimento do pedido.
6. O parecer da Comissão de Terras foi homologado por despacho de S. Ex.ª o Chefe do Executivo, de 8 de Novembro de 2002, exarado sobre parecer favorável do Secretário para os Transportes e Obras Públicas, de 7 de Novembro de 2002.
7. Nos termos e para os efeitos previstos no artigo 125.º da Lei n.º 6/80/M, de 5 de Julho, as condições de aperfeiçoamento do contrato foram notificadas aos procuradores do requerente, anteriormente identificados, e por estes expressamente aceites, mediante declaração de 5 de Maio de 2003.
Cláusula primeira - Objecto do contrato
Constitui objecto do presente contrato o aperfeiçoamento da concessão, por aforamento, do terreno com a área de 72 m2 (setenta e dois metros quadrados), situado na ilha da Taipa, na Rua dos Clérigos, onde se encontra implantado o prédio urbano com o n.º 33, assinalado na planta n.º 4 174/92, emitida em 11 de Junho de 2002, pela DSCC, descrito na CRP sob o n.º 22 739 e inscrito a favor do segundo outorgante sob o n.º 17 736, cuja titularidade do domínio útil lhe foi reconhecida por acórdão proferido pelo então Tribunal Superior de Justiça de Macau, que transitou em julgado em 23 de Novembro de 1994.
Cláusula segunda - Aproveitamento e finalidade do terreno
O terreno destina-se a manter construído o edifício nele implantado, com dois pisos, afectado a habitação.
Cláusula terceira - Preço do domínio útil e foro
1. O preço do domínio útil do terreno é fixado em $ 5 760,00 (cinco mil, setecentas e sessenta patacas).
2. O foro anual a pagar é de $ 101,00 (cento e uma patacas).
3. O segundo outorgante fica isento do pagamento do preço do domínio útil fixado no n.º 1, ao abrigo do disposto no n.º 1 do artigo 4.º da Lei n.º 2/94/M, de 4 de Julho.
4. A falta de pagamento do foro determina a cobrança coerciva nos termos do processo de execução fiscal.
Cláusula quarta - Devolução do terreno
1. O primeiro outorgante pode declarar a devolução do terreno em caso de alteração não autorizada da finalidade da concessão ou do aproveitamento do terreno.
2. A devolução do terreno é declarada por despacho de S. Ex.ª o Chefe do Executivo, a publicar no Boletim Oficial.
3. A declaração de devolução do terreno produz os seguintes efeitos:
1) Extinção do domínio útil do terreno;
2) Reversão do terreno com as correspondentes benfeitorias nele incorporadas à posse do primeiro outorgante, tendo o segundo outorgante direito à indemnização a fixar por aquele.
Cláusula quinta - Foro competente
Para efeitos de resolução de qualquer litígio emergente do presente contrato, o foro competente é o do Tribunal Judicial de Base da Região Administrativa Especial de Macau.
Cláusula sexta - Legislação aplicável
O presente contrato rege-se, nos casos omissos, pela Lei n.º 6/80/M, de 5 de Julho, e demais legislação aplicável.
|
| |||||||||||
| Categorias relacionadas : | |||
| Notas em LegisMac | |||
Despacho do Secretário para os Transportes e Obras Públicas n.º 60/2003
Usando da faculdade conferida pelo artigo 64.º da Lei Básica da Região Administrativa Especial de Macau, e nos termos dos artigos 107.º e 129.º da Lei n.º 6/80/M, de 5 de Julho, o Secretário para os Transportes e Obras Públicas manda:
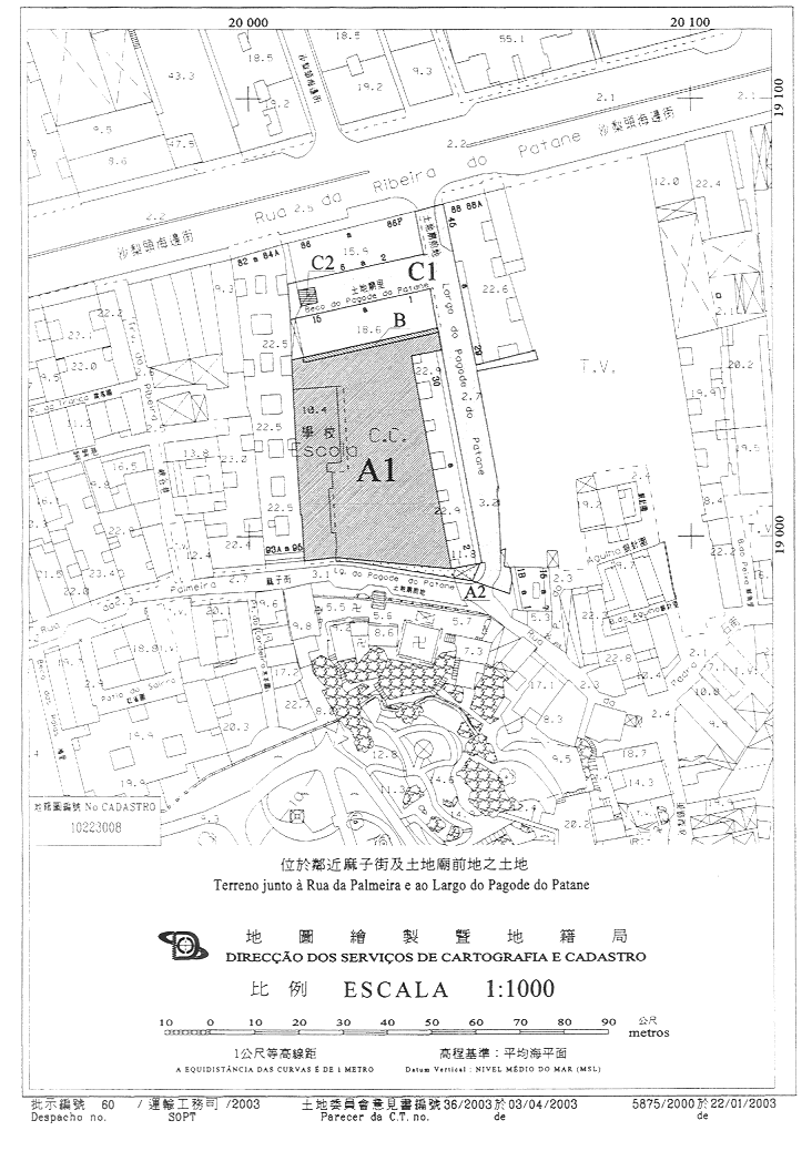
1. É revista, nos termos do contrato em anexo, que faz parte integrante do presente despacho, a concessão, por aforamento, do terreno com a área de 2 431 m2, situado na península de Macau, junto à Rua da Palmeira e ao Largo do Pagode do Patane, descrito na Conservatória do Registo Predial sob o n.º 20 123.
2. No âmbito da revisão referida no número anterior, por força dos novos alinhamentos definidos para o local, revertem, livres de quaisquer ónus ou encargos, a favor da Região Administrativa Especial de Macau, para integrar o seu domínio público, duas parcelas daquele terreno, com as áreas de 47 m2 e de 851 m2, bem como uma parcela com a área de 14 m2, destinada a integrar o seu domínio privado.
3. Em consequência do disposto nos números anteriores, o terreno concedido passa a ter a área global de 1 519 m2.
4. O presente despacho entra imediatamente em vigor.
15 de Julho de 2003.
O Secretário para os Transportes e Obras Públicas, Ao Man Long.
———
ANEXO
(Processo n.º 2 404.1 da Direcção dos Serviços de Solos, Obras Públicas e Transportes e Processo n.º 8/2003 da Comissão de Terras)
Contrato acordado entre:
A Região Administrativa Especial de Macau, como primeiro outorgante; e
A Associação de Piedade e de Beneficência Tu-Tei-Mio, como segundo outorgante.
Considerando que:
1. A Associação de Piedade e de Beneficência Tu-Tei-Mio, com sede em Macau, na Rua da Palmeira, n.º 99, registada na Direcção dos Serviços de Identificação sob o n.º 357, e a Associação de Mútuo Auxílio dos Moradores do Patane, com sede em Macau, na Rua da Palmeira n.º 21-A, registada naquela Direcção dos Serviços sob o n.º 164, são contitulares do alvará n.º 85-78/2002, emitido pela Direcção dos Serviços de Educação e Juventude, em 8 de Janeiro de 2002, referente à instituição educativa particular denominada "Escola dos Moradores do Bairro do Patane", integrada no sistema educativo de Macau, sem fins lucrativos, cujo funcionamento teve início em 1 de Julho de 1978.
2. A referida escola encontra-se instalada no edifício construído no terreno, concedido por aforamento, situado junto à Rua da Palmeira e ao Largo do Pagode do Patane, com a área rectificada de 2 431 m2, descrito na Conservatória do Registo Predial (CRP) sob o n.º 20 123, cujo domínio útil se acha inscrito a favor da Associação de Piedade e de Beneficência Tu-Tei-Mio ou Pagode "Veng Foc", sob o n.º 6 817 a fls. 165v. do livro F7, e o domínio directo a favor da Região Administrativa Especial de Macau, sob o n.º 6 816 do livro F7.
3. O terreno em causa encontra-se demarcado e assinalado pelas letras "A1", "A2", "B", "C1" e "C2" na planta n.º 5 875/2000, emitida pela Direcção dos Serviços de Cartografia e Cadastro (DSCC), em 22 de Janeiro de 2003.
4. Pretendendo construir um novo edifício escolar, compreendendo seis pisos, a concessionária submeteu à Direcção dos Serviços de Solos, Obras Públicas e Transportes (DSSOPT) o respectivo projecto de obra, o qual foi aprovado por despacho do director, substituto, daqueles Serviços, de 20 de Junho de 2002.
5. Nestas circunstâncias, por requerimento dirigido a S. Ex.ª o Chefe do Executivo, em 12 de Novembro de 2002, Au Tin Heong, casada, natural de Macau, de nacionalidade chinesa, residente nesta cidade, na Praceta do Banco Tai Fung, Hio Fung Kuok, 8.º andar "N", na qualidade de procuradora da Associação de Piedade e de Beneficência Tu-Tei-Mio, veio solicitar autorização para a revisão do contrato de concessão, nos termos do artigo 107.º da Lei n.º 6/80/M, de 5 de Julho.
6. Instruído o procedimento, a DSSOPT elaborou a minuta de contrato de revisão da concessão, que mereceu a concordância da requerente, expressa em carta de 18 de Março de 2003.
7. No âmbito da revisão, é regularizada a reversão de duas parcelas do terreno concedido, com as áreas de 47 m2 e de 851 m2, assinaladas na referida planta cadastral com as letras "A2" e "C1", respectivamente, integradas no domínio público da Região Administrativa Especial de Macau, e reverte ainda para a Região uma parcela com a área de 14 m2, assinalada com a letra "C2" na mesma planta, destinada a integrar o seu domínio privado, ficando o terreno concedido com a área de 1 519 m2.
8. Tendo em consideração a finalidade da concessão não há lugar ao pagamento de prémio.
9. O procedimento seguiu a sua tramitação normal, tendo sido enviado à Comissão de Terras, a qual, reunida em sessão de 3 de Abril de 2003, emitiu parecer favorável ao deferimento do pedido.
10. O parecer da Comissão de Terras foi homologado por despacho de S. Ex.ª o Chefe do Executivo, de 22 de Abril de 2003, exarado sobre parecer favorável do Secretário para os Transportes e Obras Públicas, da mesma data.
11. Nos termos e para os efeitos previstos no artigo 125.º da Lei n.º 6/80/M, de 5 de Julho, as condições de revisão da concessão foram notificadas à requerente, e por esta expressamente aceites, mediante declaração datada de 16 de Maio de 2003, assinada por Au Tin Heong, anteriormente identificada, na qualidade de procuradora, qualidade verificada pelo 2.º Cartório Notarial, conforme reconhecimento exarado naquela declaração.
Cláusula primeira - Objecto do contrato
1. Constitui objecto do presente contrato:
1) A revisão da concessão, por aforamento, do terreno com a área de 2 376,2562 m2 (dois mil, trezentos e setenta e seis, vírgula, dois mil, quinhentos e sessenta e dois metros quadrados), rectificada por novas medições para 2 431 m2 (dois mil, quatrocentos e trinta e um metros quadrados), situado na península de Macau, junto à Rua da Palmeira e ao Largo do Pagode do Patane, descrito na CRP sob o n.º 20 123, cujo domínio útil está inscrito a favor do segundo outorgante sob o n.º 6 817, assinalado pelas letras "A1", "A2", "B", "C1" e "C2" na planta n.º 5 875/2000, emitida pela DSCC, em 22 de Janeiro de 2003, que faz parte integrante deste contrato;
2) A reversão, livre de quaisquer ónus ou encargos, a favor do primeiro outorgante, de duas parcelas de terreno, com as áreas de 47 m2 (quarenta e sete metros quadrados) e de 851 m2 (oitocentos e cinquenta e um metros quadrados), assinaladas, respectivamente, pelas letras "A2" e "C1" na referida planta, a desanexar do terreno identificado na alínea anterior, passando a integrar o domínio público da Região Administrativa Especial de Macau, como via pública;
3) A reversão, livre de quaisquer ónus ou encargos, a favor do primeiro outorgante, da parcela de terreno com a área de 14 m2 (catorze metros quadrados), com o valor atribuído de $ 14 000,00 (catorze mil patacas), assinalada pela letra "C2" na mesma planta, a desanexar do terreno identificado na alínea 1), passando a integrar o domínio privado da Região Administrativa Especial de Macau.
2. A concessão do terreno, agora com a área de 1 519 m2 (mil quinhentos e dezanove metros quadrados), assinalado pelas letras "A1" e "B" na referida planta cadastral, de ora em diante designado, simplesmente, por terreno, passa a reger-se pelas cláusulas do presente contrato.
Cláusula segunda - Aproveitamento e finalidade do terreno
O terreno destina-se a ser aproveitado com a construção de uma escola integrada na rede escolar pública, de 6 (seis) pisos, com área bruta de construção de 5 009 m2 (cinco mil e nove metros quadrados).
Cláusula terceira - Foro
1. O foro anual a pagar é actualizado para $ 250,00 (duzentas e cinquenta patacas).
2. O não pagamento pontual do foro determina a cobrança coerciva nos termos do processo de execução fiscal.
Cláusula quarta - Prazo de aproveitamento
1. O aproveitamento do terreno deve operar-se no prazo global de 12 (doze) meses, contados a partir da publicação no Boletim Oficial do despacho que titula o presente contrato.
2. O prazo fixado no número anterior inclui os prazos necessários para a apresentação dos projectos pelo segundo outorgante e a apreciação dos mesmos pelo primeiro outorgante.
Cláusula quinta - Encargos especiais
Constituem encargos especiais, a suportar exclusivamente pelo segundo outorgante, a desocupação do terreno assinalado pela letra "A2" na planta n.º 5 875/2000, emitida pela DSCC, em 22 de Janeiro de 2003, e remoção do mesmo de todas as construções e materiais, porventura, aí existentes.
Cláusula sexta - Multas
1. Salvo motivos especiais, devidamente justificados, aceites pelo primeiro outorgante, pelo incumprimento do prazo fixado na cláusula quarta, o segundo outorgante fica sujeito a multa até $ 1 000,00 (mil patacas), por cada dia de atraso até 60 (sessenta) dias; para além desse período e até ao máximo global de 120 (cento e vinte) dias, fica sujeito a multa até ao dobro daquela importância.
2. O segundo outorgante fica exonerado da responsabilidade referida no número anterior em casos de força maior ou de outros factos relevantes, cuja produção esteja, comprovadamente, fora do seu controlo.
3. Consideram-se casos de força maior os que resultem exclusivamente de eventos imprevisíveis e irresistíveis.
4. Para efeitos do disposto no n.º 2, o segundo outorgante obriga-se a comunicar, por escrito, ao primeiro outorgante, o mais rapidamente possível, a ocorrência dos referidos factos.
Cláusula sétima - Transmissão
A transmissão de situações decorrentes desta concessão, dada a sua natureza especial, depende de prévia autorização do primeiro outorgante e sujeita o transmissário à revisão das condições do presente contrato.
Cláusula oitava - Fiscalização
Durante o período de aproveitamento do terreno concedido, o segundo outorgante obriga-se a franquear o acesso ao mesmo e às obras aos representantes dos Serviços do Governo, que aí se desloquem no desempenho da sua acção fiscalizadora, prestando-lhes toda a assistência e meios para o bom desempenho da sua função.
Cláusula nona - Devolução do terreno
1. O primeiro outorgante pode declarar a devolução, total ou parcial, do terreno em caso de alteração não autorizada da finalidade de concessão ou do aproveitamento do terreno.
2. Fica acordada, ainda, a devolução do terreno quando se verifique qualquer dos seguintes factos:
1) Findo o prazo da multa agravada, previsto na cláusula sexta;
2) Interrupção do aproveitamento do terreno e/ou da finalidade da concessão.
3. A devolução do terreno é declarada por despacho de S. Ex.ª o Chefe do Executivo, a publicar no Boletim Oficial.
4. A declaração de devolução do terreno produz os seguintes efeitos:
1) Extinção, total ou parcial, do domínio útil do terreno;
2) Reversão, total ou parcial, do terreno com as correspondentes benfeitorias nele incorporadas à posse do primeiro outorgante, tendo o segundo outorgante direito à indemnização a fixar por aquele.
Cláusula décima - Foro competente
Para efeitos de resolução de qualquer litígio emergente do presente contrato, o foro competente é o do Tribunal Judicial de Base da Região Administrativa Especial de Macau.
Cláusula décima primeira - Legislação aplicável
O presente contrato rege-se, nos casos omissos, pela Lei n.º 6/80/M, de 5 de Julho, e demais legislação aplicável.
———
Gabinete do Secretário para os Transportes e Obras Públicas, aos 15 de Julho de 2003. - O Chefe do Gabinete, Wong Chan Tong.






