澳 門 特 別 行 政 區
運輸工務司司長辦公室
|
| |||||||||||
| 相關法規 : | |||
| 相關類別 : | |||
| 《LegisMac》的法例註釋 | |||
第20/2012號運輸工務司司長批示
運輸工務司司長行使《澳門特別行政區基本法》第六十四條賦予的職權,並根據七月五日第6/80/M號法律第一百零七條的規定,作出本批示。
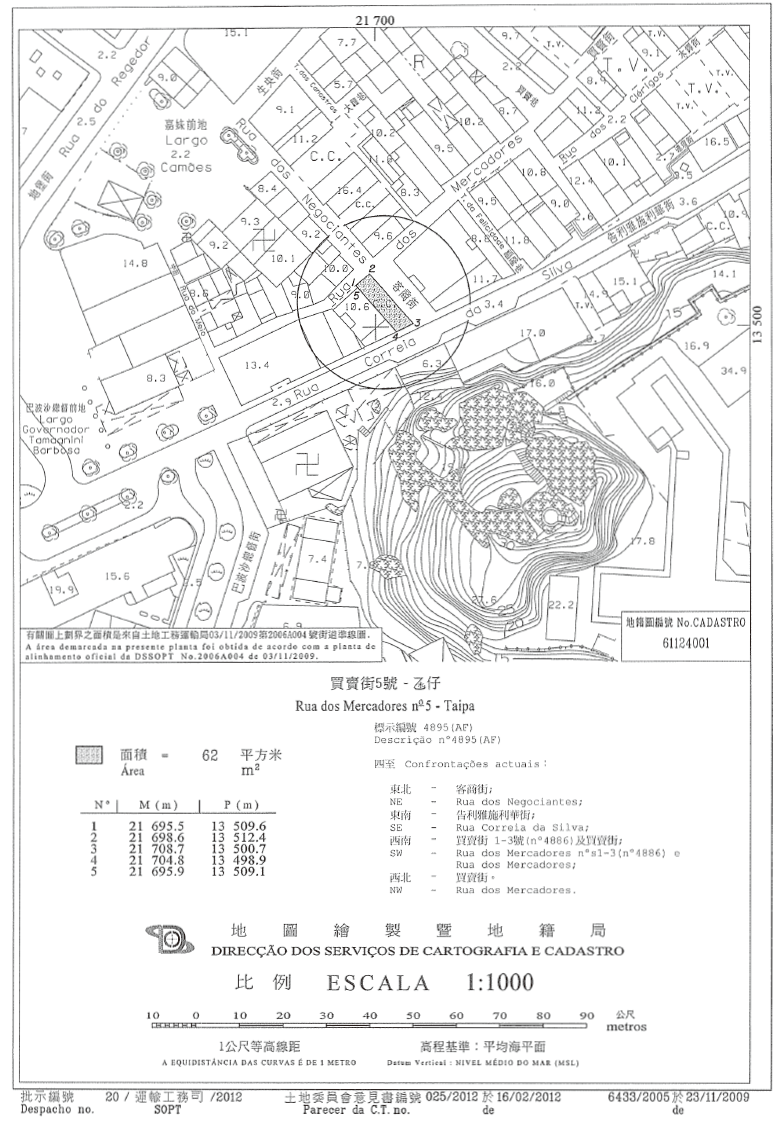
一、根據本批示組成部分的附件合同所載規定及條件,修改以長期租借制度批出,位於氹仔島,買賣街,其上建有5號樓宇,標示於物業登記局第4895號,面積取整後為62平方米的土地的批給,以興建一幢樓高四層,屬單一所有權制度,作商業用途的樓宇。
二、本批示即時生效。
二零一二年五月二十八日
運輸工務司司長 劉仕堯
———
附件
(土地工務運輸局第6485.01號案卷及土地委員會第47/2011號案卷)
合同協議方:
- 甲方——澳門特別行政區;及
- 乙方——裕星有限公司。
鑒於:
一、裕星有限公司,通訊處為澳門南灣大馬路325號,昌輝大廈1字樓“A”及“C”,在開曼羣島登記且總辦事處設於Offshore Incorporations (Cayman) Limited, Scotia Centre, 4th floor, P.O. Box 2804, George Town, Grand Cayman, KY1-1112。根據以該公司名義作出的第136434G號登錄,其持有一幅面積61.6平方米,經取整後為62平方米,位於氹仔島,買賣街,其上建有5號樓宇,標示於物業登記局B22冊第14頁背頁第4895號的土地的利用權。
二、土地的田底權以澳門特別行政區的名義登錄於FK1冊第102頁第338號。
三、上述公司擬重新利用土地興建一幢四層高,其中一層為地庫,屬單一所有權制度,作商業用途的樓宇,因此於二零一零年四月一日向土地工務運輸局提交了一份建築計劃。根據該局副局長於二零一零年七月六日作出的批示,該計劃被視為可予核准,但須遵守某些技術要件。
四、承批公司於二零一零年八月二十六日請求根據七月五日第6/80/M號法律第一百零七條的規定,批准按照已獲土地工務運輸局視為可予核准的計劃,更改土地的利用,以及修改批給合同。
五、在集齊組成案卷所需的文件,尤其是受澳門特別行政區法律約束及法院管轄並放棄其他法院管轄的聲明書後,土地工務運輸局計算了應得的回報並制訂修改批給的合同擬本。申請公司透過於二零一一年十月二十五日遞交的聲明書,表示同意該擬本。
六、合同標的土地的面積為62平方米,在地圖繪製暨地籍局於二零零九年十一月二十三日發出的第6433/2005號地籍圖中標示。
七、案卷按一般程序送交土地委員會。該委員會於二零一二年二月十六日舉行會議,同意批准有關申請。土地委員會的意見書已於二零一二年三月十二日經行政長官的批示確認。
八、根據並履行七月五日第6/80/M號法律第一百二十五條的規定,已將由本批示規範的合同條件通知承批公司。該公司透過於二零一二年四月十七日遞交由João Carlos de Jesus Afonso,葡國籍,職業住所位於澳門友誼大馬路,世界貿易中心14字樓A及B,以裕星有限公司受託人身分簽署的聲明書,明確表示接納有關條件。根據載於該聲明書上的確認,上述人士的身分及權力已經私人公證員Adelino Correia核實。
九、承批公司已繳付由本批示規範的合同第三條款和第七條款規定的利用權價金和溢價金及提供合同第八條款所述的保證金。
第一條款——合同標的
本合同標的為修改一幅以長期租借制度批出,面積為61.6(陸拾壹點陸)平方米,取整後為62(陸拾貳)平方米,位於氹仔島買賣街,其上建有5號樓宇,在地圖繪製暨地籍局於二零零九年十一月二十三日發出的第6433/2005號地籍圖中定界,並標示於物業登記局B22冊第14頁背頁第4895號,及其利用權以乙方的名義登錄於第136434G號的土地的批給。該土地以下簡稱土地,其批給轉由本合同的條款約束。
第二條款——土地的利用及用途
1. 土地用作興建一幢屬單一所有權制度,樓高4(肆)層,其中1(壹)層為地庫,建築面積為210(貳佰壹拾)平方米,作商業用途的樓宇。
2. 上款所述面積在為發出有關使用准照而作實地檢查時,可作修改。
第三條款——利用權價金及地租
1. 土地的利用權價金總額為$31,500.00(澳門幣叁萬壹仟伍佰元整)。
2. 上款訂定的利用權價金於乙方按照七月五日第6/80/M號法律第一百二十五條的規定接受本合同條件時一次性全數繳付。
3. 每年繳付的地租為$101.00(澳門幣壹佰零壹元整)。
4. 不準時繳付地租,將按照稅務執行程序的規定進行強制徵收。
第四條款——利用期限
1. 土地的總利用期限為30(叁拾)個月,由規範本合同的批示在《澳門特別行政區公報》公佈之日起計。
2. 上款訂定的期限包括乙方遞交工程計劃、甲方審議該計劃及發出相關准照所需的時間。
3. 就遞交工程計劃及開始施工,乙方應依照下列期限:
- 1)由第一款所指的批示公佈日起計30(叁拾)日內,制定和遞交工程計劃(地基、結構、供水、排水、供電等專業計劃);
- 2)由核准工程計劃的通知日起計60(陸拾)日內,遞交發出工程准照的申請書;
- 3)由發出工程准照日起計15(拾伍)日內,開始施工。
4. 為遵守上款所指期限的效力,計劃的組成須完整及適當備齊所有資料,方視為確實完成遞交。
第五條款——特別負擔
由乙方獨力承擔的特別負擔為騰空在地圖繪製暨地籍局於二零零九年十一月二十三日發出的第6433/2005號地籍圖中定界的土地,並移走其上倘有的全部建築物、物料及基礎設施。
第六條款——罰款
1. 除有合理解釋且為甲方接受的特殊原因外,乙方不遵守第四條款所訂的任一期限,延遲不超過60(陸拾)日者,處以罰款每日可達$1,000.00(澳門幣壹仟元整);延遲超過60(陸拾)日,但在120(壹佰貳拾)日以內者,罰款將加至雙倍。
2. 遇有不可抗力或發生被證實為非乙方所能控制的特殊情況,則免除乙方承擔上款所指的責任。
3. 僅因不可預見及不可抵抗事件而引發的情況,方視為不可抗力。
4. 為著第2款規定的效力,乙方必須儘快將發生上述事實的情況以書面通知甲方。
第七條款——合同溢價金
當乙方按照七月五日第6/80/M號法律第一百二十五條的規定接受本合同條件時,須向甲方全數一次性繳付合同溢價金$506,417.00(澳門幣伍拾萬陸仟肆佰壹拾柒元整)。
第八條款——轉讓
1. 當土地未被完全利用而將本批給所衍生的狀況轉讓,須事先獲得甲方核准,承讓人亦須受本合同修改後的條件約束,尤其有關溢價金方面。
2. 在不妨礙上款最後部分規定的情況下,乙方須以存款、其條款獲甲方接受的擔保或保險擔保繳付保證金$50,000.00(澳門幣伍萬元整),作為擔保履行已設定之義務。該保證金可應乙方要求,在發出使用准照或核准轉讓批給所衍生的權利時退還。
第九條款——監督
在批出土地的利用期間,乙方必須准許行政當局有關部門執行監督工作的代表進入土地及施工範圍,並向代表提供一切所需的協助,使其有效地執行任務。
第十條款——土地的收回
1. 倘未經批准而更改批給用途或土地的利用,甲方可宣告全部或局部收回土地。
2. 當發生下列任一事實時,土地亦會被收回:
- 1)第六條款規定的加重罰款期限屆滿;
- 2)未經同意而中斷土地的利用。
3. 土地的收回由行政長官以批示宣告,並在《澳門特別行政區公報》公佈。
4. 土地收回的宣告將產生以下效力:
- 1)土地的利用權全部或局部被撤銷;
- 2)土地全部或局部,連同其上的所有改善物歸甲方所有,乙方有權收取由甲方訂定的賠償。
第十一條款——有權限法院
澳門特別行政區法院為有權解決由本合同所產生任何爭訟的法院。
第十二條款——適用法例
如有遺漏,本合同以七月五日第6/80/M號法律和其他適用法例規範。
|
| |||||||||||
| 相關法規 : | |||
| 相關類別 : | |||
| 《LegisMac》的法例註釋 | |||
第21/2012號運輸工務司司長批示
運輸工務司司長行使《澳門特別行政區基本法》第六十四條賦予的職權,並根據七月五日第6/80/M號法律第一百零七條的規定,作出本批示。
一、根據本批示組成部分的附件合同所載規定及條件,部分修改一幅以租賃制度批出,面積1,300平方米,位於澳門半島,鄰近東北大馬路,稱為D1地段,標示於物業登記局第23198號的土地的批給,用作興建一幢樓高三層作為汽車服務中心的建築物。
二、本批示即時生效。
二零一二年五月二十八日
運輸工務司司長 劉仕堯
———
附件
(土地工務運輸局第2456.02號案卷及土地委員會第53/2011號案卷)
合同協議方:
- 甲方——澳門特別行政區;及
- 乙方——大通(澳門)有限公司。
鑒於:
一、大通(澳門)有限公司,總址設於澳門提督馬路72A號地下,註冊於商業及動產登記局第18150(SO)號,根據以其名義作出的第31664G號登錄,其持有一幅以租賃制度批出,面積1,300平方米,位於澳門半島,鄰近東北大馬路,稱為D1地段,標示於物業登記局B冊第23198號的土地的批給所衍生的權利。
二、上述批給由以公佈於二零零六年五月二十四日第二十一期《澳門特別行政區公報》第二組的第85/2006號運輸工務司司長批示作為憑證的合同規範。
三、根據有關合同第三條款及第四條款的規定,該土地用作興建一幢樓高四層,其中一層為地庫,作汽車零件維修服務的建築物,總利用期限為36個月,即直至二零零九年五月二十三日為止。
四、於二零零七年五月二十一日,承批公司向行政長官遞交一份申請書,請求批准更改土地的利用,以興建一幢樓高三十六層的MA級住宅樓宇,並同時附上相關的初研方案。
五、承批公司於二零零八年八月十八日要求取消該申請,並同時遞交一份修改建築計劃,由合同原規定興建一幢樓高四層而改為樓高三層作為汽車服務中心的建築物。
六、由於承批公司於二零一零年五月十四日遞交的修改建築計劃被視為可予核准,但須遵守某些技術要件,因此承批公司於二零一零年十二月十七日根據七月五日第6/80/M號法律第一百零七條的規定申請更改該土地的利用及修改批給合同。
七、在集齊組成案卷所需的文件後,土地工務運輸局計算了應得的回報並制定修改批給的合同擬本。該擬本已獲申請公司於二零一一年十月二十六日遞交的聲明書明確表示同意。
八、有關土地的面積為1,300平方米,在地圖繪製暨地籍局於二零一零年十二月九日發出的第6158/2003號地籍圖中以字母“A1”和“A2”定界及標示,面積分別為1,236平方米和64平方米。
九、以字母“A2”標示的地塊的拱廊下的地面層設為公共地役,將作為通道,稱為拱廊下的行人區,其柱子之間必須留空,用作供人貨自由通行,同時不能設置任何限制及不得作任何形式的佔用。
十、而上款所述的地塊由地面至1.5米深處設定公共地役,以便在該處安裝供水、供電和通訊的基礎設施,但被拱廊支柱地基佔用的地下空間除外。
十一、案卷按一般程序送交土地委員會。該委員會於二零一二年二月二十三日舉行會議,同意批准有關申請,以及由於承批公司因己意不斷修改有關計劃而延遲利用土地,故屬可歸責而對其科處罰款。有關意見書已於二零一二年三月二十六日經行政長官的批示確認。
十二、根據並履行七月五日第6/80/M號法律第一百二十五條的規定,已將由本批示規範的合同條件通知承批公司。該公司透過於二零一二年四月十三日遞交由鄺達財和關顯明,兩人均中國籍,前者居於澳門加思欄馬路8至10號嘉安閣10字樓,而後者的通訊處位於澳門友誼大馬路61號19字樓C,以大通(澳門)有限公司行政管理機關成員身分代表該公司簽署的聲明書,明確表示接納有關條件。根據載於該聲明書上的確認,其身分及權力已經第一公證署核實。
十三、考慮到修改後的建築計劃的總建築面積少於由第85/2006號運輸工務司司長批示規範的批給合同所指的建築面積,故無須繳交附加溢價金。
第一條——合同標的
1. 透過本合同,甲方批准按照經土地工務運輸局核准的修改建築計劃,修改一幅以租賃制度批出,位於澳門半島,鄰近東北大馬路,稱為“D1”地段,面積1,300(壹仟 叁佰)平方米,由公佈於二零零六年五月二十四日第二十一期《澳門特別行政區公報》第二組的第85/2006號運輸工務司司長批示規範,標示於物業登記局第23198號及該批給所衍生的權利以乙方名義登錄於第31664F號,並以字母“A1”及“A2”標示在地圖繪製暨地籍局於二零一零年十二月九日發出的第6158/2003號地籍圖中的土地批給合同。
2. 鑒於上款所述,由公佈於二零零六年五月二十四日第二十一期《澳門特別行政區公報》第二組的第85/2006號運輸工務司司長批示規範的合同第三條款、第六條款和第七條款修改如下:
“第三條款——土地的利用及用途
1. 土地用作興建一幢3(叁)層高,屬單一所有權制度的建築物,用作汽車服務中心,並由乙方直接經營,其建築面積分配如下:
| 1)商業 | 601平方米; |
| 2)辦公室 | 858平方米; |
| 3)工業 | 1,127平方米; |
| 4)停車場 | 1,279平方米。 |
2. 上款所述面積在為發出有關使用准照而作實地檢查時可作修改。
3. 土地的利用應遵守由土地工務運輸局二零一零年三月十九日核准的第2003A028號正式街道準線圖所訂定的條件。
4. 在地圖繪製暨地籍局於二零一零年十二月九日發出的第6158/2003號地籍圖中以字母“A2”標示,面積64(陸拾肆)平方米的地塊的拱廊下的地面層設為公共地役,將作為通道,稱為拱廊下的行人區,其柱子之間必須留空,用作供人貨自由通行,同時不能設置任何限制及不得作任何形式的臨時或永久性佔用。
5. 在上款所述的地塊由地面至1.5米深處設定公共地役,以便在該處安裝供水、供電和通訊的基礎設施,但被拱廊支柱地基佔用的地下空間除外,而乙方須永遠保持該空間完全不受阻礙。
6. 乙方或繼後的土地批給衍生權利的持有人必須遵守及承認按照第4款和第5款設定的責任,將相關空間留空。
7. 乙方或繼後的土地批給衍生權利的持有人必須同意民政總署及其他公共服務的基礎設施之經營實體進行維修、修理及改造工作。
第六條款——特別負擔
1. 由乙方獨力承擔的特別負擔為:
1)騰空在地圖繪製暨地籍局於二零一零年十二月九日發出的第6158/2003號地籍圖中以字母“A1”、“A2”及“B”標示的地塊,並移走其上所有的建築物及物料,包括可能將基建網絡改道;
2)根據二零一零年三月十九日核准的第2003A028號正式街道準線圖的規定,在上項所述地籍圖中以字母“B”標示的地塊建造城市基礎設施(車道及人行道)工程。
2. 乙方必須編製上款所述的工程計劃,並呈交甲方核准。
3. 對第1款2)項所述的建造工程,乙方保證優質施工和使用質量良好的材料,同時負責維修及更正所有在該等工程自臨時接收當日起計兩年內可能出現的瑕疵。
第七條款——租金
1. ......
1)......
2)在土地利用完成後,繳付建築面積每平方米$8.50(澳門幣捌元伍角)的年租,總金額為$32,853.00(澳門幣叁萬貳仟捌佰伍拾叁元整)。
2. ......”
第二條——利用及開始運作期限
1. 土地的總利用期限為36(叁拾陸)個月,由規範本合同的批示在《澳門特別行政區公報》公佈之日起計。
2. 上款訂定的期限包括乙方遞交工程計劃、甲方審議該計劃及發出相關准照的時間。
3. 乙方應依照下列期限遞交工程計劃及開始施工:
- 1)由第1款所指的批示公佈之日起計60(陸拾)日內,編制和遞交工程計劃(地基、結構、供水、排水、供電及其他專業計劃);
- 2)由通知工程計劃獲核准之日起計30(叁拾)日內,遞交發出工程准照的申請書;
- 3)由發出工程准照之日起計15(拾伍)日內,開始施工。
4. 為遵守上款所指期限,計劃須完整及適當備齊所有資料後,方視為確實完成遞交。
5. 汽車服務中心的開始運作期限為12(拾貳)個月,由有關使用准照發出之日起計。
第三條——罰款
1. 除有合理解釋且為甲方接受的特殊原因外,乙方不遵守本合同第二條訂定的任一期限,延遲不超過60(陸拾)日者,處以罰款每日可達$4,000(澳門幣肆仟元整);延遲超過60(陸拾)日,但在120(壹佰貳拾)日以內者,則罰款將加至雙倍。
2. 遇有不可抗力或發生被證實為不受控制的其他特殊情況,則免除乙方承擔上款所指的責任。
3. 僅因不可預見及不可抵抗事件而引發的情況,方視為不可抗力。
4. 為產生第二款規定的效力,乙方必須儘快將發生上述事實的情況以書面通知甲方。
第四條——批給失效
1. 本批給在下列情況失效:
1)上條第1款規定的加重罰款期限屆滿;
2)當土地利用未完成,未經同意而更改批給用途;
3)土地利用中止超過90(玖拾)日,但有合理適當解釋且為甲方接受的特殊原因除外。
2. 批給的失效由行政長官批示宣告,並在《澳門特別行政區公報》公佈。
3. 批給的失效導致土地連同其上的一切改善物歸甲方所有,乙方無權要求任何賠償。
第五條——有權限法院
澳門特別行政區法院為有權解決由本合同所產生任何爭訟的法院。
第六條——適用法例
如有遺漏,本合同以七月五日第6/80/M號法律和其他法例規範。
———
二零一二年五月三十一日於運輸工務司司長辦公室
辦公室主任 黃振東





