REGIÃO ADMINISTRATIVA ESPECIAL DE MACAU
|
| |||||||||||
| Diplomas revogados : | |||
| Diplomas relacionados : | |||
| Categorias relacionadas : | |||
| Notas em LegisMac | |||
REGIÃO ADMINISTRATIVA ESPECIAL DE MACAU
Regulamento Administrativo n.º 27/2021
Normas técnicas das instalações de gases combustíveis em edifícios
O Chefe do Executivo, depois de ouvido o Conselho Executivo, decreta, nos termos da alínea 5) do artigo 50.º da Lei Básica da Região Administrativa Especial de Macau, para valer como regulamento administrativo independente, o seguinte:
CAPÍTULO I
Disposições gerais
Artigo 1.º
Objecto e âmbito de aplicação
1. O presente regulamento administrativo define as condições técnicas a que obedecem o projecto, a construção, a conversão, a exploração, a manutenção, a ampliação e a reconversão das instalações de gases combustíveis em edifícios residenciais e não residenciais, e respectivos anexos.
2. Nos edifícios residenciais e respectivos anexos, a potência máxima unitária dos aparelhos a gás, instalada por cada derivação de instalação de cada consumidor é de 70 kW, aplicando-se às fracções deste tipo de edifícios que estiverem destinadas a fins não residenciais o disposto no número seguinte, sem prejuízo do disposto no n.º 4 e no n.º 5 do artigo 52.º.
3. Nos edifícios não residenciais e respectivos anexos, as potências máximas, unitária ou global, dos aparelhos a gás, instaladas por consumidor ou por derivação de instalação são de 70 kW, sem prejuízo do disposto no número seguinte e no n.º 5 do artigo 52.º.
4. Quando as potências máximas, unitária ou global, dos aparelhos a gás instalados nos edifícios ultrapassem as indicadas nos dois números anteriores, observa-se, para além do disposto no presente regulamento administrativo, o disposto no Regulamento Administrativo n.º 26/2002 (Regulamento de Segurança Relativo à Instalação de Aparelhos a Gás com Potências Elevadas).
5. No caso dos troços das instalações de gases combustíveis a implantar em logradouros a montante do dispositivo de corte geral ao edifício, observa-se o disposto no Regulamento Administrativo n.º 11/2017 (Aprova o Regulamento técnico das redes de distribuição de gases combustíveis em baixa pressão).
6. Os técnicos, empresários comerciais, pessoas singulares ou sociedades comerciais responsáveis pela elaboração do projecto de especialidade relativo às instalações de gases combustíveis e pela direcção, fiscalização ou execução de obras, observam ainda outras legislações aplicáveis, designadamente a legislação relacionada com a construção urbana e com a segurança contra incêndios, assumindo também as responsabilidades decorrentes da violação das leis relevantes.
Artigo 2.º
Definições
1. Para efeitos do presente regulamento administrativo, entende-se por:
1) «Acessibilidade de grau 1», o acesso a um dispositivo dispensa escadas ou meios mecânicos especiais;
2) «Acessibilidade de grau 2», o acesso a um dispositivo dispensa escadas, mas não meios mecânicos especiais;
3) «Acessibilidade de grau 3», o acesso a um dispositivo obriga à utilização de escadas e meios mecânicos especiais;
4) «Acessório misto», dispositivo destinado a reunir dois troços de tubagem de diferentes materiais;
5) «Alimentação em baixa pressão de 1.ª classe», alimentação de instalações de gases combustíveis a uma pressão de serviço superior a 1,5 bar mas inferior a 4 bar;
6) «Alimentação em baixa pressão de 2.ª classe», alimentação de instalações de gases combustíveis a uma pressão de serviço superior a 70 mb mas não superior a 1,5 bar;
7) «Alimentação em baixa pressão de 3.ª classe», alimentação de instalações de gases combustíveis a uma pressão de serviço não superior a 70 mb;
8) «Alvéolo técnico de gás», local existente num edifício, com acessibilidade de grau 1, destinado a poder alojar contadores de gás, redutores de pressão com dispositivo de segurança incorporado ou dispositivos de corte, entre outros, incluindo as tubagens correspondentes;
9) «Anexo», dependência de um edifício, destinada a funções complementares do mesmo;
10) «Aparelho a gás», aparelho que utiliza gás como combustível, podendo ser do tipo termodoméstico ou termoindustrial, para confecção de alimentos, produção de água quente, para aquecimento ou para outros fins;
11) «Aparelho a gás de ar insuflado», aparelho a gás no qual o ar primário de combustão é fornecido por uma fonte de ar comprimido ou por um ventilador incorporado no próprio aparelho;
12) «Bainha», também designada por «Manga», espaço específico normalmente feito de metal que serve como envoltório contínuo da tubagem de gás e destinado a assegurar o seu isolamento térmico, eléctrico ou químico, a sua protecção contra agressões mecânicas e a drenagem de eventuais fugas;
13) «Bloco inversor», dispositivo semiautomático de selecção de baterias de garrafas de gás que assegura a entrada automática em serviço das garrafas de reserva quando as de serviço estão vazias e permite, por actuação manual, inverter o sistema automático;
14) «Soldadura eléctrica», técnica de ligação na qual a união do metal de base é obtida por um efeito eléctrico e pode ser usado um metal de adição;
15) «Soldobrasagem», técnica de ligação que consiste na fusão do metal de adição durante as operações de soldadura, sem fusão do metal de base;
16) «Brasagem forte», processo de ligação sem fusão do metal de base, executado com metal de adição cuja temperatura de fusão é de, pelo menos, 450º C;
17) «Brasagem fraca», processo de ligação sem fusão do metal de base, executado com metal de adição cuja temperatura de fusão é superior a 100º C mas inferior a 450º C;
18) «Bujão», peça que se destina a assegurar a estanquidade de um orifício;
19) «Caixa de tubagens», espaço exclusivo, normalmente de betão ou alvenaria, destinado a proteger os componentes mecânicos das tubagens;
20) «Caixa de visita», estrutura em formato de caixa com abertura para visita, destinada a ocultar dispositivos de corte de tubagens, acessórios ou uniões de tubagens e a permitir a respectiva inspecção e reparação;
21) «Caleira», espaço confinado, mas com acessibilidade de grau 3, normalmente exclusivo, podendo alojar uma ou mais condutas de gás e conter alguns acessórios e equipamentos, destinado a evitar a interferência mecânica e a drenar eventuais fugas de gás;
22) «Cave», dependência situada abaixo do nível do solo com uma altura superior a metade da altura do piso;
23) «Coluna montante», conjunto, usualmente vertical, de tubagens e acessórios, ligado ao ramal ou conduta do edifício, instalado nas partes comuns do mesmo, que garante o abastecimento de gás aos diferentes pisos do edifício através da ligação ao ramal;
24) «Conduta do edifício», conjunto de tubagens e acessórios que interliga o dispositivo de corte geral ao edifício às colunas montantes;
25) «Contador de gás», dispositivo destinado a medir o volume de gás que o atravessa;
26) «Conversão», operação que consiste em dotar com instalações de gás os edifícios já existentes;
27) «Coquilha», elemento semicilíndrico, associado dois a dois, destinado a assegurar a protecção de uma tubagem;
28) «Derivação de fogo», conjunto de tubagens e acessórios que interliga a derivação de piso ou a própria coluna montante aos aparelhos a gás do consumidor;
29) «Derivação de piso», conjunto de tubagens e acessórios, em geral com desenvolvimento horizontal, que interliga as derivações de fogo à coluna montante no mesmo piso do edifício, alimentando as derivações de fogo com o gás da coluna montante;
30) «Dispositivo de corte», também designado por «Válvula de corte», acessório da instalação que permite interromper o fluxo de gás numa tubagem, incluindo em particular mas não exclusivamente a válvula solenóide, o dispositivo de corte rápido com encravamento ou o dispositivo de corte do ramal;
31) «Dispositivo de corte de um quarto de volta», acessório da instalação que permite interromper o fluxo de gás numa tubagem com um quarto de volta do manípulo;
32) «Dispositivo de evacuação de condensados», acessório da instalação que faz a recolha e a evacuação dos condensados;
33) «Edifício residencial», edifício destinado à habitação, designadamente edifício habitacional, habitação social, habitação económica, habitação para alojamento temporário ou centros de habitação temporária;
34) «Edifício não residencial», local destinado ao exercício de actividades profissionais, comerciais, públicas, industriais ou para finalidade não habitacional, designadamente hotéis, hospitais, centros comunitários, escolas, clínicas, serviços administrativos, escritórios, lojas, oficinas, cinemas, aeroportos, terminais marítimos, túneis ou auto-silos;
35) «Edifício de grande altura», edifício classificado na classe «A» ou «MA» em conformidade com a legislação relacionada com a segurança contra incêndios;
36) «Esquentador a gás com chaminé», esquentador a gás com um sistema de chaminé, normalmente dividido em tipo ventilado e tipo atmosférico, sendo o ar da combustão captado do compartimento ou do espaço interior onde o esquentador se encontra, quando este estiver a funcionar;
37) «Esquentador a gás estanque», esquentador a gás com sistema de chaminé, normalmente dividido em tipo ventilado e tipo atmosférico, cujas entrada do ar da combustão e saída dos gases de exaustão são isoladas do espaço onde o esquentador se encontra sendo estas entrada e saída à vista na parede exterior;
38) «Fogo», fracção autónoma, normalmente unifamiliar;
39) «Fontes de ignição», objecto ou aparelho que possa ser sede de chamas, faíscas ou fagulhas, pontos quentes ou outras fontes susceptíveis de provocarem a inflamação de misturas de ar com vapores provenientes de combustíveis;
40) «Gás húmido», gás natural que por metro cúbico contenha mais de 10 ml de pentano e outros hidrocarbonetos mais pesados, calculados no estado líquido, o qual, na presença de frio, forma condensados que se depositam nos pontos baixos das tubagens;
41) «Instalação de gás», sistema instalado num edifício, constituído pelo conjunto de tubagens, acessórios, equipamentos e aparelhos de medida, que assegura a distribuição de gás desde o dispositivo de corte geral ao edifício, inclusive, até cada aparelho a gás, inclusive;
42) «Junta» ou «união», sistema de acoplamento entre dois componentes de uma instalação de gás;
43) «Junta flangeada», junta na qual a estanquidade do circuito de gás é conseguida por compressão de elementos de vedação entre as faces de duas flanges;
44) «Junta isolante», junta destinada a interromper a continuidade eléctrica da instalação de gás, sem afectar a passagem normal do gás;
45) «Junta mecânica», junta na qual a união é conseguida por rosca sem estanquidade nos filetes e a estanquidade do circuito de gás por compressão mecânica, com ou sem meios auxiliares de estanquidade;
46) «Junta roscada», junta na qual a estanquidade do circuito de gás é conseguida por contacto de metal contra metal na rosca, com ou sem meios auxiliares de estanquidade;
47) «Junta soldada», junta na qual a estanquidade do circuito de gás é conseguida por meio de soldadura, brasagem ou soldobrasagem, assegurando a união e a estanquidade;
48) «Limitador de pressão», dispositivo, situado a jusante de um andar de redução de pressão, destinado a evitar que, à sua saída, a pressão exceda um valor prefixado;
49) «Logradouro», espaço ao ar livre pertencente a um terreno urbano e destinado a ligar edifícios;
50) «Metal de adição», liga ou metal que, depois de aquecido e fundido, permite a ligação de dois ou mais componentes;
51) «Partes comuns das instalações de gás em edifícios», conjunto dos componentes da instalação de gás num edifício, desde o dispositivo de corte geral até à entrada de cada fracção do consumidor, com excepção do contador de gás;
52) «Reconversão», operação de adaptação de instalações de gás já existentes por utilização de outro combustível;
53) «Redutor de pressão», também designado por «Regulador de pressão», dispositivo que permite reduzir a pressão de entrada do gás, regulando-a para uma pressão a jusante prefixada, e que assegura que a pressão pode manter-se estável;
54) «Redutor de segurança», redutor de pressão com dispositivo de segurança incorporado que, automaticamente, provoca a interrupção do fluxo de gás sempre que se verifique que a pressão a montante é inferior ou excede uma certa percentagem do valor nominal, ou que a pressão a jusante não atinge ou excede valores prefixados;
55) «Roço», abertura côncava na parede ou no pavimento, geralmente destinada a ocultar tubagens;
56) «Saguão», espaço confinado e descoberto situado no interior de um edifício;
57) «Tubagem à vista», tubagem visível fixada a uma parede ou tecto por elementos de suporte;
58) «Tubagem embebida», tubagem inserida no interior de uma parede, pavimento ou tecto de um edifício.
2. Para efeitos do disposto no presente regulamento administrativo, as definições de «Classe de resistência ao fogo» e de «Edificação» são iguais às previstas na legislação relacionada com a segurança contra incêndios e com a construção urbana, respectivamente.
Artigo 3.º
Limites das instalações de gás
As instalações de gás nos edifícios são limitadas:
1) A montante, desde o dispositivo de corte geral ao edifício, inclusive, até ao dispositivo de corte precedido pelo contador de gás do consumidor;
2) A jusante, desde o dispositivo de corte precedido pelo contador de gás do consumidor, inclusive, até ao dispositivo de corte do aparelho a gás.
Artigo 4.º
Elementos que constituem uma instalação de gás
As instalações de gás nos edifícios podem ser constituídas pelos seguintes elementos:
1) Dispositivo de corte geral ao edifício;
2) Redutor de 2.ª classe, no caso da pressão de distribuição na via pública ser superior a 1,5 bar;
3) Limitador de pressão;
4) Redutor de pressão;
5) Coluna montante;
6) Derivação de piso no caso de edifícios com mais de um fogo por piso, e derivação de fogo;
7) Dispositivo de evacuação de condensados se o gás utilizado for um gás húmido;
8) Redutores de segurança;
9) Dispositivos de corte, automáticos ou manuais;
10) Contadores de gás;
11) Blocos inversores.
Artigo 5.º
Projecto das instalações de gás
1. Os projectos de instalação de redes de combustíveis são elaborados e subscritos por técnicos, empresários comerciais, pessoas singulares ou sociedades comerciais inscritos na Direcção dos Serviços de Solos, Obras Públicas e Transportes, doravante designada por DSSOPT e que possuam qualificações adequadas nos termos da Lei n.º 1/2015 (Regime de qualificações nos domínios da construção urbana e do urbanismo).
2. Quando nas instalações de gás se utilizar um gás mais denso do que o ar, designadamente o gás de petróleo liquefeito, doravante designado por GPL, na elaboração do projecto os cálculos são efectuados tendo em conta o poder calorífico e a densidade do gás natural, entre outras características, existindo ainda uma vala para a ligação da tubagem de gás às redes de distribuição, salvo se se tratar de edifícios já existentes.
3. As tubagens de gás, implantadas em paredes exteriores de edifícios de interesse arquitectónico ou de bens imóveis classificados situados em zonas de protecção, observam o disposto na Lei n.º 11/2013 (Lei de Salvaguarda do Património Cultural).
Artigo 6.º
Limitação das pressões de serviço
1. As pressões referidas no presente regulamento administrativo, sem qualquer outra indicação, são pressões relativas.
2. As pressões de serviço máximas admissíveis nos diversos troços das instalações de gás são as seguintes:
1) Entre o dispositivo de corte geral ao edifício e os redutores de segurança dos contadores de gás dos consumidores ou, no caso de existência de redutores de 2.ª classe no edifício, entre estes e os redutores de segurança dos contadores de gás dos consumidores: 1,5 bar;
2) Entre os redutores de segurança dos contadores de gás dos consumidores e os aparelhos a gás ou, no caso de instalações de gás alimentadas em baixa pressão de 3.ª classe, entre o dispositivo de corte geral ao edifício e os aparelhos a gás: 70 mb;
3) Quando as potências dos aparelhos a gás forem, por aparelho, superiores a 70 kW, a pressão de serviço máxima a jusante dos redutores de segurança dos contadores de gás dos consumidores é a exigida pelas instruções de funcionamento dos aparelhos a gás;
4) As tubagens inseridas nas partes comuns dos edifícios, entre os tectos falsos e os tectos, obedecem aos requisitos estabelecidos no n.º 7 do artigo 17.º, não podendo a sua pressão de serviço máxima exceder 0,4 bar.
3. Sempre que a instalação de gás do edifício funcione a uma pressão de serviço superior a 0,4 bar, a instalação é protegida com um limitador de pressão, calibrado para um valor de, pelo menos, 1,8 bar, o qual é instalado imediatamente a jusante do dispositivo de corte geral ao edifício.
4. O limitador de pressão referido no número anterior pode ser dispensado nos casos em que a pressão de serviço na rede de distribuição seja inferior a 1,8 bar e esta já esteja protegida por um limitador de pressão.
5. Nas instalações de gás alimentadas a baixa pressão de 3.ª classe é considerado o efeito de altura do edifício na pressão de alimentação dos aparelhos a gás.
CAPÍTULO II
Tubagens e acessórios
Artigo 7.º
Materiais
1. Todos os componentes são fabricados com materiais que reúnam condições de funcionamento e segurança adequadas ao fim a que se destinam e obedeçam aos requisitos das normas técnicas aplicáveis.
2. Os tubos são transportados e armazenados de modo a impedir a entrada neles de matérias estranhas e são protegidos da corrosão atmosférica.
3. Os componentes a utilizar nas instalações de gás são acompanhados de um certificado de qualidade e obedecem aos requisitos das normas técnicas aplicáveis.
Artigo 8.º
Tubos de aço
1. Os tubos de aço obedecem a qualquer uma das normas seguintes:
1) X42 na API SPEC 5L ou de nível superior;
2) L290 na ISO 3183 ou de nível superior;
3) L290 ou X42 na GB/T 9711 ou de nível superior;
4) Outros requisitos de normas tecnicamente equivalentes.
2. É interdito o uso de tubos com costura em instalações de gás.
3. Para mudar a direcção dos tubos de aço, só podem ser usados acessórios de tubagens produzidos em fábrica, bem como só pode ser usado o método de soldadura ou o método das ligações roscadas previstos no presente regulamento administrativo.
4. Sem prejuízo do disposto no número seguinte, nos tubos de aço galvanizado as uniões são executadas por soldadura por arco eléctrico; antes da soldadura, é eliminado o banho de zinco nos extremos a unir, se este não for eliminado é usada a soldadura oxiacetilénica, empregando um conjunto de metal de adição e desoxidante que impeça a destruição da capa protectora galvanizada.
5. Quando se usem tubos de aço com ou sem galvanização, o uso de ligações por juntas roscadas ou flanges é reduzido ao mínimo; caso seja necessário usá-las, limitam-se aos troços de tubagem que precisem de ser desmontados, aos troços cujo traçado seja severamente restritivo ou aos troços cujas operações de soldadura não possam ser correctamente executadas no local.
6. As ligações roscadas com estanquidade são usadas no filete em tubos de aço ou estes com quaisquer acessórios, obedecendo também aos requisitos das normas BS EN 10226-1, ANSI B1.20.1 ou de outras tecnicamente equivalentes.
Artigo 9.º
Tubos de cobre
1. Os tubos de cobre obedecem aos requisitos da norma BS EN 1057 ou de outras tecnicamente equivalentes.
2. Os tubos de cobre só podem ser utilizados na tubagem à vista localizada a jusante do primeiro dispositivo de corte do troço de derivação de fogo.
Artigo 10.º
Tubos de chumbo
É interdito o uso de tubos de chumbo em instalações de gás.
Artigo 11.º
Tubos de alumínio
É interdito o uso de tubos de alumínio em instalações de gás.
Artigo 12.º
Tubos flexíveis
1. Os tubos flexíveis, metálicos ou não, obedecem aos requisitos das normas técnicas aplicáveis.
2. Os tubos flexíveis são instalados à vista e num compartimento com boa ventilação, não excedendo o seu comprimento 2 m; e no caso dos tubos não metálicos, são usadas abraçadeiras ou reforços nas ligações às tubagens fixas e aos aparelhos a gás.
3. Os tubos flexíveis de borracha obedecem a qualquer uma das normas seguintes:
1) AS/NZS 1869;
2) BS EN 16436-1;
3) JIS K 6348;
4) Outros requisitos de normas tecnicamente equivalentes.
4. Os tubos flexíveis de borracha são utilizados dentro do prazo especificado nas normas de fabrico ou aprovado por instituição inspectiva.
Artigo 13.º
Tubos não metálicos
É interdito o uso de tubos não metálicos em instalações de gás, sem prejuízo do disposto no n.º 3 do artigo 16.º e nos artigos 49.º e 51.º.
Artigo 14.º
Acessórios diversos
1. Os materiais usados no fabrico de acessórios e uniões obedecem a requisitos de qualidade e segurança compatíveis com os das tubagens nas quais são aplicados.
2. Caso sejam utilizados acessórios em ferro fundido maleável, estes obedecem aos seguintes requisitos:
1) São utilizados em instalações de gás cuja pressão de serviço não exceda 0,4 bar;
2) A qualidade dos acessórios em ferro fundido maleável pode ser compatível com a da tubagem na qual vão ser inseridos e adequada à sua utilização em tubagem de gás, de acordo com os requisitos das normas técnicas aplicáveis;
3) São aprovados em inspecção visual adequada e ensaios de estanquidade a 100 %;
4) Obedecem aos requisitos da norma BS EN 10242, ISO 49, GB/T 3287 ou de outras tecnicamente equivalentes, sendo o símbolo do projecto para rosca cónica/cilíndrica, A e o símbolo do projecto para rosca cónica/cónica, C.
3. As soldaduras topo a topo dos acessórios de aço obedecem aos requisitos da norma ANSI B 16.9 ou de outras normas técnicas equivalentes.
4. Nas instalações de gás, todos os acessórios utilizados obedecem aos requisitos das normas técnicas aplicáveis.
5. Na interligação entre diversos troços de tubagens são usadas, sempre que possível, uniões ou juntas soldadas, brasadas ou soldobrasadas.
6. Na interligação de tubagens de naturezas diferentes, as uniões ou juntas são produzidas em fábrica.
7. As juntas isolantes obedecem aos seguintes requisitos:
1) Têm as extremidades lisas, roscadas, flangeadas ou esferocónicas, de acordo com o modo da junta a executar;
2) São produzidas em fábrica.
8. Os dispositivos de corte são mecânica e quimicamente resistentes aos gases distribuídos e os seus componentes exteriores são incombustíveis.
9. O sentido de passagem do fluxo gasoso é assinalado de modo indelével nos dispositivos de corte, sempre que a natureza do acessório o torne necessário.
10. Todos os equipamentos a utilizar nas instalações de gás, designadamente as juntas isolantes, os dispositivos de corte e os contadores de gás, são certificados de acordo com as normas do local de origem.
11. Nos casos das reconversões, sempre que nas instalações de gás passem a ser utilizados gases húmidos, têm de existir dispositivos metálicos de evacuação dos condensados, de qualidade compatível com a da tubagem em que se inserem, não podendo ser usados os do tipo de esvaziamento automático.
12. As bainhas, as caixas de tubagens e as coquilhas destinadas a assegurar protecção mecânica às tubagens são de material não combustível (M0), salvo o disposto no n.º 1 do artigo 22.º.
13. As bainhas metálicas são protegidas contra a corrosão e electricamente isoladas em relação às tubagens que protegem.
Artigo 15.º
Meios auxiliares de estanquidade
1. Para meios auxiliares de estanquidade são utilizados materiais conformes com as normas técnicas aplicáveis.
2. Os empanques ou pastas para juntas são resistentes ao tipo de gás utilizado, não sendo permitidos os de borracha natural, couro, amianto, mialhar, mínio ou zarcão, linho e alvaiade de zinco ou de chumbo e pastas do tipo polimerizável.
3. Sem prejuízo do disposto no número anterior, são satisfeitos os requisitos de qualquer uma das normas seguintes:
1) BS EN 751-1;
2) BS EN 751-2;
3) BS EN 751-3;
4) Outros requisitos de normas tecnicamente equivalentes.
4. É admitido o uso de juntas com anilhas de vedação à base de elastómetros, de qualidade apropriada, desde que trabalhem à compressão sobre encostos planos estanques de superfície adequada.
CAPÍTULO III
Concepção das instalações de gás
SECÇÃO I
Disposições gerais
Artigo 16.º
Entrada das tubagens em edifícios
1. Sempre que uma tubagem enterrada penetre num edifício através das suas paredes ou fundações no subsolo, o espaço anelar entre a tubagem e a parede é obturado de modo estanque.
2. Quando a tubagem de gás atravessar locais onde haja risco de assentamento são adoptadas as medidas de compensação necessárias tendo em conta o impacto do mesmo.
3. As tubagens de polietileno (PE) emergentes do solo e não embebidas na parede exterior do edifício são protegidas por uma bainha metálica, a qual obedece aos seguintes requisitos:
1) É cravada no solo até uma profundidade mínima de 0,2 m;
2) É convenientemente fixada;
3) Acompanha a tubagem de gás até uma altura de, pelo menos, 1,1 m acima do solo, a menos que a tubagem de gás penetre no edifício a menor altura;
4) Satisfaz o disposto nos n.os 12 e 13 do artigo 14.º;
5) A extremidade superior do espaço anelar entre a tubagem e a bainha metálica é obturada com um material inerte.
4. Quando a tubagem de polietileno ficar embebida na parede exterior do edifício, é protegida por uma bainha que resista ao ataque químico das argamassas.
5. A tubagem de polietileno, antes de penetrar no dispositivo de corte geral ao edifício, é convertida em tubagem de aço através de acessórios mistos; no caso de esse troço da tubagem de aço estar enterrado, observa-se o disposto no Regulamento Administrativo n.º 11/2017 relativamente à protecção das tubagens de aço contra as acções corrosivas e à protecção catódica; mas no caso de esse troço da tubagem de aço ficar implantado em vala específica, podem adoptar-se medidas adequadas de protecção contra a corrosão segundo o ambiente da vala.
Artigo 17.º
Implantação das tubagens
1. As tubagens são implantadas ao longo das paredes e observam o disposto nos artigos 18.º e 20.º a 22.º.
2. As tubagens de gás não podem atravessar:
1) Locais que contenham reservatórios de combustíveis líquidos ou depósitos de combustíveis sólidos;
2) Locais que contenham recipientes de GPL, com excepção da tubagem de gás que faz a ligação aos recipientes;
3) Condutas ou locais de recepção ou armazenagem de lixos domésticos ou alvéolos sanitários;
4) Condutas diversas, designadamente de electricidade, água e telefone;
5) Caixas de elevadores ou de monta-cargas;
6) Casas das máquinas de elevadores ou de monta-cargas;
7) Cabinas de transformadores ou de quadros eléctricos;
8) Caixas de escadas e câmaras corta-fogo;
9) Parques de estacionamento cobertos;
10) Outros locais com perigo de incêndio.
3. Com excepção das caixas de escadas e câmaras corta-fogo, as restrições impostas no número anterior não são aplicáveis se as tubagens de gás ficarem contidas numa bainha metálica contínua, estanque, cujas extremidades se encontrem em espaços livremente ventilados, e se se garantir que eventuais fugas de gás são conduzidas até aos extremos da bainha, os quais descarregam as fugas para o exterior.
4. É interdito o atravessamento de espaços vazios das paredes duplas por tubagens de gás, salvo se no atravessamento a tubagem de gás for protegida por uma bainha sem soluções de continuidade, cujos extremos excedam a espessura da parede, sendo o espaço anelar entre a tubagem de gás e a bainha selado com uma matéria inerte e não higroscópica.
5. As tubagens de gás não podem atravessar caves, podendo porém existir tubagens para transporte de gases menos densos do que o ar na primeira cave, desde que se encontre assegurada a eficiência da sua ventilação, da descarga dos produtos da combustão e das ligações dos aparelhos a gás e ao mesmo tempo obedeçam aos seguintes requisitos:
1) Possuam boas instalações de ventilação, que assegurem um mínimo de três renovações de ar por hora e um mínimo de seis renovações de ar por hora na ocorrência de fugas de gás;
2) As instalações de ventilação para fugas de gás referidas na alínea anterior sejam do tipo antideflagrante, estejam interligadas aos detectores de gás e sistemas de alarme, e estejam ligadas à fonte de alimentação de reserva, de modo a assegurar que, em caso de ocorrência de fugas de gás, outras instalações de ventilação sejam automaticamente desligadas;
3) Sejam instalados detectores de gás e sistemas de alarme;
4) Seja instalado um dispositivo de corte com acessibilidade de grau 1 no ponto de entrada da tubagem na cave.
6. Nos troços horizontais as tubagens cumprem os afastamentos a outras tubagens, cabos eléctricos ou similares, correspondentes às diversas modalidades de instalação das mesmas, e observam o disposto no artigo seguinte e nos artigos 20.º a 22.º.
7. As tubagens de gás podem ser implantadas entre os tectos falsos e os tectos, nos casos em que se cumpram os seguintes requisitos:
1) Os tectos falsos disponham de superfície aberta suficiente, de forma a impedir a acumulação de gás;
2) As distâncias mínimas entre as tubagens de gás e as outras sejam de 3 cm em percursos paralelos ou de 2 cm nos cruzamentos;
3) Tenha sido reservado espaço suficiente entre o tecto e o tecto falso para inspecção de todo o percurso da tubagem.
8. As tubagens de gás quando implantadas em parques de estacionamento, colectivos ou cobertos, ficam protegidas através da colocação de dispositivos de protecção metálicos com suficiente resistência ao impacto que impeçam a colisão de veículos com as tubagens.
9. As tubagens de gás situadas a montante das fracções para fins não residenciais, são implantadas nas partes comuns dos edifícios, salvo no caso de não existirem partes comuns acessíveis.
Artigo 18.º
Passagem das tubagens através de edifícios
A passagem das tubagens através de edifícios pode ser feita desde que fiquem instaladas em alguma das seguintes condições:
1) Em galeria técnica bem ventilada;
2) Em caixa de tubagens com tampa em grelha, ou equivalente;
3) Em bainha ventilada resistente às agressões mecânicas;
4) À vista, com dispositivo de protecção contra eventuais agressões mecânicas, nos locais em que tal possa acontecer.
Artigo 19.º
Dispositivo de corte geral de gás ao edifício
1. O dispositivo de corte geral de gás ao edifício é de acessibilidade de grau 1 e é do tipo de corte rápido com encravamento; uma vez accionado, é rearmado pela entidade exploradora de gases combustíveis.
2. O dispositivo de corte geral ao edifício fica instalado junto da entrada do edifício, e numa caixa fechada embutida ou encastrada na parede do edifício e com acesso pelo exterior do mesmo, com excepção de casos de reconversão ou conversão.
3. A caixa mencionada no número anterior é sinalizada, no seu exterior, com a palavra «Gás» em caracteres legíveis e indeléveis, em chinês e em português, inscritos em placa de material não combustível (M0) colocada em local bem visível.
4. Nos edifícios do tipo unifamiliar, o dispositivo de corte geral só pode ser substituído por um dispositivo de corte do tipo de rearmamento manual por um quarto de volta, quando estiver instalado imediatamente a montante do contador de gás.
5. Se os dispositivos de corte nos edifícios não residenciais e destinados ao exercício de actividades industriais forem do tipo um quarto de volta, o local para a instalação destes dispositivos é projectado e definido por técnicos, empresários comerciais, pessoas singulares ou sociedades comerciais inscritos na DSSOPT e que possuam qualificações adequadas nos termos da Lei n.º 1/2015.
6. Sempre que as instalações de gás incluam mais de uma coluna montante, alimentadas pelo mesmo ramal de edifício, quer seja um edifício único ou um complexo construtivo constituído por vários blocos ou torres, para além do disposto no n.º 1, no local do início de cada uma das colunas montantes é instalado um dispositivo de corte; caso a sua localização seja restringida, pode ser substituído por uma válvula solenóide com função de corte manual e do tipo normalmente fechado.
7. O interruptor do dispositivo de corte ou da válvula solenóide referidos no número anterior está instalado em local com acessibilidade de grau 1, sendo este sinalizado, em lugar bem visível, por placa de material não combustível (M0) onde constem as seguintes informações inscritas em caracteres legíveis e indeléveis:
1) A palavra «Gás», em chinês e em português;
2) O bloco que o dispositivo de corte serve, em chinês e em português.
8. Sempre que necessário, a caixa referida no n.º 2 pode alojar também um redutor de pressão para serviço do edifício alimentado a gás.
Artigo 20.º
Tubagens à vista
1. As tubagens à vista obedecem aos seguintes requisitos:
1) São implantadas em local de materiais não combustíveis (M0);
2) Os troços horizontais ficam situados na parte superior da parede, a uma distância não superior a 20 cm do tecto ou dos elementos da estrutura resistente, entre outros, com excepção dos casos de reconversão ou conversão;
3) Os troços verticais ficam na prumada dos dispositivos de corte dos aparelhos a gás que alimentam.
2. As tubagens à vista que atravessem um pavimento interior do edifício são protegidas por uma bainha, a qual obedece aos seguintes requisitos:
1) É resistente à corrosão provocada pela água ou a outro ataque químico;
2) Fica complanar com o tecto na sua extremidade inferior e ultrapassa o pavimento na sua extremidade superior em, pelo menos, 5 cm;
3) É preenchida com uma matéria isolante e não higroscópica no espaço anelar entre a tubagem e a bainha.
3. Quando as tubagens à vista atravessarem juntas de dilatação ou juntas de ruptura dos edifícios, são adoptadas as medidas de compensação necessárias tendo em conta os efeitos de compressão e dilatação.
4. As tubagens à vista não podem ficar em contacto com quaisquer outras tubagens, cabos eléctricos ou similares, sendo as distâncias mínimas entre aquelas e estes de 3 cm em percursos paralelos e de 2 cm nos cruzamentos.
5. As tubagens à vista não podem estar em contacto com as condutas de evacuação dos produtos de combustão, observando-se as distâncias mínimas indicadas no número anterior.
6. As tubagens à vista não podem estar em contacto com quaisquer quadros eléctricos, contadores de electricidade, tomadas eléctricas, interruptores eléctricos ou quaisquer outros dispositivos eléctricos, sendo as distâncias mínimas entre aquelas e estes de 15 cm.
7. A forma dos suportes da tubagem e a distância entre eles são projectadas e definidas por técnicos, empresários comerciais, pessoas singulares ou sociedades comerciais inscritos na DSSOPT e que possuam qualificações adequadas nos termos da Lei n.º 1/2015; na elaboração do projecto é garantida a segurança da instalação.
8. As tubagens de gás, de aço, quando à vista, são protegidas contra as acções corrosivas, podendo ser usada uma combinação de revestimento primário epóxi rico em zinco, revestimento intermédio epóxi com óxido de ferro micáceo e revestimento superior de poliuretano ou outra combinação, obedecendo a protecção aos requisitos das normas ISO 12944, GB/T 30790 ou de outras tecnicamente equivalentes.
9. Antes de se realizar a protecção contra as acções corrosivas nas tubagens de aço, à vista, faz-se um tratamento de superfície, no caso de tratamento com ferramentas manuais ou eléctricas, correspondendo à classe St2 ou superior prevista nas normas técnicas ISO 8501-1 ou GB/T 8923.1.
Artigo 21.º
Tubagens embebidas
1. As tubagens embebidas obedecem aos seguintes requisitos:
1) Os troços são rectilíneos na horizontal ou na vertical;
2) Os troços horizontais ficam situados na parte superior da parede, a uma distância não superior a 20 cm do tecto ou dos elementos da estrutura resistente, entre outros;
3) Os troços verticais ficam na prumada dos dispositivos de corte dos aparelhos a gás que alimentam;
4) No caso das tubagens embebidas nos pavimentos, o percurso faz-se preferencialmente em direcção paralela, com um afastamento não superior a 20 cm, ou perpendicular à parede contígua.
2. As tubagens embebidas não podem incorporar qualquer junta mecânica, excepto se esta for indispensável, caso em que ficará contida numa caixa de visita com acessibilidade de grau 3.
3. O disposto no número anterior é aplicável aos dispositivos de corte e seus acessórios com juntas mecânicas.
4. As derivações ou mudanças de direcção das tubagens, quando feitas por meio de soldadura ou brasagem forte, ficam contidas em caixas de visita como se refere no n.º 2, excepto nos casos, devidamente justificados, em que se utilizem tubos de aço soldados por arco eléctrico.
5. As tubagens embebidas têm um recobrimento mínimo de 2 cm de espessura.
6. Os tubos de aço embebidos são previamente revestidos com uma matéria inerte e resistente à corrosão, e obedecem aos requisitos das normas ISO 12944, GB/T 30790 ou de outras tecnicamente equivalentes; caso os tubos de aço sejam embebidos em parede de tijolos, são protegidos contra a corrosão ao nível reforçado através de revestimento epóxi de alcatrão de carvão com fibra de vidro ou fita de polietileno, entre outras técnicas que obedecem aos requisitos das normas SY/T 0447, GB/T 23257 ou de outras tecnicamente equivalentes, sendo aplicada às partes soldadas uma protecção adicional contra as acções corrosivas de nível reforçado.
7. As tubagens embebidas não podem ficar em contacto com redes de vapor, água quente ou electricidade, obedecendo as distâncias mínimas entre aquelas e estas aos seguintes requisitos:
1) 5 cm em percursos paralelos e de 3 cm em cruzamentos, no caso das redes de vapor ou água quente;
2) 10 cm em percursos paralelos e de 3 cm em cruzamentos, no caso das redes eléctricas;
3) 5 cm, em relação às chaminés.
8. As tubagens podem ser recobertas, encastradas ou embebidas nas paredes, divisórias ou pavimentos, na condição de:
1) Não ficarem em contacto directo com o metal das estruturas ou armaduras das paredes, pilares ou pavimentos;
2) Não atravessarem juntas de dilatação nem juntas de ruptura da alvenaria ou betão;
3) Não passarem no interior de elementos ocos, a menos que as tubagens fiquem no interior de uma bainha estanque e sem soluções de continuidade, desembocando pelo menos uma das extremidades dessa bainha num local ventilado;
4) Não serem instaladas nas paredes de chaminés;
5) Os eventuais roços efectuados após a conversão não reduzirem a solidez, ventilação, estanquidade, isolamento térmico ou sonoro da obra.
9. Não podem ser executados roços para as tubagens de gás situadas nos seguintes locais:
1) Em paredes ou divisórias construídas em tijolo furado de espessura inferior a 6 cm, quando horizontais;
2) Em paredes ou divisórias de betão maciço ou celular de espessura inferior a 8 cm, quando horizontais;
3) Em paredes ou divisórias de estafe de espessura inferior a 10 cm;
4) Em paredes pré-fabricadas de espessura inferior a 10 cm;
5) Em divisórias finas, em pavimentos de betão moldado nervurado ou noutras condições similares.
Artigo 22.º
Tubagens em caixas de tubagens
1. As tubagens de gás podem ficar alojadas em caixas de tubagens, desde que estas sejam devidamente ventiladas e construídas em materiais não combustíveis (M0), podendo ser utilizados materiais não inflamáveis (M1) no interior dos fogos.
2. As caixas de tubagens são inspeccionáveis através de portas de acesso estanques, as quais são construídas com os materiais indicados no número anterior e instaladas a cada 4 ou 5 pisos, não podendo a distância entre duas portas ser superior a 20 m.
3. Quando as tubagens de gás ficarem alojadas em caixa de tubagens situada em partes comuns, a direcção das tubagens de gás é indicada em caracteres bem legíveis e indeléveis, em chinês e em português.
Artigo 23.º
Derivações de piso e de fogo
As derivações de piso e de fogo são implantadas ao longo das paredes, nas condições estabelecidas nos artigos 17.º e 20.º a 22.º, consoante a modalidade utilizada.
Artigo 24.º
Dispositivos de corte
1. As instalações de gás têm de possuir, para além do dispositivo de corte geral ao edifício, dispositivos de corte do tipo um quarto de volta, pelo menos nos seguintes pontos:
1) No início de cada derivação de piso;
2) No início de cada derivação de fogo;
3) Imediatamente a montante de cada contador de gás;
4) No ponto de entrada da tubagem no fogo, caso o contador de gás se encontre a mais de 20 m da entrada do fogo;
5) No ponto de entrada da tubagem no fogo, caso o fogo se encontre a mais de 20 m do dispositivo de corte do início da derivação de fogo.
2. Se os dispositivos de corte ficarem localizados no ponto referido na alínea 4) ou 5) do número anterior, são instalados em caixa feita de materiais não combustíveis (M0), assegurando-se a evacuação para o exterior do gás eventualmente libertado.
3. O dispositivo de corte pode ser substituído por um redutor de segurança que exista junto de cada contador de gás, desde que esse redutor esteja situado no mesmo piso ou no piso superior ou inferior, a uma distância não superior a 20 m do fogo que serve.
4. Se o redutor de segurança for do tipo de reinício automático, é sempre instalado a montante dele um dispositivo de corte do tipo de rearmamento manual por um quarto de volta.
5. Os dispositivos de corte das derivações de piso ficam instalados em caixas de visita ou em caixas de tubagens, seladas pela entidade exploradora de gases combustíveis, com excepção do caso das instalações com tubagem à vista.
6. Quando vários dispositivos de corte se encontrem agrupados, têm de existir meios indeléveis e legíveis que os identifiquem claramente em relação ao consumidor que servem.
7. O dispositivo de corte do ramal instalado próximo da fracção ou do seu limite, acessível do exterior desta, é sinalizado com a palavra «Gás» em caracteres legíveis e indeléveis, em chinês e em português, inscritos em placa de material não combustível (M0) colocada em local bem visível.
8. Em todos os casos, os dispositivos de corte são instalados em locais com acessibilidade de grau 2.
Artigo 25.º
Evacuação dos condensados
1. Se o gás utilizado for um gás húmido, as tubagens de gás são instaladas com uma pendente de, pelo menos, 5 mm/m, inclinadas para o dispositivo de recolha dos condensados no sentido da origem do fluxo do gás.
2. Os dispositivos de recolha dos condensados são implantados de modo a evitar que os condensados atinjam os contadores de gás.
3. Cada ponto baixo das instalações alimentadas com gases húmidos é equipado com um dispositivo de evacuação dos condensados, tendo em conta o estipulado no n.º 11 do artigo 14.º.
Artigo 26.º
Instalação dos dispositivos de regulação da pressão
1. Os redutores de pressão individuais de cada fogo são do tipo «de segurança» e instalados imediatamente a montante do contador de gás ou dos aparelhos a gás.
2. Os redutores de pressão referidos no número anterior podem ser dispensados no caso da instalação de gás alimentada em baixa pressão de 3.ª classe.
3. Os dispositivos de regulação da pressão são precedidos por um dispositivo de corte que garanta a sua substituição em caso de necessidade.
4. O dispositivo de corte referido no número anterior só pode ser comum a vários redutores de pressão instalados em paralelo se for instalado no troço comum.
5. Se os redutores de pressão dispuserem de sistemas de segurança contra sobrepressões internas, estes têm de assegurar a evacuação para lugar seguro do gás eventualmente libertado e obedecem aos seguintes requisitos:
1) Actuam antes que a pressão a jusante atinja 1,1 vezes a pressão de serviço máxima;
2) Se esses sistemas se encontrarem no interior do edifício, permitem a evacuação do gás libertado pela caleira ou, se necessário, por uma tubagem colectora;
3) Se esses sistemas se encontrarem no exterior do edifício, são colocados num alvéolo técnico de gás ventilado.
6. A tubagem colectora obedece aos seguintes requisitos:
1) Tem a extremidade livre orientada para baixo e situada no exterior do edifício, a uma distância de, pelo menos, 2 m de orifício no qual os gases possam penetrar e de, pelo menos, 3 m de quaisquer fontes de ignição, chamas ou dispositivos eléctricos; mas, se tal não puder ser observado nos casos de conversão, essa distância pode ser reduzida para 50 cm;
2) É metálica e tem a sua extremidade protegida contra a entrada de insectos ou corpos estranhos;
3) Tem espaço suficiente no diâmetro interno para que não ofereça resistência à passagem do fluxo de gás.
Artigo 27.º
Instalação dos contadores de gás
1. Os contadores de gás estão em conformidade com qualquer uma das normas seguintes:
1) GB/T 6968;
2) OIML R31;
3) BS EN 1359;
4) BS EN 12480;
5) GB/T 18940;
6) Outros requisitos de normas tecnicamente equivalentes.
2. Os contadores de gás e os respectivos redutores de segurança são instalados em alvéolo técnico de gás com acessibilidade de grau 1 e obedecem aos requisitos previstos no artigo 29.º, com excepção dos casos em que os mesmos sejam instalados dentro de armários de cozinha do fogo.
3. Se mais do que um contador de gás estiverem agrupados num mesmo local, cada um deles é sinalizado com caracteres legíveis e indeléveis, inscritos em placa de material não combustível (M0), que o identifiquem em relação ao consumidor que serve.
4. Quando o contador de gás seja instalado no interior do fogo ou em local privado, aquele obedece aos seguintes requisitos:
1) Fica numa posição que garanta boa ventilação;
2) Fica situado a uma altura não superior a 1,8 m;
3) Fica situado a, pelo menos, 40 cm de afastamento na horizontal em relação aos aparelhos a gás;
4) Fica situado a, pelo menos, 20 cm de interruptores ou tomadas eléctricas, tubagens de escoamento de águas e de condutas de evacuação dos produtos de combustão;
5) Caso seja instalado dentro de um armário de cozinha do fogo, esse armário não é comunicante com os armários de cozinha adjacentes, e possui aberturas de ventilação permanentes com uma área total de, pelo menos, 80 cm2, sendo a localização dessas aberturas definida conforme as características do gás usado;
6) Caso seja instalado numa varanda, fica alojado em alvéolo técnico de gás.
5. É proibida a instalação de contadores de gás em quartos de dormir ou casas de banho.
6. Os contadores de gás são montados de forma a não serem transmitidos esforços às respectivas ligações à tubagem.
Artigo 28.º
Instalações de gás no interior dos fogos
1. As tubagens a jusante do contador de gás não podem atravessar outros fogos, à excepção do fogo que abastecem.
2. No interior do fogo, o dispositivo de corte geral fica instalado no ponto de entrada da tubagem na cozinha ou na varanda, a uma altura não superior a 1,8 m acima do nível do pavimento, em local com acessibilidade de grau 1, com excepção dos casos de conversão.
3. As tubagens fixas têm de assegurar que o gás é conduzido até a uma distância não superior a 2 m do local destinado à ligação do aparelho a gás.
4. As tubagens fixas têm de possuir um dispositivo de corte do tipo um quarto de volta, próximo das respectivas extremidades.
Artigo 29.º
Alvéolo técnico de gás
1. No caso de um ou vários dispositivos de corte, redutores de segurança, contadores de gás e tubagens correspondentes serem instalados em alvéolo técnico de gás, este pode ser constituído por uma cabina, encastrada ou não na parede exterior do edifício, ou no fogo do consumidor o mais próximo possível da entrada, desde que não constitua obstáculo ao acesso dos bombeiros e dos equipamentos por eles usados.
2. É colocada, em lugar bem visível, uma placa de material não combustível (M0), de onde constem o nome e o número de telefone de emergência da entidade exploradora de gases combustíveis, a palavra «Gás» e a expressão «É proibido fumar ou foguear», em chinês e em português, ou os símbolos correspondentes, inscritos em caracteres bem visíveis e indeléveis.
3. O alvéolo técnico de gás obedece aos seguintes requisitos:
1) É construído com materiais não combustíveis (M0), como sejam alvenaria, betão ou chapas metálicas, entre outros, quando encastrado, e é de uma classe de resistência ao fogo de, pelo menos, 30 minutos, e de, pelo menos, 60 minutos caso se trate de edifício não residencial e que se destine ao exercício de actividades industriais;
2) É ventilado, ao nível superior e inferior, por aberturas permanentes;
3) Dispõe de porta de material da mesma classe de resistência ao fogo referida na alínea 1), com fecho, abrindo para fora;
4) É mantido limpo, sempre fechado, seco e ventilado.
4. As tubagens a jusante dos contadores de gás ficam protegidas por caixas de tubagens ou bainhas nos locais sujeitos a eventuais agressões mecânicas, obedecendo aos requisitos estabelecidos nos n.os 12 e 13 do artigo 14.º.
5. Se o alvéolo técnico de gás ficar instalado na parede exterior do edifício, é projectado de forma a assegurar a evacuação segura dos ocupantes do edifício.
SECÇÃO II
Edifícios com coluna montante interior
Artigo 30.º
Colunas montantes
1. As colunas montantes instaladas no interior dos edifícios não podem atravessar o interior de quaisquer fogos.
2. As colunas montantes podem atravessar o interior das partes comuns dos edifícios, se os seus elementos resistentes forem construídos com materiais não combustíveis (M0).
3. Quando as colunas montantes ficarem instaladas em caixas de tubagens, obedecem aos seguintes requisitos:
1) São de aço;
2) As soldaduras são executadas de acordo com os requisitos das normas técnicas aplicáveis, com o mínimo de juntas possível.
4. As caixas de tubagens das colunas montantes são exclusivamente reservadas às tubagens de gás, sendo, tanto quanto possível, rectilíneas e de secção uniforme em toda a altura do edifício.
5. As caixas de tubagens das colunas montantes têm de possuir boa ventilação em toda a sua altura, com aberturas de ventilação superior e inferior para o exterior do edifício, protegidas com uma rede corta-chamas, ficando a abertura inferior situada a uma altura de, pelo menos, 2 m acima do nível do arruamento e a uma distância de, pelo menos, 2 cm, da parede exterior da tubagem.
6. A caleira entre a vertical das caixas de tubagens e a abertura inferior tem uma inclinação de, pelo menos, 1%.
7. Quando as colunas montantes atravessarem os pavimentos dos pisos, é proibido fixá-las com betão, a respectiva caixa de tubagens obedece aos requisitos mencionados no n.º 3 e possui uma passagem livre.
8. Na parte superior da caixa de tubagens a secção livre de evacuação é protegida por forma a impedir a entrada de matérias estranhas e a acção dos agentes atmosféricos.
9. Dependendo das características do gás usado, é instalado um detector de gás com função de alarme na abertura de ventilação superior ou inferior da caixa de tubagens.
Artigo 31.º
Dispositivos de corte
Os dispositivos de corte das derivações de piso e das derivações de fogo são instalados em conformidade com o disposto no artigo 24.º.
Artigo 32.º
Instalação dos contadores de gás
1. A instalação dos contadores de gás obedece ao disposto no artigo 27.º, sendo ainda estes implantados o mais próximo possível das colunas montantes, e as caixas de tubagens das colunas montantes são comunicantes com as caleiras ou cabinas.
2. O acesso à caleira ou à cabina dos contadores de gás e às caixas de tubagens está protegido por uma porta com fecho de uma classe de resistência ao fogo de, pelo menos, 30 minutos, e de, pelo menos, 60 minutos caso se trate de edifício não residencial e que se destine ao exercício de actividades industriais, e a porta tem de abrir para fora e possuir um dispositivo de fecho automático.
3. Os equipamentos eléctricos, entre outros, necessários à iluminação das caleiras ou cabinas dos contadores de gás e das caixas de tubagens das colunas montantes podem ficar situados em local adequado no exterior das cabinas, sendo do tipo antideflagrante caso se situem no interior das mesmas.
SECÇÃO III
Edifícios com coluna montante exterior
Artigo 33.º
Colunas montantes e derivações de piso
1. Salvo disposição legal em contrário, a coluna montante exterior pode ser instalada em edifícios.
2. As colunas montantes exteriores obedecem aos seguintes requisitos:
1) São construídas em tubos de aço;
2) São construídas ao longo da parede exterior do edifício, são protegidas em toda a sua extensão contra a corrosão, sendo instalado um dispositivo contra as agressões mecânicas até a uma altura de 2,5 m do solo.
3. Quando a pressão de serviço da coluna montante ultrapassar 0,1 bar, esta fica afastada, pelo menos, 1 m de qualquer abertura ou janela de compartimentos do edifício onde não se utilize gás, e no caso de a pressão de serviço não ultrapassar 0,1 bar, essa distância é de, pelo menos, 0,3 m.
4. A distância de 1 m referida no número anterior pode ser reduzida no caso de a pressão de serviço da coluna montante ser superior a 0,1 bar e ficar instalada na bainha, a qual obedece aos seguintes requisitos:
1) Tem uma secção não inferior a 100 cm2 e é exclusivamente reservada à coluna montante;
2) É devidamente ventilada, sendo a sua abertura inferior protegida com uma rede corta-chamas;
3) É a secção livre de evacuação na parte superior protegida por forma a impedir a entrada de matérias estranhas e a acção dos agentes atmosféricos;
4) São convenientemente vedadas as saídas da bainha para derivação de piso.
Artigo 34.º
Dispositivos de corte
Os dispositivos de corte das derivações de fogo ficam instalados imediatamente a seguir à entrada da tubagem em cada fogo, em local de fácil acessibilidade, podendo ficar instalados no exterior do fogo, se o espaço for limitado.
Artigo 35.º
Instalação dos contadores de gás
A instalação do contador de gás obedece ao disposto no artigo 27.º, ficando ainda este instalado num dos seguintes locais:
1) Na cozinha ou na varanda, o mais próximo possível da coluna montante;
2) No troço que penetra no fogo, desde que a instalação de gás seja alimentada em baixa pressão de 3.ª classe ou o redutor de segurança fique instalado no exterior do fogo.
SECÇÃO IV
Edifícios de grande altura
Artigo 36.º
Colunas montantes
1. Se as colunas montantes ficarem instaladas no interior do edifício, ficam contidas em caixas de tubagens exclusivamente destinadas a esse fim, observando ainda o disposto no artigo 30.º.
2. São instalados detectores de gás com função de alarme nas aberturas de ventilação superior e inferior das caixas de tubagens e dentro destas a cada 4 a 5 pisos, não podendo a distância entre dois detectores de gás ser superior a 20 m, sendo instaladas no local onde se situam os detectores de gás, portas de acesso estanques de fecho automático.
3. No caso das colunas montantes exteriores, estas e as derivações de piso são instaladas em conformidade com o disposto no artigo 33.º.
Artigo 37.º
Dispositivos de corte
1. No caso das colunas montantes interiores, os dispositivos de corte são instalados em conformidade com o disposto no artigo 31.º.
2. No caso das colunas montantes exteriores, os dispositivos de corte são instalados em conformidade com o disposto no artigo 34.º.
Artigo 38.º
Instalação dos contadores de gás
1. No caso das colunas montantes interiores, os contadores de gás são instalados em conformidade com o disposto no artigo 32.º.
2. No caso das colunas montantes exteriores, os contadores de gás são instalados em conformidade com o disposto no artigo 35.º.
CAPÍTULO IV
Colocação em obra
Artigo 39.º
Princípio geral
1. As alterações aos projectos de instalação de redes de combustíveis são feitas por técnicos, empresários comerciais, pessoas singulares ou sociedades comerciais inscritos na DSSOPT e que possuam qualificações adequadas nos termos da Lei n.º 1/2015, sendo ainda caracterizadas no projecto de instalação final.
2. É proibida a reutilização de tubagens ou acessórios de ligação previamente utilizados noutras instalações.
3. Os dispositivos de corte e redutores de pressão só podem ser reutilizados depois de serem inspeccionados por técnicos ou organismos credenciados e de obtida uma avaliação de qualidade aprovada e disso seja feita prova mediante emissão de um documento certificativo.
Artigo 40.º
Dispositivos de evacuação de condensados
1. Os dispositivos de evacuação de condensados estão situados em locais ao abrigo de choques, corrosão e congelamento ou são protegidos contra esses factores.
2. O bujão de purga é acessível e está selado pela entidade exploradora de gases combustíveis.
Artigo 41.º
Instalação de tubagens
1. Os tubos de aço podem ficar à vista ou embebidos nas paredes ou pavimentos dos edifícios.
2. Sempre que instalados à vista, os tubos de aço e de cobre são convenientemente apoiados e fixados.
3. Os tubos que atravessem pavimentos, paredes ou outros obstáculos são protegidos.
4. As tubagens que sejam colocadas fora de serviço são tamponadas com um bujão roscado de material compatível com as mesmas ou fixado por processo equivalente, sendo proibidas soluções provisórias.
Artigo 42.º
Ligações, uniões e acessórios das tubagens
1. Nas interligações de tubos de aço pode ser adoptado qualquer dos métodos seguintes:
1) Soldadura eléctrica, topo a topo;
2) Soldadura eléctrica no caso de interligações por flanges ou uniões da classe de pressão PN10 da norma EN 1092-1, da Classe 150 da norma ANSI B 16.5 ou superior;
3) Uniões roscadas aplicáveis a tubos de aço de diâmetro exterior não superior a 60,3 mm.
2. Só podem usar-se ligações por juntas mecânicas ou juntas flangeadas quando haja necessidade de desmontagem das tubagens ou o traçado das mesmas a isso obrigue.
3. O material das flanges obedece aos requisitos da norma ASTM A694 ou de outras tecnicamente equivalentes.
4. O uso de juntas mecânicas é limitado às ligações de dispositivos de corte, acessórios e aparelhos, sendo proibidas as operações de soldobrasagem no local quando forem efectuadas ligações com tubos de cobre.
5. Nas interligações de tubos de cobre podem ser adoptados os métodos seguintes:
1) Brasagem capilar forte, aplicável a tubos de cobre de diâmetro exterior não superior a 54 mm;
2) Soldobrasagem, aplicável a tubos de cobre de diâmetro exterior superior a 54 mm, sendo apenas permitida a brasagem forte quando o seu diâmetro exterior for superior a 110 mm.
6. As interligações das tubagens de cobre com latão ou bronze são feitas por meio de brasagem forte.
7. As interligações entre as tubagens de aço e de cobre são realizadas com o auxílio das juntas isolantes ou acessórios mistos, soldados ou brasados forte no lado do aço e soldobrasados ou soldados no lado do cobre para a ligação das duas extremidades.
8. O uso de juntas isolantes obedece aos seguintes requisitos:
1) Nas operações de soldadura ou soldobrasagem, assegura-se que o núcleo isolante não aquece excessivamente;
2) As pontas lisas reservam um comprimento de, pelo menos, 150 mm para permitir as soldaduras sem aquecimento excessivo do revestimento, sendo protegidas por revestimento isolante compatível depois das soldaduras;
3) Durante a sua instalação assegura-se que o desempenho do isolamento eléctrico não é afectado.
9. Na estanquidade das juntas não soldadas, quando obtida por contacto entre metais, podem ser usadas pequenas quantidades de produtos acessórios, designadamente a fita de politetrafluoretileno (PTFE) e pastas ou líquidos apropriados, sendo, no entanto, interdito o uso de filaça ou pastas do tipo polimerizável.
10. Os meios auxiliares de estanquidade estão em conformidade com o disposto no artigo 15.º.
11. As tubagens enterradas são ligadas por soldadura ou soldobrasagem.
12. As juntas mecânicas das tubagens embebidas ficam contidas em caixas de visita, seladas pela entidade instaladora.
Artigo 43.º
Soldaduras
1. As soldaduras nos tubos de aço obedecem aos requisitos da norma API STD 1104 ou de outras tecnicamente equivalentes.
2. As soldaduras são executadas em conformidade com procedimentos certificados, por soldadores com qualificações reconhecidas por organismos locais.
3. Os procedimentos de soldadura, as inspecções visuais e os ensaios, destrutivos e não destrutivos, relativos à qualidade das soldaduras obedecem às normas aceites pela DSSOPT.
4. Quando as normas de soldadura não especificarem de modo diferente, fazem-se os seguintes ensaios:
1) Inspecções visuais a, pelo menos, 10% das soldaduras das tubagens seleccionadas aleatoriamente e ensaios não destrutivos a, pelo menos, 5% e a, pelo menos, uma das soldaduras das tubagens de diâmetro exterior superior a 60,3 mm ou das tubagens de gás cuja pressão de serviço seja superior a 0,4 bar;
2) Inspecções visuais a todas as soldaduras e ensaios não destrutivos a, pelo menos, 5% e a, pelo menos, uma das soldaduras das tubagens situadas na primeira cave, ou em dependências que, embora situadas no rés-do-chão, contenham algumas zonas com pavimentos rebaixados, ou das tubagens embebidas.
Artigo 44.º
Metal de adição
1. O metal de adição obedece aos requisitos das normas técnicas aplicáveis.
2. Nos tubos de aço, o metal de adição é de qualidade e composição química compatíveis com a qualidade do aço a soldar.
3. Nos tubos de cobre, é proibido o uso do metal de adição do tipo fosforado.
Artigo 45.º
Ligação à terra das instalações de gás
1. As instalações de gás dos edifícios são ligadas à terra, com uma resistência não superior a 4Ω.
2. Quando necessário, pode ser adoptado um bonding jumper e outras medidas de ligação, a fim de garantir a conectividade e continuidade eléctricas dos tubos metálicos.
3. É proibida a utilização das tubagens de gás para ligação à terra das redes eléctricas ou outras.
Artigo 46.º
Instalações alimentadas com gases menos densos do que o ar
Os dispositivos colectivos de regulação da pressão dos edifícios são instalados na proximidade das respectivas entradas, com acesso pelo exterior destas, e ficam contidos em alvéolo técnico de gás específico, ao abrigo de choques, vibrações e corrosão, estando este em conformidade com o disposto no artigo 29.º.
Artigo 47.º
Instalação dos contadores de gás
1. Os contadores de gás e respectivos redutores de segurança são instalados de modo a ficarem fixos ou apoiados e não susceptíveis de afectar a estanquidade das instalações de gás e o seu bom funcionamento.
2. Os pontos de penetração e de saída das tubagens nos alvéolos técnicos dos contadores de gás são obturados de forma estanque com materiais inertes.
3. Se for necessário um by-pass do contador de gás, este só é executado com o expresso e prévio consentimento por escrito da entidade exploradora de gases combustíveis.
4. Assegura-se que o dispositivo de corte existente no braço do by-pass está selado na posição de fechado.
Artigo 48.º
Dispositivos de corte dos aparelhos a gás
1. Nas instalações de gás, cada aparelho a gás é precedido por um dispositivo de corte de gás.
2. Os dispositivos de corte de gás são do tipo um quarto de volta e observam as normas técnicas aplicáveis.
Artigo 49.º
Ligações dos aparelhos a gás em edifícios residenciais
1. A ligação dos aparelhos a gás à instalação de gás é feita com tubos metálicos, rígidos ou flexíveis, nos casos seguintes:
1) Fornos independentes ou mesas de trabalho independentes;
2) Aparelhos de aquecimento de água, instantâneos ou de acumulação;
3) Aparelhos de aquecimento de ambiente, do tipo fixo.
2. A ligação dos aparelhos a gás à instalação de gás é feita com tubos flexíveis, metálicos ou não metálicos, observando as normas técnicas aplicáveis, nos casos seguintes:
1) Fogareiros ou fogões;
2) Aparelhos amovíveis de aquecimento de ambiente;
3) Máquinas de lavar ou de secar roupa;
4) Máquinas de lavar louça.
3. Sempre que a distância entre o ponto de abastecimento de gás e o aparelho a gás exceda 2 m ou quando o ponto de abastecimento de gás alimente mais de um aparelho, são utilizados tubos metálicos nestas ligações.
4. É proibida a ligação de gás a aparelhos de mistura «oxigénio/gás» e «ar comprimido/gás».
Artigo 50.º
Instalação dos aparelhos a gás em edifícios
1. É proibida a instalação de esquentadores a gás sem chaminé.
2. Os aparelhos a gás têm de possuir dispositivos automáticos de segurança, para que o abastecimento de gás possa ser cortado automaticamente no caso de extinção acidental da chama.
3. A instalação de aparelhos a gás em edifícios residenciais obedece aos requisitos da norma CJJ 12 ou de outras tecnicamente equivalentes.
4. Os fogões a gás obedecem a qualquer uma das normas seguintes:
1) GB 16410;
2) EN 30;
3) JIS S 2103;
4) Outros requisitos de normas tecnicamente equivalentes.
5. Os esquentadores a gás obedecem a qualquer uma das normas seguintes:
1) GB 6932;
2) EN 26;
3) JIS S 2109;
4) Outros requisitos de normas tecnicamente equivalentes.
6. Os locais onde forem instalados aparelhos a gás são construídos com materiais não combustíveis (M0).
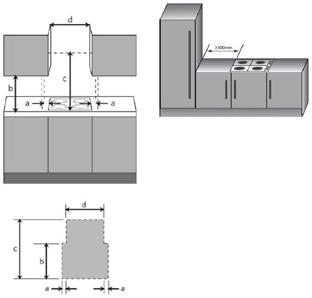
7. A distância entre o fogão a gás e materiais combustíveis obedece aos requisitos previstos nos anexos I e II ao presente regulamento administrativo e do qual fazem parte integrante, sendo estes protegidos por materiais resistentes ao fogo e de isolamento térmico, eficazes, quando a distância seja restringida.
8. Caso seja utilizado um sistema de gás centralizado, é instalada uma válvula limitadora de caudal entre o tubo flexível de borracha do fogão a gás e o dispositivo de corte do fogão a gás, ou essa válvula fica em associação com o dispositivo de corte do fogão a gás, a ligar à entrada do tubo flexível de borracha do fogão a gás.
9. A distância entre o esquentador a gás e materiais combustíveis é de, pelo menos, 3 cm.
10. A distância entre o fogão a gás e outros cabos eléctricos, tomadas eléctricas e interruptores eléctricos, com excepção dos do próprio fogão, é de, pelo menos, 30 cm.
11. A distância entre o esquentador a gás e outros cabos eléctricos é de, pelo menos, 30 cm, e a distância entre este e outras tomadas eléctricas ou interruptores eléctricos é de, pelo menos, 15 cm, com excepção dos cabos, tomadas e interruptores eléctricos do próprio esquentador a gás.
12. A instalação e reparação dos aparelhos a gás são efectuadas por entidades montadoras de aparelhos a gás inscritas na DSSOPT nos termos do Regulamento Administrativo n.º 3/2003 (Condições para a elaboração de projectos, direcção e execução de obras de instalação de redes de gás e para a montagem e reparação de aparelhos a gás).
Artigo 51.º
Ligações dos aparelhos a gás em edifícios não residenciais
1. Em edifícios não residenciais e que se destinem ao exercício de actividades industriais, o gás só pode ser ligado aos aparelhos a gás de ar insuflado desde que seja implantada uma conduta exclusiva de evacuação de fumos destinada à evacuação forçada para o exterior dos produtos de combustão, salvo nos casos em que existam dispositivos de ventilação forçada suficientes ou em que os aparelhos a gás ligados se encontrem em espaço aberto com ventilação suficiente.
2. A ligação de gás a aparelhos a gás em outros edifícios não residenciais que não sejam os edifícios referidos no número anterior observa o disposto no artigo 49.º.
Artigo 52.º
Ventilação e evacuação dos produtos de combustão
1. Os requisitos técnicos, os materiais e a montagem dos dispositivos de ventilação e a evacuação dos produtos de combustão observam as disposições legais e normas técnicas aplicáveis.
2. É proibida a evacuação de fumos dos esquentadores a gás através das condutas de evacuação de fumos dos fogões a gás.
3. Nos casos de conversão ou reconversão, a entidade exploradora de gases combustíveis tem de verificar as condições de ventilação e evacuação dos produtos de combustão.
4. Sempre que se utilizem esquentadores a gás com chaminé ou esquentadores a gás estanques do tipo atmosférico, a ventilação da sala ou do compartimento obedece aos requisitos previstos no anexo III ao presente regulamento administrativo e do qual faz parte integrante, e, no caso de esquentadores a gás estanques do tipo ventilado, a ventilação é assegurada de acordo com os requisitos previstos no referido anexo III, desde que o manual de instruções não a preveja.
5. No caso de esquentadores a gás instalados em edifícios já existentes e que não possam cumprir os requisitos do anexo III ao presente regulamento administrativo e do qual faz parte integrante, as potências, unitária e global, dos esquentadores a gás, instaladas por consumidor ou por derivação de instalação não podem ultrapassar 35 kW ou 70 kW, respectivamente.
6. Os armários de cozinha por baixo de fogões a gás encastrados não podem ser comunicantes com armários de cozinha adjacentes e têm de dispor de aberturas de ventilação permanentes com uma área total de, pelo menos, 80 cm2, sendo a localização dessas aberturas definida conforme as características do gás usado, com excepção dos casos de substituição de fogões a gás.
7. No caso de utilização de esquentadores a gás em que do manual de instruções nada conste relativamente ao local onde é instalada a extremidade da conduta para evacuação de fumos, esta é instalada em conformidade com o disposto no anexo IV ao presente regulamento administrativo e do qual faz parte integrante.
CAPÍTULO V
Instalações alimentadas com gases mais densos do que o ar
Artigo 53.º
Estabelecimento dos postos de garrafas de GPL
1. O estabelecimento dos postos de garrafas de GPL observa as disposições do Regulamento Administrativo n.º 28/2002 (Regulamento de Segurança das Instalações de Armazenagem de Gases de Petróleo Liquefeitos (GPL) com Capacidade não Superior a 200 m3 por Recipiente), e outras disposições legais aplicáveis.
2. É interdita a utilização de garrafas de GPL em edifícios de grande altura, com excepção dos postos de garrafas de abastecimento de gás ao edifício.
3. Excepcionam-se do disposto no número anterior as fracções para fins não residenciais, situadas no rés-do-chão de edifícios, que disponham de entrada e saída exclusiva e independente com acesso directo à via pública, e não possuam sistema de gás centralizado.
4. Os postos de garrafas de GPL são sinalizados por placa de material não combustível (M0), de onde constem as seguintes informações inscritas em caracteres legíveis e indeléveis:
1) Número máximo de garrafas de GPL permitido para armazenagem, em chinês e em português;
2) Capacidade máxima total, em chinês e em português;
3) Nome e número de telefone de emergência da entidade exploradora de gases combustíveis, em chinês e em português.
5. Em caves, ou dependências que, embora situadas no rés-do-chão, contenham algumas zonas com pavimentos rebaixados que não permitam um escoamento livre e natural de eventuais fugas de gás para o exterior, é interdita a armazenagem e uso de gases mais densos do que o ar.
Artigo 54.º
Implantação das tubagens
As tubagens para transporte de gases mais densos do que o ar não podem atravessar caves e dependências que, embora situadas no rés-do-chão, contenham algumas zonas com pavimentos rebaixados que não permitam um escoamento livre e natural de eventuais fugas de gás para o exterior.
Artigo 55.º
Alimentação das instalações
1. Os redutores de pressão das instalações de gás alimentadas com GPL estão situados nos dispositivos de corte das garrafas ou no início da tubagem.
2. Nas instalações de gás em edifícios alimentadas com GPL existem, pelo menos, dois andares de redução, sendo o último dos quais situado no ponto da entrada do contador de gás.
3. Se no segundo andar de redução das instalações de gás alimentadas com GPL existir um limitador de pressão, este é instalado imediatamente a jusante do redutor de 1.ª classe ou na entrada do edifício a abastecer.
4. No caso de uso de blocos inversores, estes são equipados com um dispositivo que indique as baterias de garrafas que estão em serviço.
Artigo 56.º
Alimentação dos aparelhos a gás
Os dispositivos de corte dos aparelhos a gás podem ser dispensados quando o aparelho a gás e a garrafa de GPL estiverem situados no mesmo local, a uma distância não superior a 2 m.
CAPÍTULO VI
Ensaios em obra
Artigo 57.º
Princípio geral
1. Antes de entrarem em serviço, as instalações de gás são sujeitas a ensaios a executar pela entidade instaladora e pela entidade exploradora de gases combustíveis e as tubagens de gás são sujeitas a purga antes dos ensaios, sendo os fluidos de purga admissíveis o ar ou o azoto, mas nunca o gás combustível.
2. Os ensaios e as verificações das instalações de gás obedecem aos seguintes requisitos:
1) Ensaio de resistência mecânica em todos os troços cuja pressão de serviço seja superior a 0,4 bar;
2) Ensaio de estanquidade das tubagens fixas nos troços cuja pressão de serviço não seja superior a 0,4 bar;
3) Ensaio de estanquidade no caso de ligações com tubo flexível e, verificação do período de validade e qualidade deste, se os aparelhos a gás estiverem fixados;
4) Verificação das condições de ventilação e evacuação dos produtos de combustão de acordo com o disposto no artigo 52.º.
3. São executados primeiro os ensaios de resistência mecânica e depois os ensaios de estanquidade às instalações de gás, sejam ou não consecutivas as respectivas operações.
4. Os ensaios de resistência mecânica e de estanquidade às tubagens embebidas são executados antes de estas serem ocultadas e não dispensam o ensaio final das instalações de gás.
5. Caso sejam detectadas deficiências durante os ensaios, as mesmas são tratadas depois de a pressão de ensaio ser reduzida para a pressão atmosférica, sendo executados novos ensaios após o tratamento.
Artigo 58.º
Ensaios de resistência mecânica
1. Durante os ensaios de resistência mecânica, as tubagens estão à vista, salvo os troços contidos no interior de bainhas.
2. Os troços contidos no interior de bainhas são ensaiados antes da sua instalação.
3. Os ensaios de resistência mecânica são aplicáveis às tubagens e seus acessórios, com exclusão dos dispositivos de regulação e limitação de pressão, dos dispositivos de corte geral ou corte automático e dos contadores de gás.
4. Antes dos ensaios, garante-se que os troços a ensaiar estão desligados do resto da instalação.
5. Os fluidos de ensaio que podem ser usados nos ensaios de resistência mecânica são o ar ou o azoto, podendo ser executados ensaios com água se a pressão de ensaio exceder 6 bar, desde que sejam tomadas as medidas de segurança adequadas.
6. Os ensaios de resistência mecânica obedecem aos seguintes requisitos:
1) A pressão de ensaio é de, pelo menos, 6 bar, medida com um manómetro tipo Bourdon ou equivalente, com divisões de 0,1 bar;
2) A pressão é mantida constante durante o tempo necessário à inspecção e detecção de eventuais fugas;
3) A duração do ensaio é contínua e não inferior a 30 minutos, sendo efectuada a verificação em todas as uniões com um líquido ou uma solução espumífera.
Artigo 59.º
Ensaios de estanquidade
1. Os ensaios de estanquidade podem ser executados com ar, azoto ou com o gás combustível que vai ser utilizado em funcionamento corrente.
2. Sempre que se utilize o ar ou o azoto, procede-se à purga da instalação de gás no fim dos ensaios.
3. Os ensaios de estanquidade são executados em duas fases, correspondentes aos troços das instalações de gás situados:
1) A montante do contador de gás;
2) A jusante do contador de gás.
4. Os ensaios por fases referidos no número anterior podem ser executados, na sua totalidade ou em fracções, obedecendo aos seguintes requisitos:
1) Nas instalações de gás alimentadas em baixa pressão de 2.ª classe, a uma pressão de ensaio de 1,5 vezes a pressão de serviço, com um mínimo de 1 bar, excepto a jusante do último andar de redução, em que a pressão de ensaio é de 150 mb;
2) Nas instalações de gás alimentadas em baixa pressão de 3.ª classe, a uma pressão de 0,1 bar ou à pressão de serviço, se o ensaio for feito com o gás que vai ser utilizado em funcionamento corrente;
3) A duração do ensaio é contínua e não inferior a 30 minutos, sendo efectuada a verificação em todas as uniões com um líquido ou uma solução espumífera.
Artigo 60.º
Pesquisa de fugas
1. A pesquisa de fugas é feita com os meios apropriados, designadamente com um líquido ou uma solução espumífera.
2. É interdito o uso de chamas para a pesquisa de fugas.
Artigo 61.º
Relatórios dos ensaios
1. São elaborados relatórios dos ensaios realizados à instalação de gás ou a qualquer dos seus troços, de onde constem os seguintes conteúdos:
1) Referência dos troços ensaiados;
2) Data, hora e duração;
3) Valores das temperaturas verificadas no fluido durante o ensaio;
4) Valores da pressão inicial e final do ensaio;
5) Conclusões;
6) Observações particulares.
2. Os relatórios são elaborados por técnicos, empresários comerciais, pessoas singulares ou sociedades comerciais inscritos na DSSOPT e que possuam qualificações adequadas nos termos da Lei n.º 1/2015, ou por entidades instaladoras de redes de gás inscritas na DSSOPT nos termos do Regulamento Administrativo n.º 3/2003.
CAPÍTULO VII
Entrada em serviço, inspecção e manutenção
Artigo 62.º
Disposições gerais
1. As entidades exploradoras de gases combustíveis têm de elaborar um plano de procedimentos de garantia de segurança relativo à operação, manutenção, inspecção e controlo das tubagens.
2. As entidades exploradoras de gases combustíveis têm de dispor de recursos adequados, designadamente meios humanos, técnicos e materiais que lhes permitam assegurar o cumprimento do disposto no número anterior.
3. As tubagens de gás só podem entrar em serviço depois de efectuados, com bons resultados, os ensaios de resistência mecânica e de estanquidade.
4. Os proprietários ou usufrutuários do condomínio de edifícios têm de contratar entidades instaladoras de redes de gás inscritas na DSSOPT nos termos do Regulamento Administrativo n.º 3/2003, para realizarem, periodicamente, inspecções abrangentes às partes comuns das instalações de gás do edifício, designadamente às tubagens, aos dispositivos de corte, aos detectores de gás e aos medidores de pressão, não podendo o intervalo entre cada inspecção ser superior a 12 meses.
5. Os proprietários ou usufrutuários do condomínio de edifícios têm de contratar entidades montadoras de aparelhos a gás inscritas na DSSOPT nos termos do Regulamento Administrativo n.º 3/2003, para realizarem, periodicamente, inspecções abrangentes às instalações de gás de fogos e de fracções para fins não residenciais, designadamente aos aparelhos a gás, aos dispositivos de corte e aos tubos flexíveis, não podendo o intervalo entre cada inspecção ser superior a 12 meses.
6. Caso as entidades exploradoras considerem que existem problemas de segurança nas instalações de gás do edifício, não prestam o serviço.
Artigo 63.º
Forma de purga do gás
1. Antes da entrada em funcionamento das instalações de gás, o gás contido na tubagem de gás é sujeito a purga, a qual faz-se, primeiro, procedendo ao enchimento das tubagens com azoto ou outro gás inerte, com o fim de libertar o gás contido nas tubagens; se o teor de oxigénio na tubagem cair para 3%, pode proceder-se ao enchimento com o novo gás combustível; se o teor do novo gás combustível atingir 90%, a substituição é considerada concluída; se o volume de água das tubagens for inferior a 1 m3, pode usar-se directamente o gás combustível para a purga.
2. Antes de as instalações de gás deixarem de funcionar, o gás contido na tubagem de gás é sujeito a purga, a qual faz-se, primeiro, procedendo ao enchimento das tubagens com azoto ou outro gás inerte, com o fim de libertar o gás contido nas tubagens; se o teor de gás na tubagem cair para 5% do limite mínimo de explosividade, pode proceder-se ao enchimento com ar.
Artigo 64.º
Controlo das instalações de gás
A entidade exploradora de gases combustíveis fica obrigada a controlar o seguinte:
1) O valor da pressão efectiva nas tubagens;
2) A estanquidade das tubagens.
CAPÍTULO VIII
Normas técnicas e documentos certificativos
Artigo 65.º
Normas técnicas aplicáveis
1. Para efeitos do presente regulamento administrativo, são observadas as normas técnicas constantes do anexo V ao presente regulamento administrativo e do qual faz parte integrante ou outras tecnicamente equivalentes.
2. Sempre que, no decorrer da concepção ou instalação, ocorram situações que não estejam previstas no presente regulamento administrativo, são aplicadas as normas nacionais ou internacionais adoptadas pela DSSOPT.
Artigo 66.º
Documentos certificativos
Só é permitida a comercialização de produtos, materiais, componentes e equipamentos por ele abrangidos, desde que acompanhados de documentos certificativos que assegurem uma qualidade e especificações equivalentes às visadas pelo presente regulamento administrativo.
CAPÍTULO IX
Disposições transitórias e finais
Artigo 67.º
Disposições transitórias
1. A apreciação e decisão sobre os projectos de implantação de instalações de gases combustíveis, submetidos à DSSOPT antes da entrada em vigor do presente regulamento administrativo, são feitas em conformidade com a legislação que vigorava no dia da sua submissão, designadamente o Regulamento Administrativo n.º 30/2002 (Regulamento Técnico das Instalações de Abastecimento de Gás Canalizado em Edifícios).
2. A apreciação e decisão sobre as alterações aos projectos referidos no número anterior, apresentadas após a entrada em vigor do presente regulamento administrativo, caso os despachos de aprovação desses projectos ainda permaneçam válidos, são feitas em conformidade com a legislação que vigorava no dia da aprovação desses projectos, designadamente o Regulamento Administrativo n.º 30/2002.
3. A DSSOPT pode, nos termos do presente regulamento administrativo, ordenar aos titulares de direito das instalações de gás existentes a realização das alterações necessárias dentro do prazo que para tal seja fixado, de modo a garantir a segurança das pessoas e das instalações de gás quando estão em funcionamento.
Artigo 68.º
Actualização de referências
As referências ao Regulamento Técnico das Instalações de Abastecimento de Gás Canalizado em Edifícios constantes de leis, regulamentos, contratos e demais actos jurídicos, são consideradas como feitas às Normas técnicas das instalações de gases combustíveis em edifícios, com as necessárias adaptações.
Artigo 69.º
Alteração ao Regulamento Administrativo n.º 26/2002
O artigo 1.º do Regulamento de Segurança Relativo à Instalação de Aparelhos a Gás com Potências Elevadas, aprovado pelo Regulamento Administrativo n.º 26/2002, passa a ter a seguinte redacção:
«Artigo 1.º
Objecto e âmbito de aplicação
1. O presente regulamento estabelece as condições técnicas a que obedece a instalação, em edifícios residenciais e respectivos anexos, de aparelhos alimentados com gases combustíveis, cuja potência unitária, instalada por cada derivação de instalação de cada consumidor ultrapasse 70 kW, ou em fracções destinadas a fins não residenciais deste tipo de edifícios, edifícios comerciais ou que recebam público e respectivos anexos, de aparelhos alimentados com gases combustíveis, cujas potências, unitária e global, instaladas por consumidor ou por derivação de instalação ultrapassem, respectivamente, 70 kW.
2. […].»
Artigo 70.º
Alteração ao Regulamento Administrativo n.º 3/2003
O artigo 1.º do Regulamento Administrativo n.º 3/2003 passa a ter a seguinte redacção:
«Artigo 1.º
Objecto
1. […].
2. Para efeitos do disposto no presente regulamento administrativo, consideram-se aparelhos a gás os aparelhos termodomésticos e termoindustriais, alimentados com gases combustíveis.»
Artigo 71.º
Revogação
Sem prejuízo do disposto nos n.os 1 e 2 do artigo 67.º, é revogado o Regulamento Administrativo n.º 30/2002.
Artigo 72.º
Entrada em vigor
O presente regulamento administrativo entra em vigor 30 dias após a sua publicação.
Aprovado em 21 de Julho de 2021.
Publique-se.
O Chefe do Executivo, Ho Iat Seng.
———
ANEXO I
(a que se refere o n.º 7 do artigo 50.º)
Distância entre um fogão a gás com forno incorporado e materiais combustíveis

a ≥ 610 mm, caso o manual de instruções de instalação do exaustor ou do fogão a gás especifique de outro modo, prevalece a altura aí especificada.
b ≥ 150 mm.
c ≥ 20 mm.
ANEXO II
(a que se refere o n.º 7 do artigo 50.º)
Distância entre um fogão a gás encastrado e materiais combustíveis

a ≥ 50 mm.
b ≥ 460 mm.
c ≥ 600 mm, caso o manual de instruções de instalação do exaustor ou do fogão a gás especifique de outro modo, prevalece a altura aí especificada.
d ≥ Largura do fogão.
ANEXO III
(a que se refere o n.º 4 do artigo 52.º)
Requisitos das aberturas de ventilação de esquentadores a gás com chaminé e de esquentadores a gás estanques do tipo atmosférico

Notas:
1. A, D, E, H e I são as áreas das aberturas de ventilação permanente com comunicação directa para o exterior, B, C, F e G são as áreas das aberturas de ventilação permanente entre o compartimento onde o esquentador a gás está instalado e a sala contígua; as áreas de todas as aberturas de ventilação são calculadas em função da potência do esquentador a gás.
2. Para os esquentadores a gás estanques do tipo ventilado, tomam-se como referência as instruções do fabricante.
ANEXO IV
(a que se refere o n.º 7 do artigo 52.º)
Locais onde é aceitável a instalação das extremidades das condutas para evacuação de fumos dos esquentadores a gás

| Localização | Distância mínima (mm) | |
| A | De qualquer canto do edifício | 300 |
| B | De qualquer abertura adjacente do edifício | 300 |
| C | De paredes opostas ou envolventes | 1500 |
| D | Largura plana mínima de uma reentrância | 1500 |
| E | Por baixo de uma varanda ou projecção similar | 300 |
| F e G | Área de superfície do saguão (F x G) No 10.º andar ou abaixo Entre o 11.º e o 19.º andar No 20.º andar ou acima |
3000 4000 5000 |
Notas:
1. Saguão
A circulação vertical do ar é mantida sem obstruções.
Com abertura de ventilação para o exterior abaixo da extremidade da conduta para evacuação de fumos situada mais abaixo. As aberturas de ventilação têm uma área mínima de 0,05 m2 relativamente a cada extremidade da conduta para evacuação de fumos virada para o saguão. A dimensão mínima interior das aberturas de ventilação é de 200 mm.
2. Reentrâncias
A circulação vertical do ar é mantida sem obstruções. A área ocupada pelas vigas travessas não pode reduzir a área descoberta da reentrância em mais de 20%, seja em que piso for [isto é: Y ≦ 20% (X+Y)].
ANEXO V
(a que se refere o n.º 1 do artigo 65.º)
Normas técnicas aplicáveis
1) ANSI B1.20.1 — Pipe Threads, General Purpose (Inch);
2) ANSI B 16.5 — Pipe flanges and flanged fittings;
3) ANSI B 16.9 — Factory-Made Wrought Buttwelding Fittings;
4) API SPEC 5L — Specification for Line Pipe;
5) API STD 1104 — Welding of Pipeline and Related Facilities;
6) AS/NZS 1869 — Hose and hose assemblies for liquefied petroleum gases (LP Gas), natural gas and town gas;
7) ASTM A694 — Standard Specification for Carbon and Alloy Steel Forgings for Pipe Flanges, Fittings, Valves, and Parts for High-Pressure Transmission Service;
8) BS EN 751-1 — Sealing materials for metallic threaded joints in contact with 1st, 2nd and 3rd family gases and hot water. Anaerobic jointing compounds;
9) BS EN 751-2 — Sealing materials for metallic threaded joints in contact with 1st, 2nd and 3rd family gases and hot water. Non-hardening jointing compounds;
10) BS EN 751-3 — Sealing materials for metallic threaded joints in contact with 1st, 2nd and 3rd family gases and hot water. Unsintered PTFE tapes;
11) BS EN 1057 — Copper and copper alloys — Seamless, round copper tubes for water and gas in sanitary and heating applications;
12) BS EN 1359 — Gas meters — Diaphragm gas meters;
13) BS EN 10242 — Threaded pipe fittings in malleable cast iron;
14) BS EN 10226-1 — Pipe threads where pressure tight joints are made on the threads. Taper external threads and parallel internal threads. Dimensions, tolerances and designation;
15) BS EN 12480 — Gas meters — Rotary displacement gas meters;
16) BS EN 16436-1 — Rubber and plastics hoses, tubing and assemblies for use with propane and butane and their mixture in the vapour phase — Part 1: Hoses and tubings;
17) CJJ 12 — Specification for installation and acceptance of domestic gas burning appliances;
18) EN 26 — Gas-fired instantaneous water heaters for the production of domestic hot water;
19) EN 30 — Domestic cooking appliances burning gas:
(1) EN 30-1-1 — Domestic cooking appliances burning gas. Safety. General;
(2) EN 30-1-2 — Domestic cooking appliances burning gas. Safety. Appliances having forced-convection ovens and/or grills;
(3) EN 30-1-3 — Domestic cooking appliances burning gas. Safety. Appliances having a glass ceramic hotplate;
(4) EN 30-1-4 — Domestic cooking appliances burning gas. Safety. Appliances having one or more burners with an automatic burner control system;
(5) EN 30-2-1 — Domestic cooking appliances burning gas. Rational use of energy. General;
(6) EN 30-2-2 — Domestic cooking appliances burning gas. Rational use of energy. Appliances having forced-convection ovens and/or grills;
20) EN 1092-1 — Flanges and their joints. Circular flanges for pipes, valves, fittings and accessories, PN designated. Steel flanges;
21) GB 6932 — Domestic gas instantaneous water heater;
22) GB 16410 — Domestic Gas Cooking Appliances;
23) GB/T 3287 — Malleable cast iron pipe fittings;
24) GB/T 6968 — Diaphragm gas meters;
25) GB/T 8923.1 — Preparation of steel substrates before application of paints and related products — Visual assessment of surface cleanliness — Part 1: Rust grades and preparation grades of uncoated steel substrates and of steel substrates after overall removal of previous coatings;
26) GB/T 9711 — Petroleum and natural gas industries — Steel pipe for pipeline transportation systems;
27) GB/T 18940 — Measurement of gas flow in closed conduits — turbine meters;
28) GB/T 23257 — Polyethylene coating for buried steel pipeline;
29) GB/T 30790 — Paints and varnishes — Corrosion protection of steel structures by protective paint systems:
(1) GB/T 30790.1 — Paints and varnishes — Corrosion protection of steel structures by protective paint systems — Part 1: General introduction;
(2) GB/T 30790.2 — Paints and varnishes — Corrosion protection of steel structures by protective paint systems — Part 2: Classification of environments;
(3) GB/T 30790.3 — Paints and varnishes — Corrosion protection of steel structures by protective paint systems — Part 3: Design considerations;
(4) GB/T 30790.4 — Paints and varnishes — Corrosion protection of steel structures by protective paint systems — Part 4: Types of surface and surface preparation;
(5) GB/T 30790.5 — Paints and varnishes — Corrosion protection of steel structures by protective paint systems — Part 5: Protective paint systems;
(6) GB/T 30790.6 — Paints and varnishes — Corrosion protection of steel structures by protective paint systems — Part 6: Laboratory performance test methods;
(7) GB/T 30790.7 — Paints and varnishes — Corrosion protection of steel structures by protective paint systems — Part 7: Execution and supervision of paint work;
30) ISO 49 — Malleable cast iron fittings threaded to ISO 7-1;
31) ISO 3183 — Petroleum and natural gas industries — Steel pipe for pipeline transportation systems;
32) ISO 8501-1 — Preparation of steel substrates before application of paints and related products. Visual assessment of surface cleanliness. Rust grades and preparation grades of uncoated steel substrates and of steel substrates after overall removal of previous coatings;
33) ISO 12944 — Paints and varnishes — Corrosion protection of steel structures by protective paint systems:
(1) ISO 12944-1 — Paints and varnishes — Corrosion protection of steel structures by protective paint systems — Part 1: General introduction;
(2) ISO 12944-2 — Paints and varnishes — Corrosion protection of steel structures by protective paint systems — Part 2: Classification of environments;
(3) ISO 12944-3 — Paints and varnishes — Corrosion protection of steel structures by protective paint systems — Part 3: Design considerations;
(4) ISO 12944-4 — Paints and varnishes — Corrosion protection of steel structures by protective paint systems — Part 4: Types of surface and surface preparation;
(5) ISO 12944-5 — Paints and varnishes — Corrosion protection of steel structures by protective paint systems — Part 5: Protective paint systems;
(6) ISO 12944-6 — Paints and varnishes — Corrosion protection of steel structures by protective paint systems — Part 6: Laboratory performance test methods;
(7) ISO 12944-7 — Paints and varnishes — Corrosion protection of steel structures by protective paint systems — Part 7: Execution and supervision of paint work;
34) JIS K 6348 — Rubber tubes for gas;
35) JIS S 2103 — Gas Cooking Appliances For Domestic Use;
36) JIS S 2109 — Gas Burning Water Heaters For Domestic Use;
37) OIML R31 — Diaphragm gas meters;
38) SY/T 0447 — Standard of coal tar epoxy coating for buried steel pipeline.



